Standout Features
- NO ONWARD CHAIN
- Spacious open plan dining kitchen
- Two double bedrooms
- Attractive gardens & terrace seating
- Sought after development for the over 50's
- Lounge with doors to terrace seating
- Great views & position within the development
- Allocated parking space
- Easy access to Knaresborough High Street
- Council Tax Band A
Property Description
NO ONWARD CHAIN. An opportunity to purchase a spacious and well maintained two double bedroom park home for the over 50’s, on the highly regarded Nidderdale Lodge Park with river views and attractive gardens. The property is situated in a sought-after location with easy access to the A59 and the wide-ranging amenities of offer in Knaresborough.
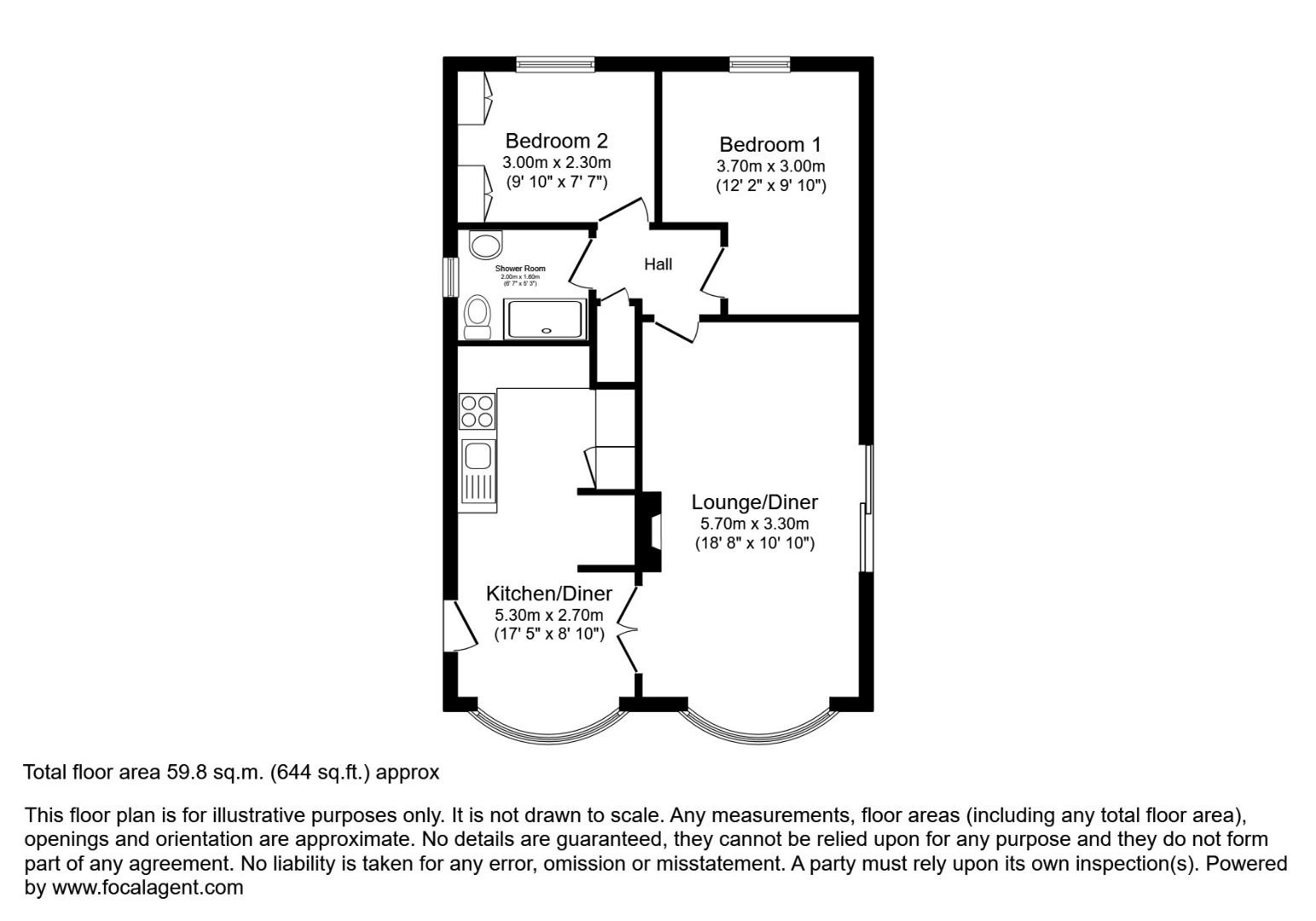
The spacious accommodation comprises: Open plan dining kitchen with bay window and cupboard housing, spacious lounge with bay window and sliding doors to the terrace seating area, inner hallway, two double bedrooms and shower room.
To the outside are attractive gardens with a lawn area with mature flower beds, seating terrace area, useful storage and parking for one car with further visitor parking. An early viewing is highly recommended.
The spacious accommodation comprises: Open plan dining kitchen with bay window and cupboard housing, spacious lounge with bay window and sliding doors to the terrace seating area, inner hallway, two double bedrooms and shower room.
To the outside are attractive gardens with a lawn area with mature flower beds, seating terrace area, useful storage and parking for one car with further visitor parking. An early viewing is highly recommended.
EPC
Exempt because it's a park home
Material Information
Tenure Type: Leasehold
Leasehold Years remaining on lease: N/A
Site Quarterly Fee: £520 approx.
Council Tax Banding: A
Additional Information
| Tenure: | Freehold |
|---|---|
| Council Tax Band: | A |
Rooms
EPC
Exempt because it's a park homeMaterial Information
Tenure Type: LeaseholdLeasehold Years remaining on lease: N/A
Site Quarterly Fee: £520 approx.
Council Tax Banding: A
Mortgage calculator
Calculate Your Stamp Duty
Results
Stamp Duty To Pay:
Effective Rate:
| Tax Band | % | Taxable Sum | Tax |
|---|
Nidderdale Lodge, Knaresborough, HG5 0TX
Want to explore Nidderdale Lodge, Knaresborough, HG5 0TX further? Explore our local area guide
Struggling to find a property? Get in touch and we'll help you find your ideal property.