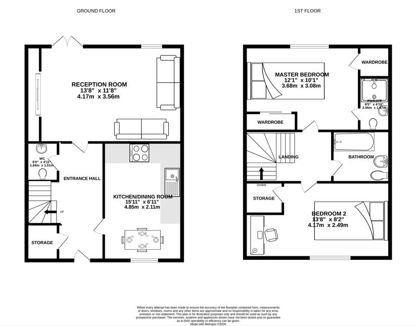
- A ''Show-Home'' Standard, Two Bedroom End of Terrace Home
- Occupying arguably the greatest position within the estate
- Boasting unspoilt, far reaching field views from both front & rear elevations
- A Upgraded, Modern fitted kitchen with appliances & dining room
- Enhanced reception room with media wall & inset electric fireplace
- Ground floor boasting toilet & understairs fitted stairs storage
- Principal bedroom boasting modern en-suite & Unique wardrobe with fitted storage
- Generous guest bedroom serviced by the family bath-suite
- Driveway which provides 2 allocated parking spaces to the front of the home
- EPC Rating: B (83) - Council Tax Band: C - Estate Fee's: £380.00 per year
It's known that there are many different styles of these two bedrooms on the popular development, some offering more than others - That is certainly true here. Come on inside, through the front door and discover what all the fuss is about! The reason we feel this particular home stands out from the rest is it's upgrades from previous purchase - With separate comfortable lounge to rear of the home, with stunning media wall & inset fire as well as private dining/kitchen room to the front, offering space for a table, giving you the chance host friends & family in peace.
The kitchen boasts the ideal location for table & chairs to sit and enjoy your meal or simply unwind. As you would expect the integrated appliances as standard through out. With charming upgraded work surfaces. The room is flooded with light thanks to the picture window. There's also a handy downstairs w/c with a wash basin included as well as a under stairs storage cupboard installed, ideal to throw away those boots and coats that come with day to day life.
The stairs rise from the hall, where you will find two large bedrooms, easily accommodating large double beds– this home also offers an equally large three piece family bathroom & En-suite too! The master bedroom is ample in floor space with fitted wardrobes, another built in cupboard & upgraded en-suite. Across the hall, is the equally sized second bedroom offering a fitted cupboard & handy alcove for a dressing table. Both bedrooms offering simple breath-taking views from that every changing landscape. Thanks to the homes position, you'll always catch a glimpse of that charming sun-rise.
Externally, the rear garden has been landscaped and is well sized, with a good sized lawn area and equally charming patio space & path. The garden path leads to the back gate where you will find rear access and basking in those far reaching field views. Further benefits include: EV Electric car charging point & power to outside garden shed. It should also be noted that the charming greenery to the homes boundary is subject to no further building works.
Location - The village of Finberry itself boasts the fantastic Finberry Primary School as well many local amenities all within walking distance. You will also have plenty of picturesque walks around the lakes, field and woodland all at your fingertips. Finberry boasts two wonderful play parks to keep the little ones occupied on those sunny days. Local bus routes run within a short walk from the home and the M20 motorway is only a short drive away. Finally, you are only a stones throw from Ashford International Station which boasts the world renowned Eurostar train to Paris, France as well as the HS One service which runs to London St Pancras station in just 38 minutes.”
| Tenure: | Freehold |
|---|---|
| Council Tax Band: | C |
| Tax Band | % | Taxable Sum | Tax |
|---|
Want to explore Sanderling Place, Finberry, Ashford further? Explore our local area guide
Struggling to find a property? Get in touch and we'll help you find your ideal property.