Standout Features
- Two bedroom end terraced home
- Spacious lounge flowing into conservatory
- Enclosed rear garden
- Garage providing parking or storage
- Popular Seamer village location
Property Description
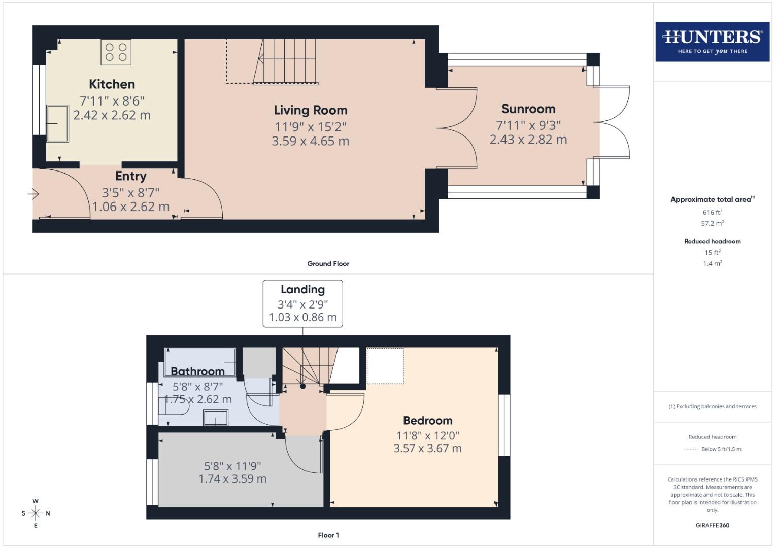
Hunters are pleased to bring to the market this well-presented two-bedroom end terraced home located in the popular village of Seamer. Offering practical and comfortable living space throughout, this property would suit first-time buyers, downsizers or investors.
The ground floor comprises a kitchen positioned to the front of the property, fitted with a range of units offering worktop space and room for appliances. To the rear is a spacious lounge, providing a comfortable and well-proportioned living area, which flows seamlessly into the conservatory which over looks the garden. To the first floor are two well-proportioned bedrooms and a family bathroom fitted with a three-piece suite.
Externally, the property benefits from an enclosed rear garden, providing a private outdoor space to enjoy throughout the year. A detached garage offers useful storage or secure parking, adding further practicality to the home.
Seamer is a highly regarded village on the outskirts of Scarborough, offering a blend of countryside surroundings with excellent local amenities. The village benefits from a range of shops, public houses, a primary school, and convenient transport links including a railway station and regular bus routes.
A well-positioned and practical home in a sought-after village location – early viewing is recommended to appreciate all this property has to offer.
The ground floor comprises a kitchen positioned to the front of the property, fitted with a range of units offering worktop space and room for appliances. To the rear is a spacious lounge, providing a comfortable and well-proportioned living area, which flows seamlessly into the conservatory which over looks the garden. To the first floor are two well-proportioned bedrooms and a family bathroom fitted with a three-piece suite.
Externally, the property benefits from an enclosed rear garden, providing a private outdoor space to enjoy throughout the year. A detached garage offers useful storage or secure parking, adding further practicality to the home.
Seamer is a highly regarded village on the outskirts of Scarborough, offering a blend of countryside surroundings with excellent local amenities. The village benefits from a range of shops, public houses, a primary school, and convenient transport links including a railway station and regular bus routes.
A well-positioned and practical home in a sought-after village location – early viewing is recommended to appreciate all this property has to offer.
HMRC
Should you wish to proceed with an offer on this property we are obliged by HMRC to conduct mandatory Anti Money Laundering Checks. We outsource these checks to our compliance partners at Kotini and they charge a fee for this service.
Additional Information
| Tenure: | Freehold |
|---|---|
| Council Tax Band: | B |
Rooms
HMRC
Should you wish to proceed with an offer on this property we are obliged by HMRC to conduct mandatory Anti Money Laundering Checks. We outsource these checks to our compliance partners at Kotini and they charge a fee for this service.Utilities
Broadband:
Fibre to Premises
Electricity:
Mains Supply
Sewerage:
Mains Supply
Water:
Heating:
Gas Central
Mortgage calculator
Calculate Your Stamp Duty
Results
Stamp Duty To Pay:
Effective Rate:
| Tax Band | % | Taxable Sum | Tax |
|---|
Stockshill, Seamer, Scarborough
Want to explore Stockshill, Seamer, Scarborough further? Explore our local area guide
Struggling to find a property? Get in touch and we'll help you find your ideal property.