Land @ Grangewood Close, Downend, Bristol, BS16 2QN

Offers in excess of £100,000 | SSTC

2 bedroom Land (Residential) Sold STC
Standout Features

Property Description
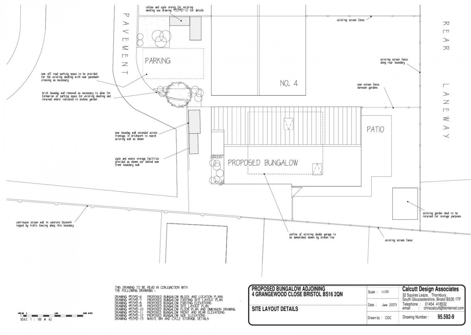
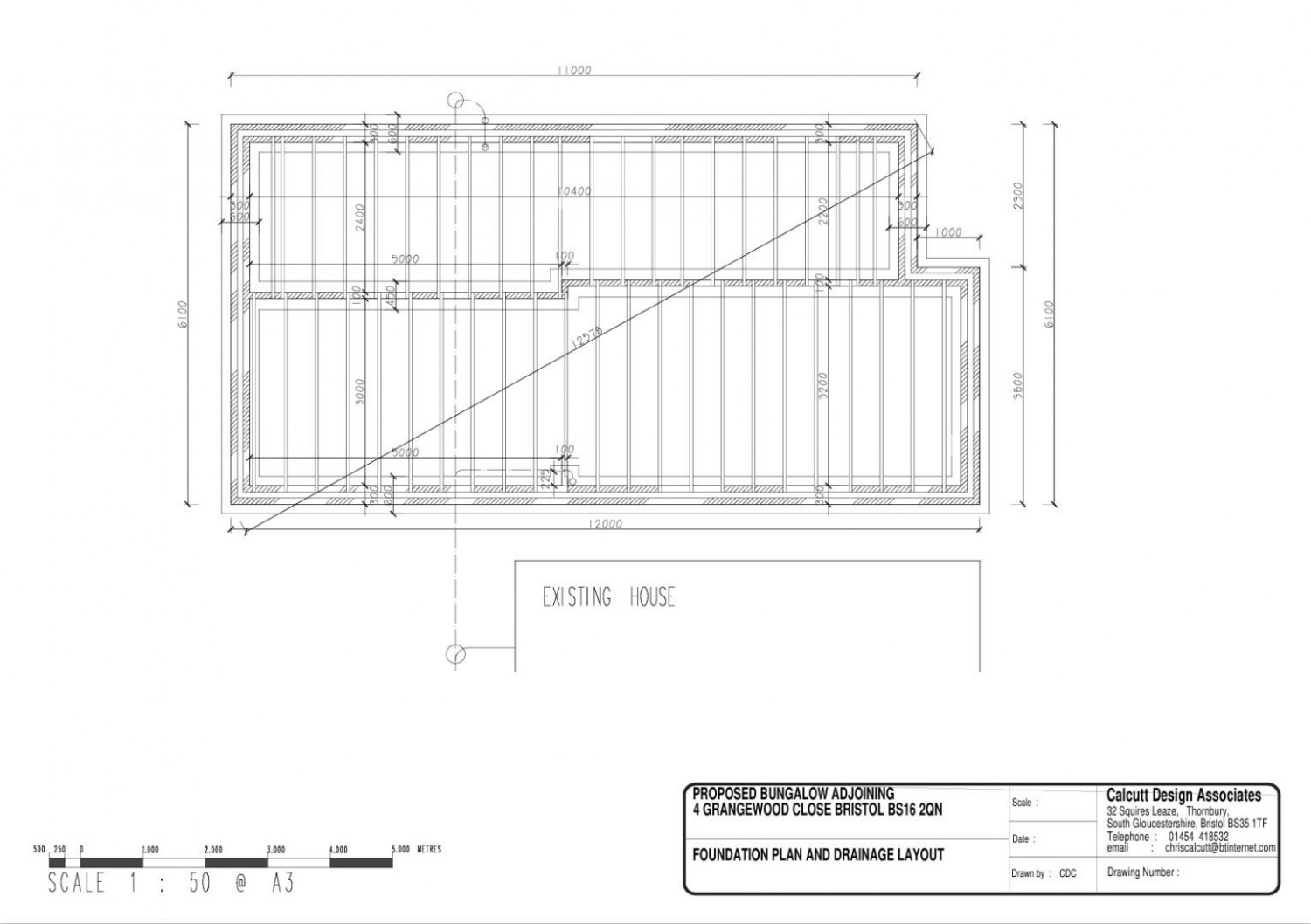
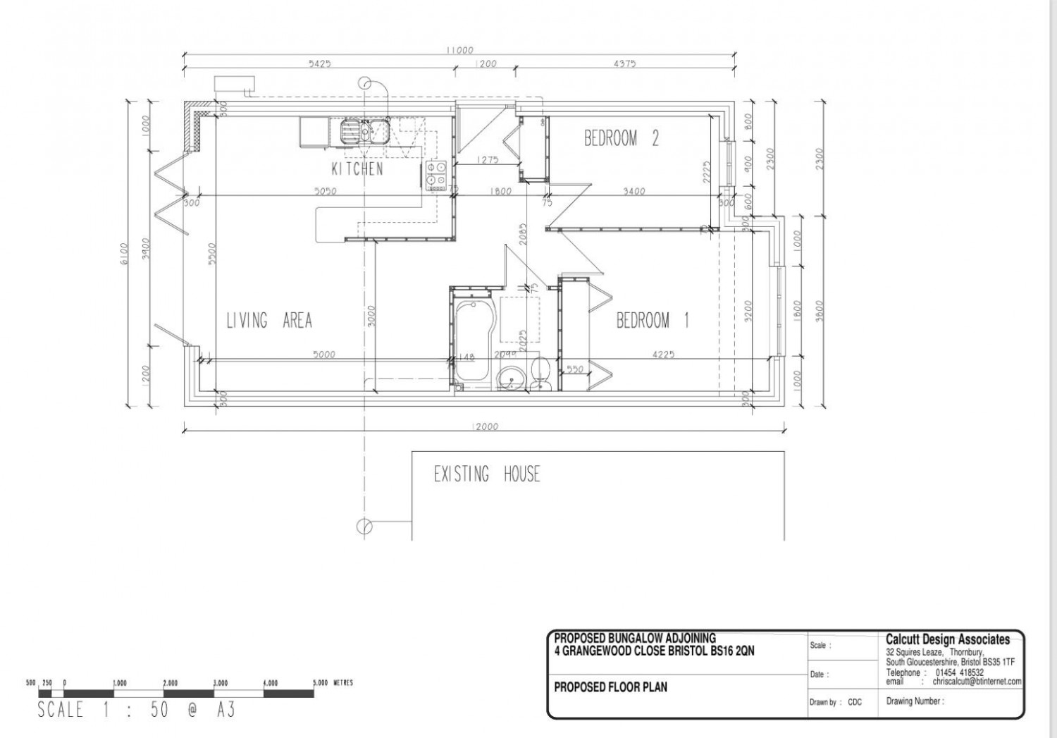
**INVESTMENT OR SELF BUILD OPPORTUNITY** A rare opportunity to purchase a building plot with full planning consent in place for a 2 bedroom detached bungalow set within a quiet cul-de-sac in the highly sought after area of Downend.

.

DESCRIPTION

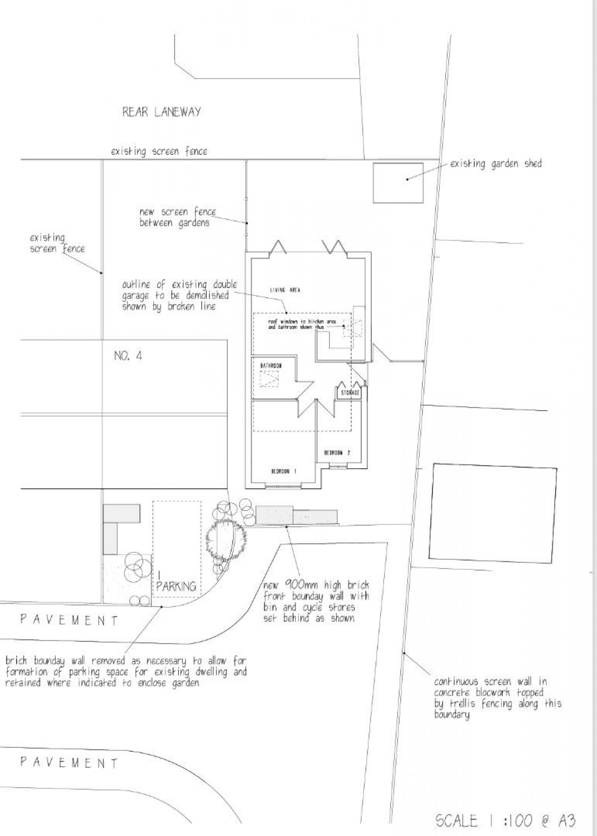
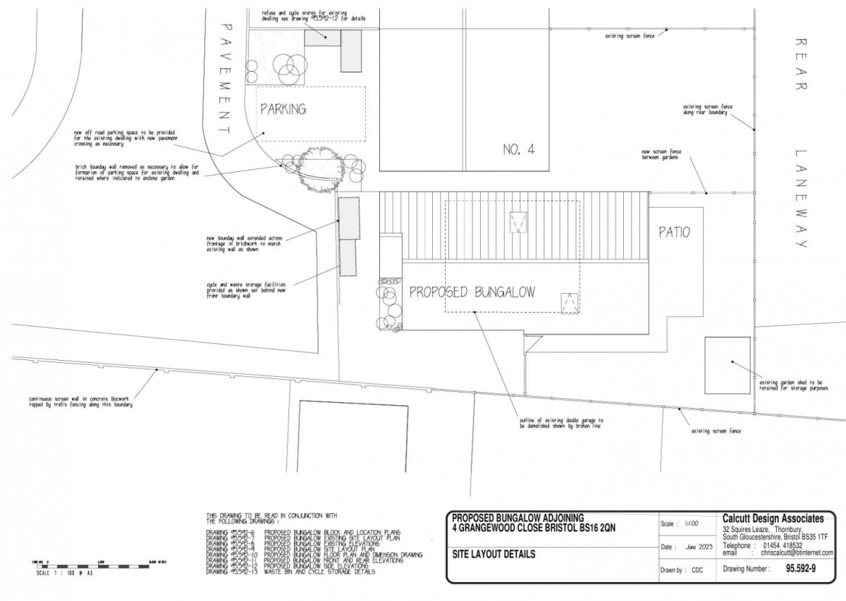
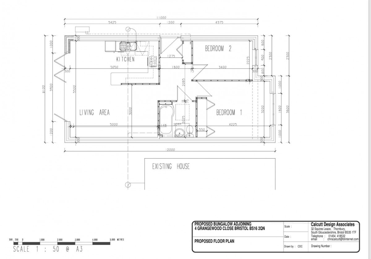
An exceptional opportunity to acquire a prime parcel of land with full planning consent granted for the construction of a detached two-bedroom bungalow.

Situated within a quiet cul-de-sac in the highly sought-after residential area of Downend, this superb plot offers a rare chance to create a bespoke home in a peaceful yet convenient location. The approved plans allow for a well-designed detached bungalow, ideal for downsizers, first-time buyers, or those seeking single-level living. Accommodation proposed consists of an entrance hallway, open plan living room which incorporates a kitchen area and bi-folding door to garden, and a bathroom. The property well benefit from having garden space and driveway providing an off street parking space

The site enjoys a tranquil setting while remaining within easy reach of local amenities, shops, reputable schools and excellent transport links. Opportunities such as this are seldom available in this desirable neighbourhood, and early enquiries are strongly recommended.


Additional Information
Tenure: Freehold

Rooms
DESCRIPTION
An exceptional opportunity to acquire a prime parcel of land with full planning consent granted for the construction of a detached two-bedroom bungalow.

Situated within a quiet cul-de-sac in the highly sought-after residential area of Downend, this superb plot offers a rare chance to create a bespoke home in a peaceful yet convenient location. The approved plans allow for a well-designed detached bungalow, ideal for downsizers, first-time buyers, or those seeking single-level living. Accommodation proposed consists of an entrance hallway, open plan living room which incorporates a kitchen area and bi-folding door to garden, and a bathroom. The property well benefit from having garden space and driveway providing an off street parking space

The site enjoys a tranquil setting while remaining within easy reach of local amenities, shops, reputable schools and excellent transport links. Opportunities such as this are seldom available in this desirable neighbourhood, and early enquiries are strongly recommended.

Mortgage calculator

Calculate Your Stamp Duty
£
Results
Stamp Duty To Pay:
Effective Rate:
Tax Band % Taxable Sum Tax

Land @ Grangewood Close, Downend, Bristol, BS16 2QN

Want to explore Land @ Grangewood Close, Downend, Bristol, BS16 2QN further? Explore our local area guide

Struggling to find a property? Get in touch and we'll help you find your ideal property.