3 bedroom Bungalow For Sale

£370,000 | Available

3 bedroom Bungalow For Sale
or call 01303 261557
Standout Features

Property Description
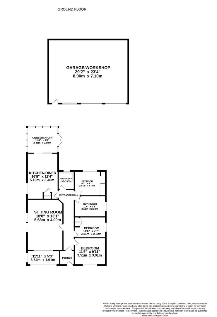
A spacious detached three bedroom detached bungalow with scope to convert the double garage into an annexe and situated within easy access to Greatstone beach.

The accommodation offers entrance hall leading to a double aspect sitting room over looking the front has double glazed windows and patio doors out to side. A generous sized kitchen/breakfast room with a range of wall and base units and opens into a conservatory overlooking rear gardens. There are three double bedrooms, shower room and family bathroom.

The front elevation has a long driveway with in and out car port leading to rear gardens that is mainly laid to lawn and benefits from a double garage and attached workshop area. The double garage has the potential for converting into an Annexe, subject to planning conditions. In addition, there is further scope to do a loft conversion, creating additional living space, subject the normal permissions.

Y15/0086/NMC - Erection of a detached dwelling with integral garage and accommodation in the roof.

The property is located in the popular area of Greatstone, which offers Spar general store/post office, local restaurants and public houses, along with miles of beautiful coastline where you can enjoy lovely walks. New Romney is one of the original Cinque Port Towns and offers a quaint, busy high street and further local amenities including public houses/restaurants, coffee shops, individual shopping and Sainsbury’s supermarket. The market town of Ashford is within easy reach and is home to the remodelled McArthur Glen designer outlet.

Local attractions include the famous Romney Hythe & Dymchurch light railway, which runs through New Romney, down to Dungeness and to the pretty Cinque port town of Hythe, and Port Lympne Wildlife Park. Recreation facilities can be found in and around the area including a sports centre, swimming pools, two nearby golf courses - one being a championship course.
Connections are also good, with easy access onto the A249, which links into the M20, M25 and M2 motorway networks.

Ashford International operates the high-speed train into London St Pancras within 38 minutes. The Channel Tunnel Terminal and the Port of Dover provide services to the continent.

Services - Mains water, gas, electricity and sewerage
Heating - Gas central heating
Broadband - Average Broadband Speed 8mb to 100mb
Mobile Phone coverage - Okay - Good
Flood Risk - Very Low


Additional Information
Tenure: Freehold
Council Tax Band: D

Mortgage calculator

Calculate Your Stamp Duty
£
Results
Stamp Duty To Pay:
Effective Rate:
Tax Band % Taxable Sum Tax

COAST DRIVE, GREATSTONE

Want to explore COAST DRIVE, GREATSTONE further? Explore our local area guide

Struggling to find a property? Get in touch and we'll help you find your ideal property.