Standout Features
- Freehold Tenure
- Expansive Private Garden
- 3 Double Bedrooms
- Split-Level Maisonette
- Approx. 1000+ Sqft Internal Living Space
- Double-Glazed Windows Throughout
Property Description
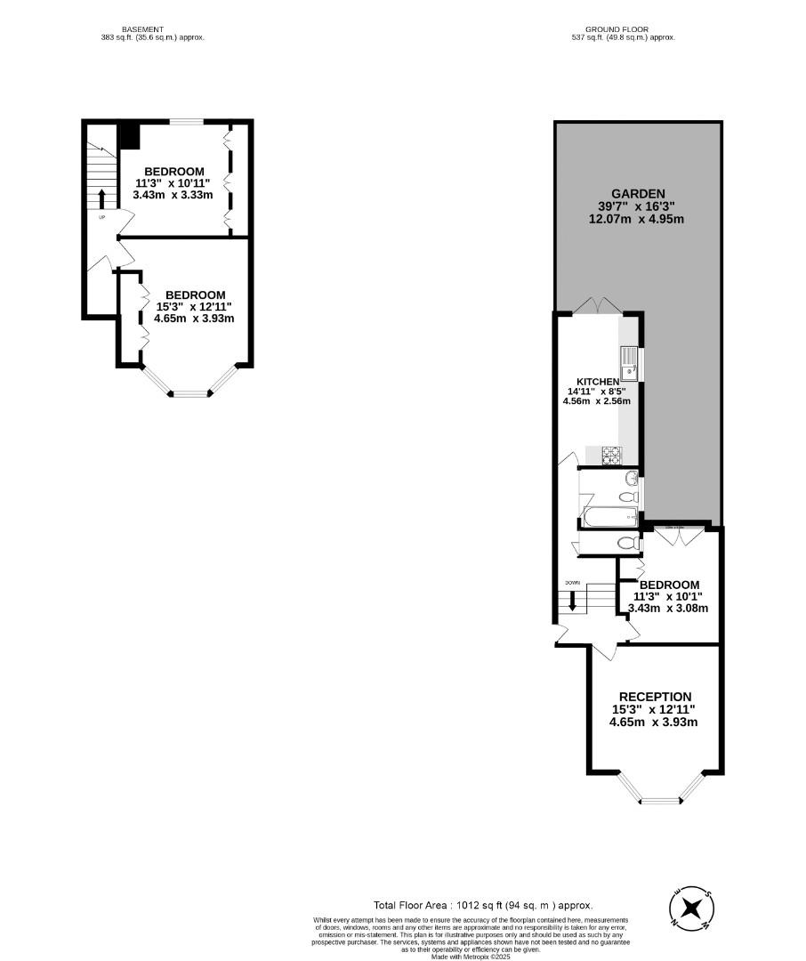
A charming three-bedroom maisonette, sold with the benefit of the freehold, extending to approximately 1000 sq ft, cleverly arranged over lower ground and ground floors to maximize living space.
The ground floor offers a spacious reception room with an attractive, double-glazed bay window that draws in excellent natural light throughout the day, contributing to a quieter and more comfortable setting.
The kitchen has been thoughtfully updated with white cabinetry, contrasting granite worktops, and quality integrated appliances. French doors from the kitchen open straight onto the garden, making it ideal for summer dining and entertaining. This floor is completed by a third bedroom, modern bathroom, along with a separate guest W/C.
Downstairs features two generous double bedrooms, both with double-glazed windows for added comfort and insulation. The layout offers flexible accommodation for families or those needing a home office. The private garden is a key feature, extending to approximately 37ft - a generous stretch of lawn bordered by mature shrubs and planting, along with a paved area ideal for outdoor seating. It offers a genuine outdoor space that's rarely found with a property of this kind.
Rectory Road is located in the heart of Stoke Newington, only moments away from a wide range of shops, bars, restaurants and coffee houses of Stoke Newington Church Street & High Street as well as a short walk from Dalston, the property is also within walking distance of the stunning Clissold Park, Abney Park and Stoke Newington Common
Transport links include Rectory Road Station (Overground), Stoke Newington Station (Overground), Dalston Kingsland & Junction Stations (Overground) and a variety of Bus routes into The City & West End.
The ground floor offers a spacious reception room with an attractive, double-glazed bay window that draws in excellent natural light throughout the day, contributing to a quieter and more comfortable setting.
The kitchen has been thoughtfully updated with white cabinetry, contrasting granite worktops, and quality integrated appliances. French doors from the kitchen open straight onto the garden, making it ideal for summer dining and entertaining. This floor is completed by a third bedroom, modern bathroom, along with a separate guest W/C.
Downstairs features two generous double bedrooms, both with double-glazed windows for added comfort and insulation. The layout offers flexible accommodation for families or those needing a home office. The private garden is a key feature, extending to approximately 37ft - a generous stretch of lawn bordered by mature shrubs and planting, along with a paved area ideal for outdoor seating. It offers a genuine outdoor space that's rarely found with a property of this kind.
Rectory Road is located in the heart of Stoke Newington, only moments away from a wide range of shops, bars, restaurants and coffee houses of Stoke Newington Church Street & High Street as well as a short walk from Dalston, the property is also within walking distance of the stunning Clissold Park, Abney Park and Stoke Newington Common
Transport links include Rectory Road Station (Overground), Stoke Newington Station (Overground), Dalston Kingsland & Junction Stations (Overground) and a variety of Bus routes into The City & West End.
Additional Information
| Tenure: | Freehold |
|---|---|
| Council Tax Band: | D |
Mortgage calculator
Calculate Your Stamp Duty
Results
Stamp Duty To Pay:
Effective Rate:
| Tax Band | % | Taxable Sum | Tax |
|---|
Rectory Road, London, N16
Want to explore Rectory Road, London, N16 further? Explore our local area guide
Struggling to find a property? Get in touch and we'll help you find your ideal property.