Albert Square, Yeadon, Leeds

£250,000 | SSTC

3 bedroom House Sold STC
or call 0113 202 9923
Standout Features

Property Description
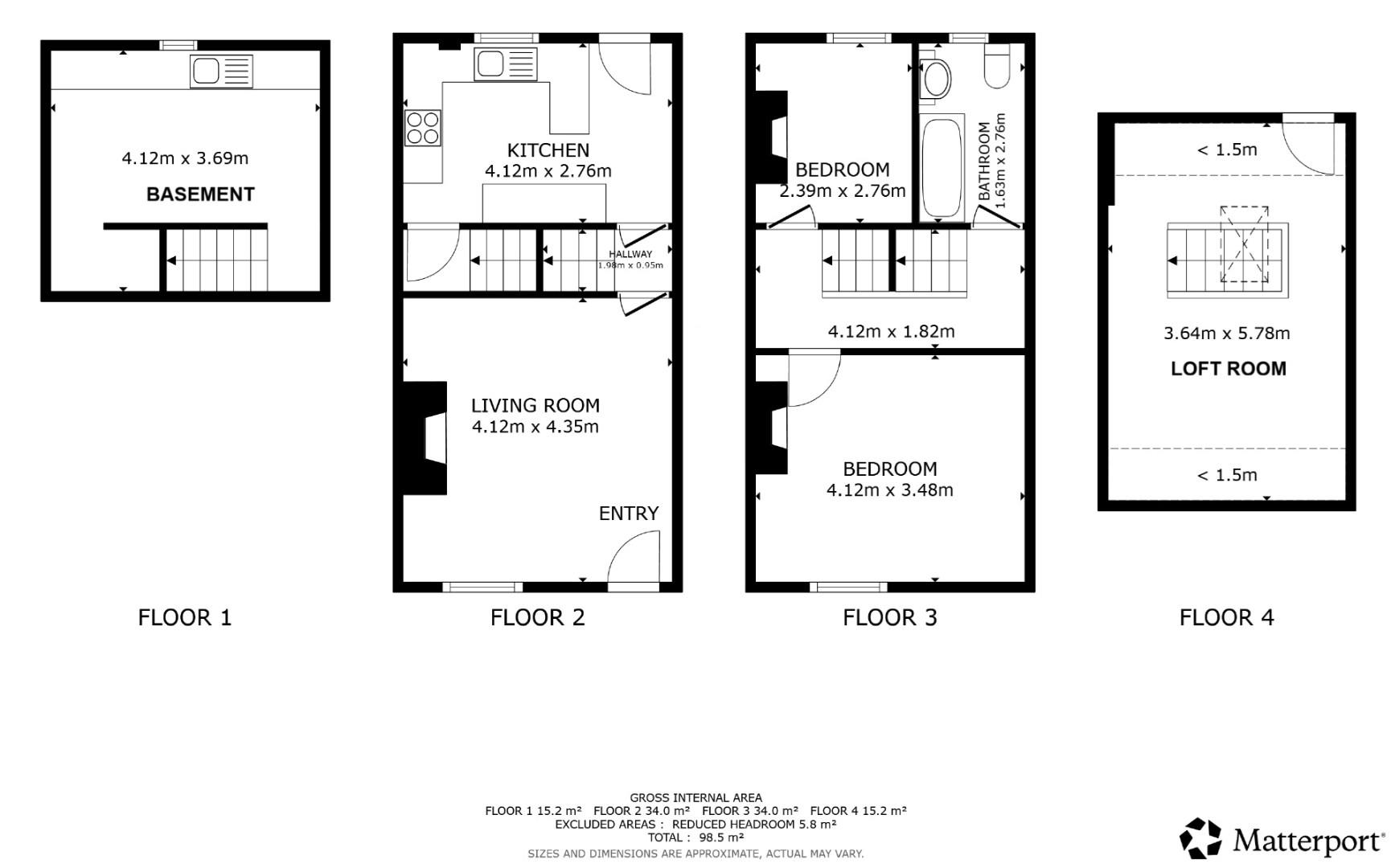
A Charming Stone-Built Victorian Terrace with Accommodation Across Four Floors

Perfectly positioned between the picturesque Yeadon Tarn and the bustling high street with its wide range of shops, restaurants and amenities, this attractive Victorian terrace offers a rare blend of period charm and modern living. With characterful features throughout and high-quality fixtures and fittings, the property is sure to appeal to a variety of purchasers, including first-time buyers and young professionals.

The accommodation is arranged over four floors and offers generous and versatile living space. A welcoming living room with natural stone flooring and an attractive feature fireplace leads through to a beautifully appointed kitchen, fitted with shaker-style units, brushed brass fittings and a breakfast bar, with direct access out to the rear garden. The lower ground floor houses a useful cellar which provides excellent storage and incorporates a utility area.

On the first floor there are two well-proportioned bedrooms and a stylish house bathroom, while the second floor features an occasional room offering flexible use, ideal as a guest bedroom, home office or hobby space.

Externally, the property enjoys an enclosed rear garden with right of access for the neighbouring property, as well as a useful outside store. Street parking is plentiful.

This delightful home perfectly combines timeless Victorian character with contemporary finishes in an enviable location and must be viewed to be fully appreciated.

Additional Info

Offer Acceptance & AML Regulations

Under the Money Laundering, Terrorist Financing & Transfer of Funds Regulations 2017, we are required to obtain proof of the source of funds for the purchase, as well as identification documents for all prospective buyers. We kindly ask buyers to assist with this process to avoid any delays in agreeing a sale.

A fee of £42 (inclusive of VAT) per named buyer is payable by the successful purchaser(s). This fee covers the money laundering checks carried out by SmartSearch, the firm that administers our ID verification. Please note that the property will not be marked as sold subject to contract until all required identification has been provided and AML checks have been satisfactorily completed.

________________________________________

Mortgage Advice

We are pleased to offer mortgage advice through our partnership with CS Mortgage Solutions. To arrange an appointment, please contact the branch and we will organise for an advisor to help you find the most suitable mortgage for your circumstances.
The initial consultation is free of charge and without obligation. A fee may be payable should you choose to proceed with their services.

________________________________________

Please Note

The extent of the property and its boundaries are subject to confirmation by inspection of the title deeds. All measurements provided in these particulars are approximate and intended for guidance only. Fixtures, fittings and appliances have not been tested, and no warranty can be given regarding their condition or functionality. Internal photographs are supplied for general information and should not be taken to imply that any specific item is included in the sale.


Additional Information
Tenure: Freehold
Council Tax Band: B

Rooms
Additional Info
Offer Acceptance & AML Regulations

Under the Money Laundering, Terrorist Financing & Transfer of Funds Regulations 2017, we are required to obtain proof of the source of funds for the purchase, as well as identification documents for all prospective buyers. We kindly ask buyers to assist with this process to avoid any delays in agreeing a sale.

A fee of £42 (inclusive of VAT) per named buyer is payable by the successful purchaser(s). This fee covers the money laundering checks carried out by SmartSearch, the firm that administers our ID verification. Please note that the property will not be marked as sold subject to contract until all required identification has been provided and AML checks have been satisfactorily completed.

________________________________________

Mortgage Advice

We are pleased to offer mortgage advice through our partnership with CS Mortgage Solutions. To arrange an appointment, please contact the branch and we will organise for an advisor to help you find the most suitable mortgage for your circumstances.
The initial consultation is free of charge and without obligation. A fee may be payable should you choose to proceed with their services.

________________________________________

Please Note

The extent of the property and its boundaries are subject to confirmation by inspection of the title deeds. All measurements provided in these particulars are approximate and intended for guidance only. Fixtures, fittings and appliances have not been tested, and no warranty can be given regarding their condition or functionality. Internal photographs are supplied for general information and should not be taken to imply that any specific item is included in the sale.

Mortgage calculator

Calculate Your Stamp Duty
£
Results
Stamp Duty To Pay:
Effective Rate:
Tax Band % Taxable Sum Tax

Albert Square, Yeadon, Leeds

Want to explore Albert Square, Yeadon, Leeds further? Explore our local area guide

Struggling to find a property? Get in touch and we'll help you find your ideal property.