Standout Features

Property Description
Offered with NO CHAIN is a three bedroom detached house located in a popular residential area within the growing market town of Gainsborough which is well served with amenities including Marshalls Yard retail park, supermarkets, leisure facilities, the riverside and schooling. VIEWING HIGHLY RECOMMENDED.

ACCOMMODATION

Composite double glazed door leading into:

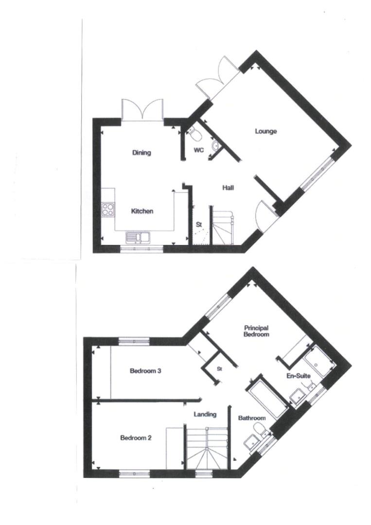
ENTRANCE HALLWAY

Stairs rising to the first floor accommodation with storage under and doors giving access into:

LOUNGE (4.95m x 3.31m)

uPVC double glazed window to the front elevation and uPVC double glazed French doors to the rear elevation, radiator and fireplace with electric fire feature and laminate flooring.

KITCHEN/DINER (4.93m x 3.61m)

uPVC double glazed window to the front elevation, uPVC double glazed French doors to the rear elevation, fitted kitchen comprising base, drawer and wall units with complementary work surface, tiled splashback, inset sink and drainer with mixer tap, integrated double oven, microwave, fridge, freezer and dishwasher, provision for automatic washing machine, laminate flooring, vertical radiator, spotlights to ceiling.

DOWNSTAIRS WC (1.45m x 1.49m)

Suite comprising w.c. and hand basin mounted in vanity unit, radiator and flooring continued from the Hallway.

FIRST FLOOR LANDING

Loft access with drop down ladder and doors giving access to:

BEDROOM (3.70m x 2.91m)

uPVC double glazed window to the front elevation, radiator and fitted double wardrobe.

BEDROOM (4.96m x 2.15m to maximum dimensions)

uPVC double glazed window to the rear elevation and range of fitted wardrobes, radiator.

MASTER BEDROOM (3.58m x 2.97m)

uPVC double glazed window to the rear elevation, radiator and fitted double wardrobe.

EN SUITE SHOWER ROOM (2.47m x 1.92m to maximum dimensions)

uPVC double glazed window to the front elevation, suite comprising w.c, hand basin mounted in vanity unit, shower cubicle, heated towel rail, tiled flooring and part tiled walls, spotlights to ceiling.

FAMILY BATHROOM (3.25m x 1.93m)

With suite comprising w.c., hand basin mounted in vanity unit, panel sided bath with mixer shower over, part tiled walls, tiled flooring and chorme heated towel rail.

EXTERNALLY

To the rear is a well presented low maintenance garden with york stone slabbed patio area, lawn area and pathway leading to the rear with pedestrian entrance into the Garage. Separate wooden constructed storage shed, glass canopy and gated access to the side. The front garden is mainly set to lawn with pathways leading to the front entrance door and side entrance.

TENURE - Freehold

COUNCIL TAX

Through enquiry of the West Lindsey District Council we have been advised that the property is in Rating Band 'B'

Estate agents operating in the UK are required to conduct Anti-Money Laundering (AML) checks in compliance with the regulations set forth by HM Revenue and Customs (HMRC) for all property transactions. It is mandatory for both buyers and sellers to successfully complete these checks before any property transaction can proceed. Our estate agency uses Coadjute’s Assured Compliance service to facilitate the AML checks. A fee will be charged for each individual AML check conducted


Additional Information
Tenure: Freehold
Council Tax Band: B

Rooms
ACCOMMODATION
Composite double glazed door leading into:
ENTRANCE HALLWAY
Stairs rising to the first floor accommodation with storage under and doors giving access into:
LOUNGE
uPVC double glazed window to the front elevation and uPVC double glazed French doors to the rear elevation, radiator and fireplace with electric fire feature and laminate flooring.
4.95m x 3.31m (16'2" x 10'10" )
KITCHEN/DINER
uPVC double glazed window to the front elevation, uPVC double glazed French doors to the rear elevation, fitted kitchen comprising base, drawer and wall units with complementary work surface, tiled splashback, inset sink and drainer with mixer tap, integrated double oven, microwave, fridge, freezer and dishwasher, provision for automatic washing machine, laminate flooring, vertical radiator, spotlights to ceiling.
4.93m x 3.61m (16'2" x 11'10" )
DOWNSTAIRS WC
Suite comprising w.c. and hand basin mounted in vanity unit, radiator and flooring continued from the Hallway.
1.45m x 1.49m (4'9" x 4'10" )
FIRST FLOOR LANDING
Loft access with drop down ladder and doors giving access to:
BEDROOM
uPVC double glazed window to the front elevation, radiator and fitted double wardrobe.
3.70m x 2.91m (12'1" x 9'6" )
BEDROOM
uPVC double glazed window to the rear elevation and range of fitted wardrobes, radiator.
4.96m x 2.15m to maximum dimensions (16'3" x 7'
MASTER BEDROOM
uPVC double glazed window to the rear elevation, radiator and fitted double wardrobe.
3.58m x 2.97m (11'8" x 9'8" )
EN SUITE SHOWER ROOM
uPVC double glazed window to the front elevation, suite comprising w.c, hand basin mounted in vanity unit, shower cubicle, heated towel rail, tiled flooring and part tiled walls, spotlights to ceiling.
2.47m x 1.92m to maximum dimensions (8'1" x 6'3" t
FAMILY BATHROOM
With suite comprising w.c., hand basin mounted in vanity unit, panel sided bath with mixer shower over, part tiled walls, tiled flooring and chorme heated towel rail.
3.25m x 1.93m (10'7" x 6'3" )
EXTERNALLY
To the rear is a well presented low maintenance garden with york stone slabbed patio area, lawn area and pathway leading to the rear with pedestrian entrance into the Garage. Separate wooden constructed storage shed, glass canopy and gated access to the side. The front garden is mainly set to lawn with pathways leading to the front entrance door and side entrance.
TENURE - Freehold

COUNCIL TAX
Through enquiry of the West Lindsey District Council we have been advised that the property is in Rating Band 'B'

Utilities
Electricity:
Mains Supply
Sewerage:
Mains Supply
Water:
Heating:
Gas Central

Mortgage calculator

Calculate Your Stamp Duty
£
Results
Stamp Duty To Pay:
Effective Rate:
Tax Band % Taxable Sum Tax

Brewster Road, Gainsborough, DN21 1ZA

Want to explore Brewster Road, Gainsborough, DN21 1ZA further? Explore our local area guide

Struggling to find a property? Get in touch and we'll help you find your ideal property.