3 bedroom House For Sale

Guide Price £650,000 | Available

3 bedroom House For Sale
or call 01580 763278
Standout Features

Property Description
GUIDE PRICE £650,000 - £700,000. NO ONWARD CHAIN. Attractive link-detached three-bedroom period cottage on a 2.3 acre plot with outbuildings, stables and paddocks, carport, double garage/workshop and office, enjoying stunning countryside views, located on the outskirts of the pretty village of Brookland.

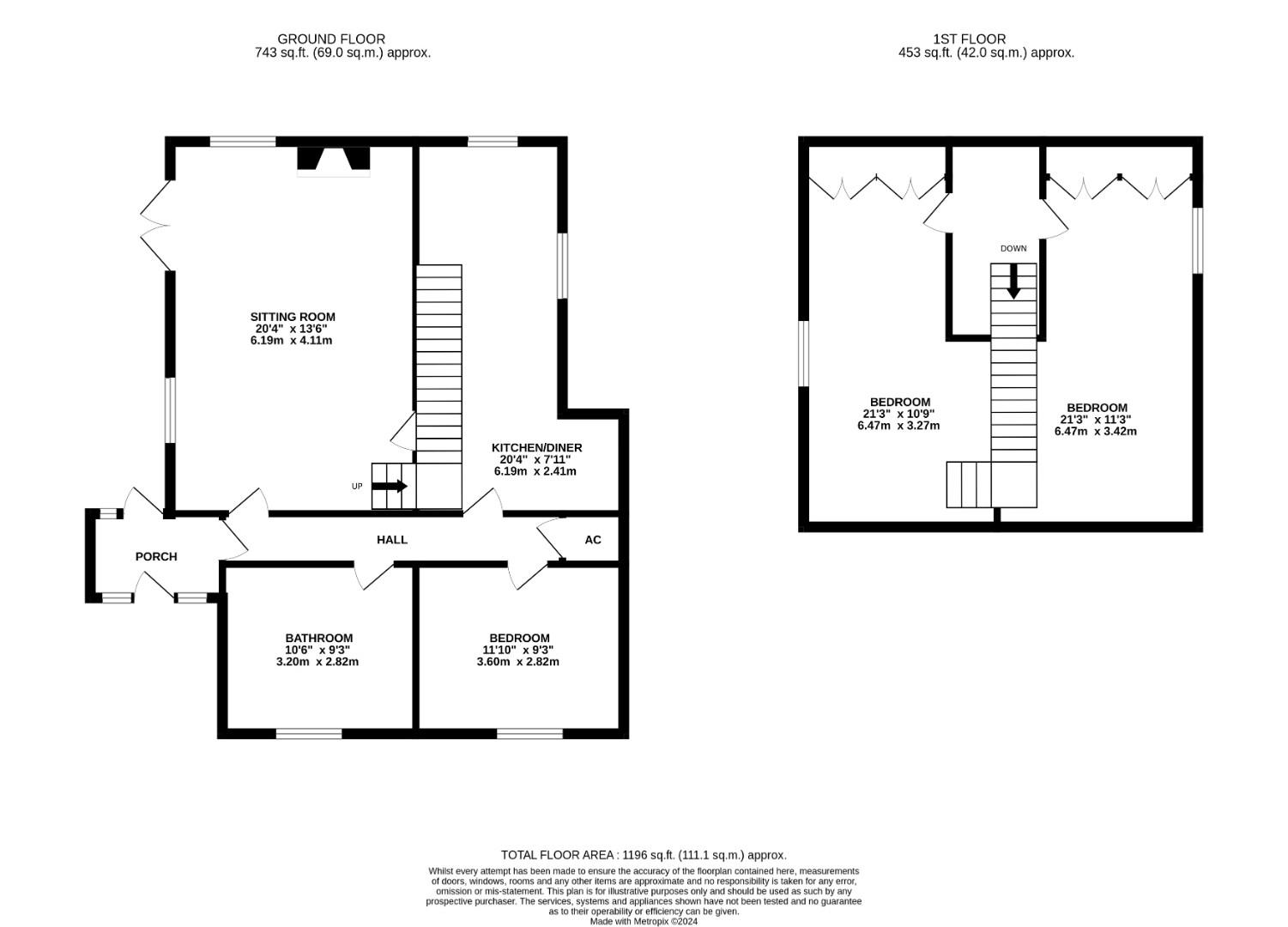
The accommodation is predominantly detached and offers a porch/boot room with door to rear deck, leading to the inner hall and on to a bright double aspect sitting room with French doors out to a decked terrace and enjoying stunning views over the surrounding countryside, with exposed brick fireplace and log burning stove, attractive cast radiator, stairs to first floor and doorway leading through to the kitchen/dining room fitted with a range of wall and base units with space for appliances and dining table and doorway back to the hall with further doorways leading to a double bedroom with cast radiator and a generous bathroom with suite comprising of a walk-in shower, bath, wall mounted basin and WC. The first floor offers two further double bedrooms both with built in storage and views.

Externally, the surroundings are breathtaking with the most glorious countryside views over open farmland. The established garden features a decked terrace offering the perfect spot for entertaining and enjoying the view. The garden is mainly laid to lawn with established shrubs and trees and gate leading to the outbuildings and driveway. There is also a large pond that is currently not in use.

The driveway is approached by large timber gate and leads to a block, recently reroofed and consisting of three stables, a car port, garage and an additional flexible room currently used as an office/home bar. The driveway offers extensive parking for multiple vehicles and leads to a further cladded storage unit with electricity and on to the gates leading to the paddocks. CCTV and alarms are installed to cover the yard and outbuildings area as well as the gates, garden and property

The property is situated in an idyllic rural location on the outskirts of the pretty village of Brookland. The village has a primary school and popular public house, and the larger medieval town of Rye is just 8 miles away with Tenterden and New Romney also nearby.

As well as good local state primary schools, several independent prep schools are within striking distance: Ashford, St Ronan's, Vinehall and Dulwich. Grammar schools for both boys and girls are situated in Ashford and Folkstone and The Marsh Academy is in New Romney. Coastal bathing beaches lie nearby at Littlestone and Camber and there are excellent links golf courses are at Rye and Littlestone and an active sailing club at Rye Harbour.

The property enjoys a rural setting yet offers excellent accessibility to the principal town of Ashford and its International Train Station boasts a journey time to London's St. Pancras in 38 minutes. Nearby Appledore also provides daily amenities, including a village store, public house, tea shop and village hall as well as a main line rail service to Ashford, where it connects with the high-speed service to London St Pancras.

Tenure – Freehold
Services – Mains Water, Private Sewerage, Electricity
Heating – Oil Central Heating
Broadband – Average Broadband Speed 5mb
Mobile Phone Coverage – Okay to Good
Flood Risk – Very Low


Additional Information
Tenure: Freehold
Council Tax Band: C

Mortgage calculator

Calculate Your Stamp Duty
£
Results
Stamp Duty To Pay:
Effective Rate:
Tax Band % Taxable Sum Tax

BROOKLAND

Want to explore BROOKLAND further? Explore our local area guide

Struggling to find a property? Get in touch and we'll help you find your ideal property.