Standout Features
- 10m Mooring
- Sought-after Ocean Village Marina Location
- Three Bedrooms
- Driveway Parking
- Balcony off Living Room
- Three Storey Townhouse
- 24 Hour Security
- Integral Garage
- No Onward Chain
- Waterside property
Property Description
*10m mooring in Ocean Village Marina*
*No Onward Chain*
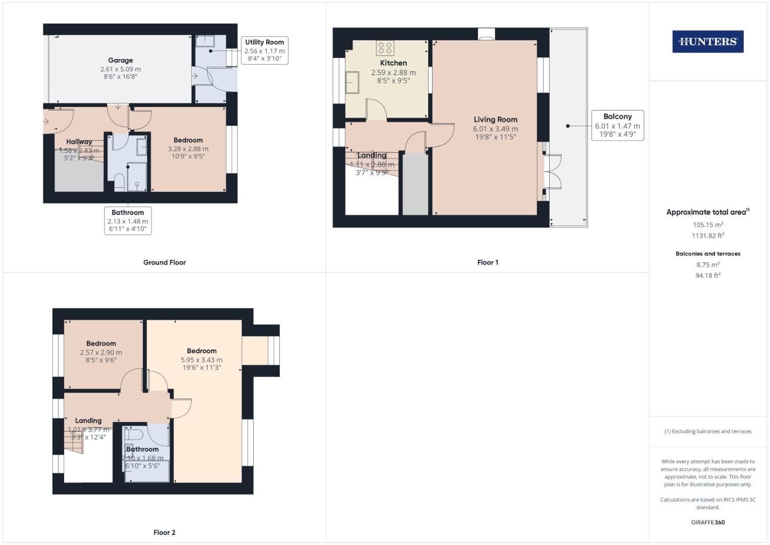
Situated waterside in the sought after Ocean Village Marina, this contemporary three bedroom townhouse, offered with no onward chain, features a charming wooden-decked balcony off the lounge, an ideal spot to relax and soak up the sunshine, and benefits from an exclusive 10 metre mooring.
Tucked away in a peaceful cul-de-sac, the property is just a short stroll from the vibrant amenities of Oxford Street, the bustling bars and restaurants of Ocean Village, and the prestigious Southampton Harbour Hotel.
Upon entering, you’ll find a generous integral garage and a practical utility room leading out to a private, patioed garden-perfect for both relaxation and entertaining guests. The ground floor also includes a double bedroom and a sleek en-suite bathroom with a walk-in shower.
Upstairs, the spacious lounge/diner is flooded with natural light and opens directly onto the delightful balcony, creating a seamless indoor-outdoor living experience. The adjacent kitchen is thoughtfully designed with glossy white cabinetry, warm wooden worktops, and a convenient serving hatch to the dining area. Additional storage is available on this floor for added practicality.
The top floor hosts two further double bedrooms and a stylish family bathroom adorned with contemporary brown stone tiles. Externally, the property benefits from driveway parking for two vehicles.
The marina offers 24-hour deep-water access, free from lock gates and strong currents, and provides excellent shelter from the elements.
Tenure Type; Leasehold
Leasehold Years remaining on lease; 962 Years remaining approx.
Leasehold Annual Service Charge Amount; £1183.58 Approx.
Leasehold Annual Reserve Fund; £3375.54 Approx.
Leasehold Annual Berth Rent; £462.00 Approx.
Leasehold Ground Rent Amount; £1.20 Peppercorn
Council Tax Banding; E
*No Onward Chain*
Situated waterside in the sought after Ocean Village Marina, this contemporary three bedroom townhouse, offered with no onward chain, features a charming wooden-decked balcony off the lounge, an ideal spot to relax and soak up the sunshine, and benefits from an exclusive 10 metre mooring.
Tucked away in a peaceful cul-de-sac, the property is just a short stroll from the vibrant amenities of Oxford Street, the bustling bars and restaurants of Ocean Village, and the prestigious Southampton Harbour Hotel.
Upon entering, you’ll find a generous integral garage and a practical utility room leading out to a private, patioed garden-perfect for both relaxation and entertaining guests. The ground floor also includes a double bedroom and a sleek en-suite bathroom with a walk-in shower.
Upstairs, the spacious lounge/diner is flooded with natural light and opens directly onto the delightful balcony, creating a seamless indoor-outdoor living experience. The adjacent kitchen is thoughtfully designed with glossy white cabinetry, warm wooden worktops, and a convenient serving hatch to the dining area. Additional storage is available on this floor for added practicality.
The top floor hosts two further double bedrooms and a stylish family bathroom adorned with contemporary brown stone tiles. Externally, the property benefits from driveway parking for two vehicles.
The marina offers 24-hour deep-water access, free from lock gates and strong currents, and provides excellent shelter from the elements.
Tenure Type; Leasehold
Leasehold Years remaining on lease; 962 Years remaining approx.
Leasehold Annual Service Charge Amount; £1183.58 Approx.
Leasehold Annual Reserve Fund; £3375.54 Approx.
Leasehold Annual Berth Rent; £462.00 Approx.
Leasehold Ground Rent Amount; £1.20 Peppercorn
Council Tax Banding; E
Additional Information
| Tenure: | Leasehold |
|---|---|
| Lease Years Remaining: | 962 |
| Ground Rent: | £1 per year |
| Service Charge: | £5,021 per year |
| Council Tax Band: | E |
Rooms
AML
Agents are required by law to conduct anti-money laundering checks on all those buying a property. We outsource the initial checks to partner suppliers Coadjute who will contact you once you have had an offer accepted on a property you wish to buy.
The cost of these checks is £48inc vat per person. This is a non-refundable fee.
These charges cover the cost of obtaining relevant data, any manual checks and monitoring which might be required.
This fee will need to be paid and the checks completed in advance of the office issuing a memorandum of sale on the property you would like to buy.
Mortgage calculator
Calculate Your Stamp Duty
Results
Stamp Duty To Pay:
Effective Rate:
| Tax Band | % | Taxable Sum | Tax |
|---|
Cadland Court, Channel Way, Ocean Village, Southampton
Want to explore Cadland Court, Channel Way, Ocean Village, Southampton further? Explore our local area guide
Struggling to find a property? Get in touch and we'll help you find your ideal property.