Standout Features

Property Description
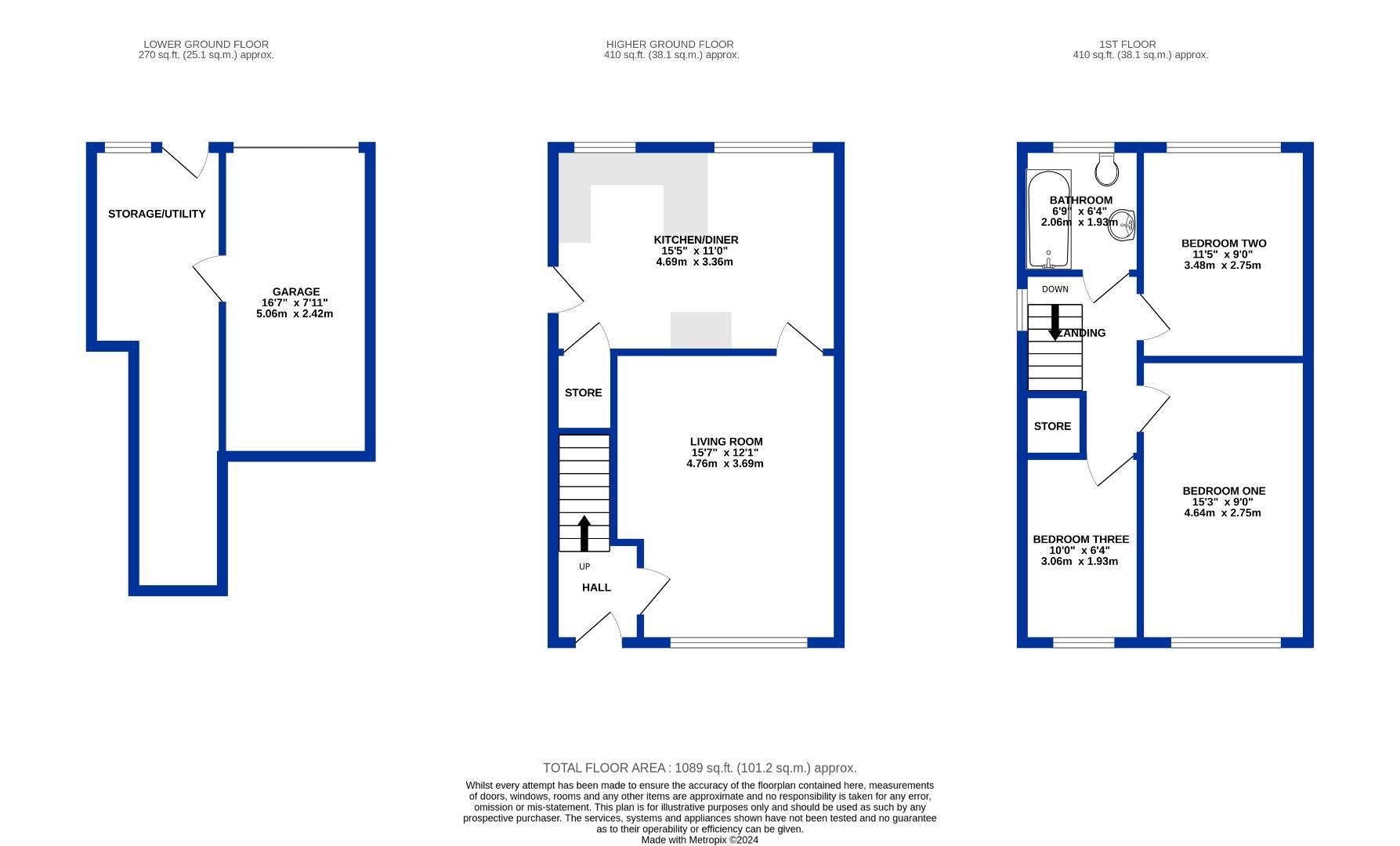
This brick built three-bedroom detached home in a vibrant urban community features neutral decor, a cosy reception room, a well-equipped kitchen with dining space, a tiled bathroom, and a lower floor garage, all conveniently located near public transport and commuting links.

Welcome to this delightful three-bedroom detached home that's up for sale! This property boasts a neutral decor, with potential to improve and add value. The home is perfect for families, couples, or sharers looking for a peaceful abode in an urban area with a strong local community and excellent commuting links to the city.

The property features a separate LIVING room with an under stairs cupboard and a charming front bow window, perfect for enjoying a quiet moment with a book or welcoming guests. The KITCHEN/DINER is a cook's delight, equipped with ample units and drawers for storage, a worktop with a sink, and a gas hob and double oven. Not to mention, it also houses a dining space, perfect for family meals or entertaining guests.

The property offers THREE bedrooms, two of which are doubles, while the third one is a single room that can also be utilized as a home office. The BATHROOM is well presented with tiled walls, a white suite, an electric shower over the bath, and a vanity-style sink.

One of the unique features of this property is the lower floor GARAGE/STORE, which offers ample storage space or a safe place to keep your car. Plus, ample rear parking is available for added convenience. The home is also fitted with gas central heating and PVC double glazed windows for your comfort and peace of mind.

The location of the property is a commuter's dream, with public transport links, cycling routes, and commuting links to the city. plus, the more than ample car parking spaces and under house garage, a unique feature that adds to the charm of this home. Come and see the potential of this lovely property for yourself!

HALL

LIVING ROOM (4.76m x 3.69m)

KITCHEN/DINER (4.69m x 3.36m)

LANDING

BATHROOM (2.06m x 1.93m)

BEDROOM TWO (3.48m x 2.75m)

BEDROOM ONE (4.64m x 2.75m)

BEDROOM THREE (3.06m x 1.93m)


Additional Information
Tenure: Freehold
Council Tax Band: C

Rooms
HALL

LIVING ROOM

4.76m x 3.69m (15'7" x 12'1")
KITCHEN/DINER

4.69m x 3.36m (15'4" x 11'0")
LANDING

BATHROOM

2.06m x 1.93m (6'9" x 6'3")
BEDROOM TWO

3.48m x 2.75m (11'5" x 9'0")
BEDROOM ONE

4.64m x 2.75m (15'2" x 9'0")
BEDROOM THREE

3.06m x 1.93m (10'0" x 6'3")

Mortgage calculator

Calculate Your Stamp Duty
£
Results
Stamp Duty To Pay:
Effective Rate:
Tax Band % Taxable Sum Tax

Green Hill Road, Leeds

Want to explore Green Hill Road, Leeds further? Explore our local area guide

Struggling to find a property? Get in touch and we'll help you find your ideal property.