3 bedroom House For Sale

£230,000 | Available

3 bedroom House For Sale
or call 0113 257 6198
Standout Features

Property Description
A vacant, no-chain two-bedroom, plus loft room, semi-detached house in sought-after Rodley, offering neutral décor, flexible additional room, off-road parking, an enclosed rear garden with improvement potential, and convenient access to green spaces, amenities, and commuter links to Leeds and Bradford.

This UNIQUE and charming TWO bedroom semi detached home is for sale with NO ONWARD CHAIN, offering a fantastic opportunity to secure a characterful property in the ever popular area of Rodley, ideal for buyers seeking something with warmth, personality and scope to make their own.

Internally, the COTTAGE feel is immediately evident. The open plan living space is welcoming and full of character, featuring HARDWOOD FLOOIRNG, a front bay window that draws in natural light, and a cosy LOG BURNING STOVE. The space flows naturally through to the kitchen diner, creating a sociable and comfortable environment for everyday living.

The KITCHEN DINER is generously sized with ample storage, worktop space and room for dining, offering excellent potential to enhance while retaining the home’s charm.

To the first floor, there are two well proportioned DOUBLE bedrooms, with the main bedroom benefiting from built in wardrobes. The BATHROOM is also located on the first floor and is fitted with a clean white suite and electric shower. In addition, there is a useful ROOM in the roof, previously utilised as a bedroom, providing FLEXIBLE space ideal for a home office, hobby room or occasional use, allowing buyers to adapt the home to suit their lifestyle.

Externally, the property benefits from off road PARKING to the front and an enclosed rear garden that offers clear potential for improvement and landscaping, creating a private outdoor retreat to complement the cottage style interior.

The LOCATION is a real draw, set within Rodley and well placed for access to nearby green spaces, including CANAL SIDE WALKS and cycling routes. There are convenient local amenities close by, along with a direct bus route into LEEDS and great connections to surrounding hotspots such as Ilkley and Harrogate, making this an ideal balance between village feel and wider accessibility.

Offered with VACANT POSSESSION and NO CHAIN this home is ready for a straightforward purchase and will appeal to first time buyers, investors and those looking for a truly individual property that stands out from more conventional homes.

An internal inspection is HIGHLY advised to fully appreciate the character, flexibility and unique feel on offer!

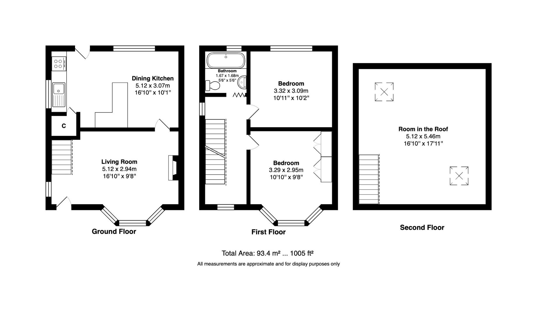
DINING KITCHEN (5.12m x 3.07m)

LIVING ROOM (5.12m x 2.94m)

BEDROOM (3.32m x 3.09m)

BEDROOM (3.29m x 2.95)

BATHROOM (1.68m x 1.67m)

ROOM IN ROOF (5.46m x 5.12m)


Additional Information
Tenure: Freehold
Council Tax Band: B

Rooms
DINING KITCHEN

5.12m x 3.07m (16'9" x 10'0")
LIVING ROOM

5.12m x 2.94m (16'9" x 9'7")
BEDROOM

3.32m x 3.09m (10'10" x 10'1")
BEDROOM

3.29m x 2.95 (10'9" x 9'8")
BATHROOM

1.68m x 1.67m (5'6" x 5'5")
ROOM IN ROOF

5.46m x 5.12m (17'10" x 16'9")

Mortgage calculator

Calculate Your Stamp Duty
£
Results
Stamp Duty To Pay:
Effective Rate:
Tax Band % Taxable Sum Tax

Hawthorn Grove, Rodley, LS13 1NH

Want to explore Hawthorn Grove, Rodley, LS13 1NH further? Explore our local area guide

Struggling to find a property? Get in touch and we'll help you find your ideal property.