- THREE BEDROOM
- SEMI DETACHED HOUSE
- FIRST FLOOR BATHROOM
- TWO RECEPTION ROOMS
- FRONT GARDEN
- APPROX 120FT L SHAPED REAR GARDEN
- CHAIN FREE
- BACKING ONTO GOODMAYES PARK
- EASY ACCESS TO GOODMAYES STATION
- MUCH SOUGHT AFTER LOCATION
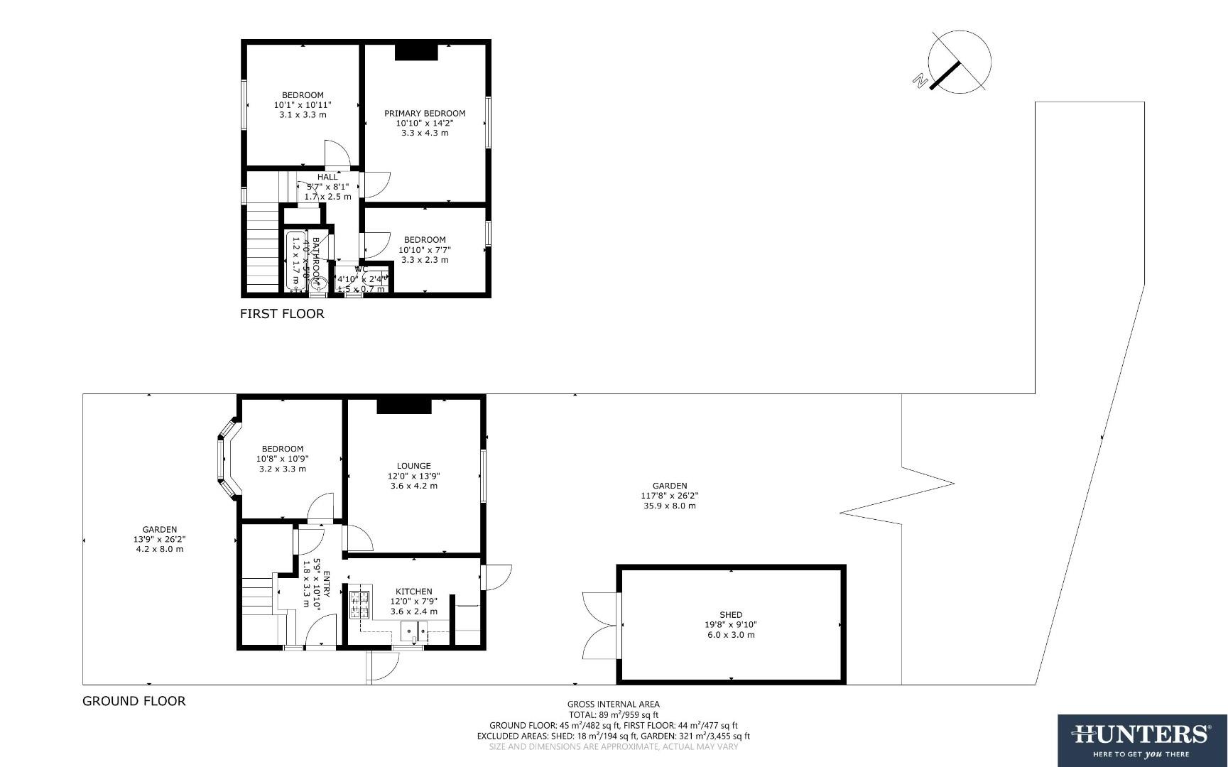
The first-floor bathroom adds convenience to daily living, while the well-proportioned bedrooms provide ample space for relaxation and rest. The front garden offers a welcoming entrance, and the standout feature of this home is the approximately 120-foot L-shaped rear garden. This expansive outdoor space not only provides a perfect setting for summer barbecues and children's play but also backs onto the picturesque Goodmayes Park, enhancing the appeal of outdoor living.
For those who commute, Goodmayes Station is within easy reach, ensuring swift access to central London and beyond. The property is chain-free, making it an attractive option for those looking to move in without delay. Situated in a much sought-after location, this semi-detached house is a rare find that combines comfort, convenience, and a lovely community atmosphere. Don't miss the chance to make this delightful home your own.
Entrance Hall
Lounge (4.19m x 3.66m)
Dining Room (3.28m x 3.25m)
Kitchen (3.66m x 2.36m)
Primary Bedroom (4.32m x 3.30m)
Bedroom Two (3.33m x 3.07m)
Bedroom Three (3.30m x 2.31m)
Bathroom (1.52m x 1.22m)
Garden L shaped (approx 36.58m)
Disclaimer:
All information provided in relation to this property does not constitute or form part of an offer or contract, nor may it be regarded as representations, they are to be used for marketing purposes only. All interested parties are responsible to verify accuracy and your solicitor must verify tenure/lease information, ground rent/service charges, fixtures and fittings and, where the property has been extended/converted, planning/building regulation consents. All dimensions are approximate and quoted for guidance only as are floor plans which are not to scale and their accuracy cannot be confirmed. Reference to appliances and/or services does not imply they are tested and that they are necessarily in working order or fit for the purpose. Any costs occurred would be at the expense of the potential purchaser.
| Tenure: | Freehold |
|---|---|
| Council Tax Band: | C |
4.19m x 3.66m (13'9 x 12'0 )
3.28m x 3.25m (10'9 x 10'8 )
3.66m x 2.36m (12'0 x 7'9 )
4.32m x 3.30m (14'2 x 10'10 )
3.33m x 3.07m (10'11 x 10'1 )
3.30m x 2.31m (10'10 x 7'7 )
1.52m x 1.22m (5'0 x 4'0 )
approx 36.58m (approx 120')
| Tax Band | % | Taxable Sum | Tax |
|---|
Want to explore Mayesbrook Road, Dagenham, RM8 further? Explore our local area guide
Struggling to find a property? Get in touch and we'll help you find your ideal property.