Standout Features

Property Description
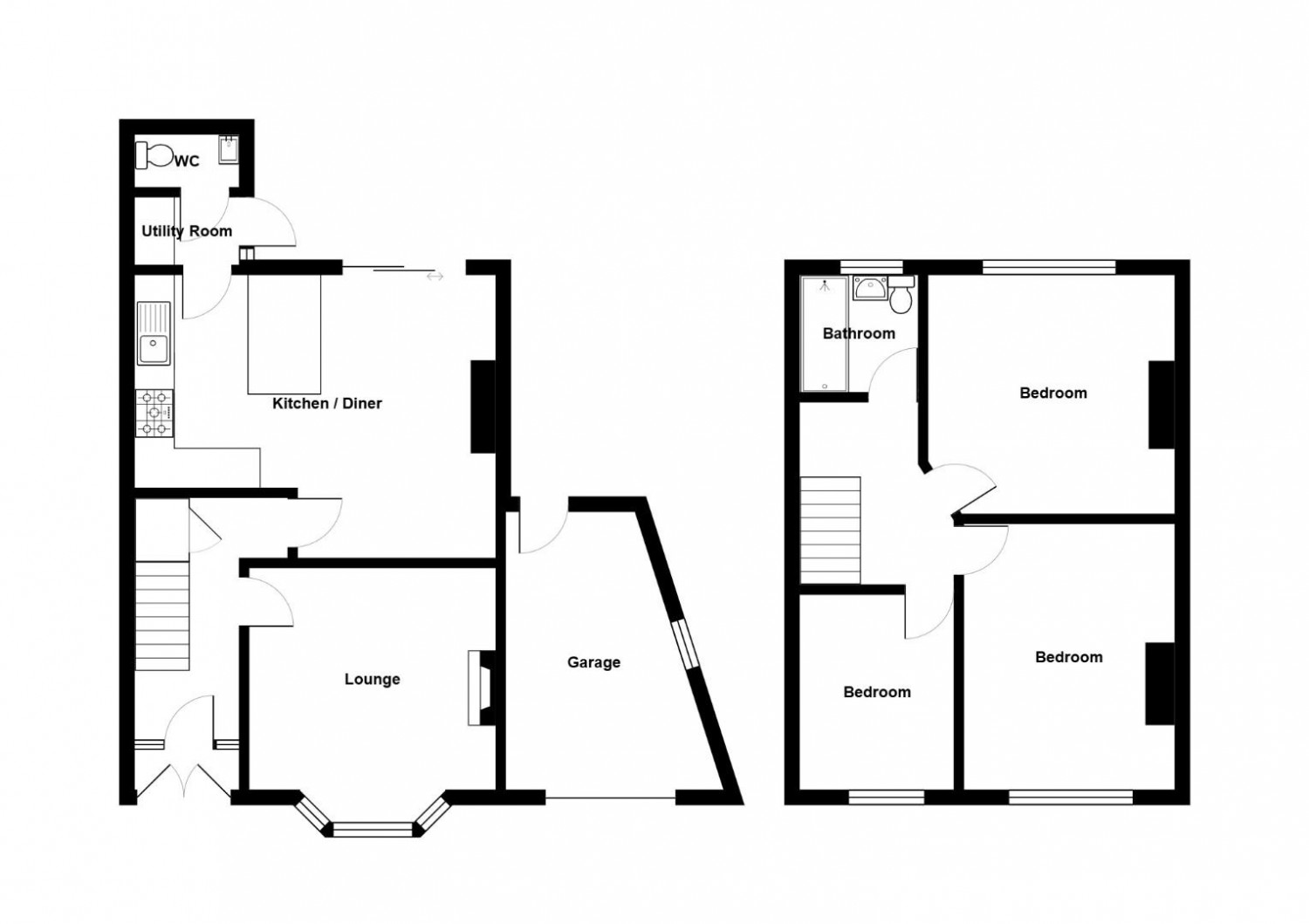
Hunters, Fishponds are very pleased to offer for sale this attractive 1930's end terrace property located on a no through road position within walking distance to the high street offering many shops. There is also easy access to the cycle track and Bristol centre. This well-presented property has been the subject to modernising over the years by the present occupier and would suit either families or first time buyers. Internally to the ground floor there is a good size lounge with multi fuel burner, a lovely open plan modern kitchen/diner with Upvc dg sliding doors with views onto the rear garden. There is also a utility room and modern fitted downstairs cloakroom. To the first floor there are 3 double bedrooms and contemporary fitted shower room. Further benefits include, UPVC dg windows, gas central heating via a Worcester combi boiler, off street parking for 2 vehicles, side pedestrian access, a single attached garage, and an enclosed rear garden with rear pedestrian access. Internal viewing strongly recommended.

Entrance

Double glazed double doors to...

Inner Porch

1930's style panelled door with attractive leaded stained glass feature window leading to...

Hallway

Radiator, stairs to first floor, under stairs built in storage, wood grain effect laminate flooring.

Lounge (4.08m x 3.86m into bay and recess)

Radiator, UPVC double glazed bay window to front, picture rail, chimney breast opening with multi fuel burner.

Open Plan Kitchen/Diner (4.38m x 3.41m widening to 5.60m)

Dining Area

UPVC double glazed sliding doors to rear with views onto garden, space and area for dining table and chairs, wood grain effect laminate flooring, radiator, opening to...

Kitchen

Modern fitted matt finished base and wall units with beech block effect wood working surfaces incorporating a one and quarter bowl sink, plumbing for dishwasher, fitted induction hob with oven below and extractor over, space for fridge freezer. separate breakfast island with beech block effect wood work surface allowing seating under and extra storage with cupboards and drawers below.

Utility Room (1.73m x 1.22m)

Wall mounted Worcester gas combination boiler serving central heating and hot water, plumbing for washing machine, space for tumble dryer, wood grain effect laminate floor, double glazed door to side leading to garden.

Cloak Room

Radiator, modern fitted low level WC, sink into storage unit with cupboard below and tiled splash back, wood grain effect laminate floor.

First Floor Landing

Bedroom One (4.27m x 3.40m)

UPVC double glazed window to front, radiator, picture rail.

Bedroom Two (3.94m x 3.83m)

UPVC double glazed window to rear with pleasant outlook and views onto rear garden, radiator, picture rail.

Bedroom Three (3.26m x 2.07m)

UPVC double glazed window to front, radiator.

Shower Room

Opaque UPVC double glazed window to rear, contemporary fitted with extra large shower tray having overhead shower off main system, low level WC, sink into storage unit with cupboard below, chrome effect heated towel rail, decoratively tiled throughout.

Exterior To The Rear

Blocked paved patio adjoining the property the remainder is laid to lawn with mixed fence and hedge borders with raised block paved patio area located to the rear of the garden with pedestrain access gate, there is also side access via pedestrian gate leading to the front and also access to garage.

To The Front

Offers a block paved driveway for the off street parking for 2 vehicles, side pedestrian access via gate.

Garage (4.36m x 3.30)

With up and over door, power and light.

AML (Anti money laundering)

‘’Estate agents operating in the UK are required to conduct Anti-Money Laundering (AML) checks in compliance with the regulations set forth by HM Revenue and Customs (HMRC) for all property transactions. It is mandatory for both buyers and sellers to successfully complete these checks before any property transaction can proceed. Our estate agency uses Coadjute’s Assured Compliance service to facilitate the AML checks. A fee will be charged for each individual AML check conducted’’


Additional Information
Tenure: Freehold
Council Tax Band: C

Rooms
Entrance
Double glazed double doors to...
Inner Porch
1930's style panelled door with attractive leaded stained glass feature window leading to...
Hallway
Radiator, stairs to first floor, under stairs built in storage, wood grain effect laminate flooring.
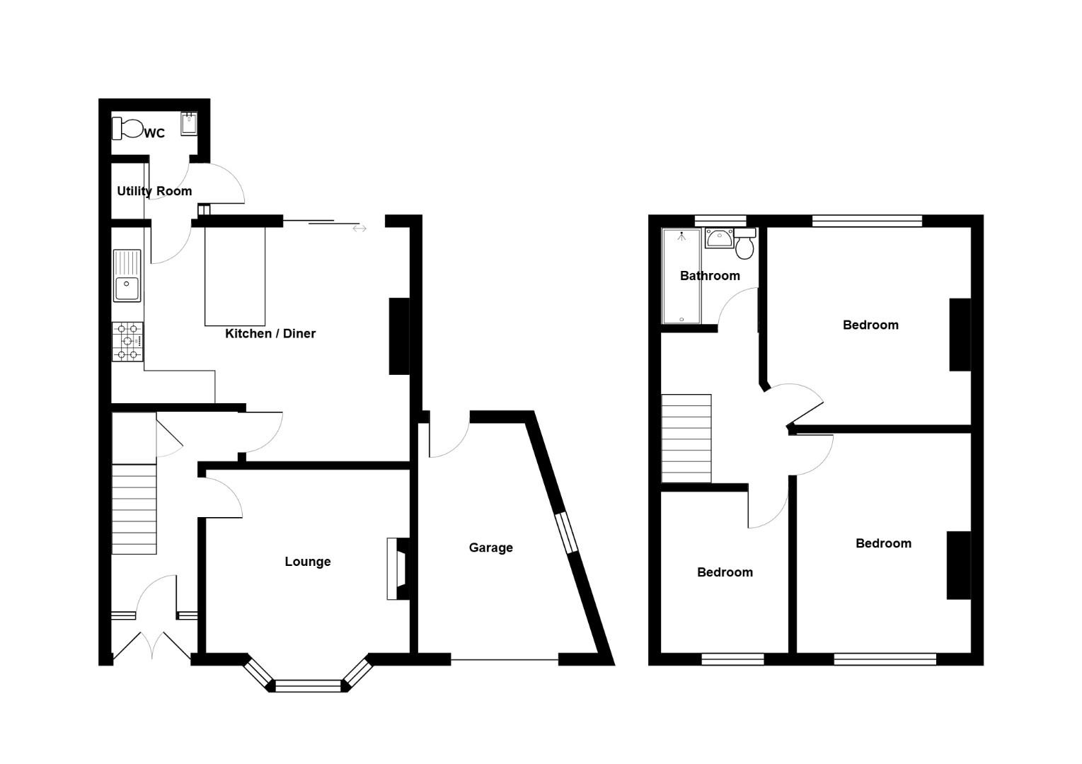
Lounge
Radiator, UPVC double glazed bay window to front, picture rail, chimney breast opening with multi fuel burner.
4.08m x 3.86m into bay and recess (13'4" x 12'7"
Open Plan Kitchen/Diner

4.38m x 3.41m widening to 5.60m (14'4" x 11'2" wi
Dining Area
UPVC double glazed sliding doors to rear with views onto garden, space and area for dining table and chairs, wood grain effect laminate flooring, radiator, opening to...
Kitchen
Modern fitted matt finished base and wall units with beech block effect wood working surfaces incorporating a one and quarter bowl sink, plumbing for dishwasher, fitted induction hob with oven below and extractor over, space for fridge freezer. separate breakfast island with beech block effect wood work surface allowing seating under and extra storage with cupboards and drawers below.
Utility Room
Wall mounted Worcester gas combination boiler serving central heating and hot water, plumbing for washing machine, space for tumble dryer, wood grain effect laminate floor, double glazed door to side leading to garden.
1.73m x 1.22m (5'8" x 4'0")
Cloak Room
Radiator, modern fitted low level WC, sink into storage unit with cupboard below and tiled splash back, wood grain effect laminate floor.
First Floor Landing

Bedroom One
UPVC double glazed window to front, radiator, picture rail.
4.27m x 3.40m (14'0" x 11'1" )
Bedroom Two
UPVC double glazed window to rear with pleasant outlook and views onto rear garden, radiator, picture rail.
3.94m x 3.83m (12'11" x 12'6" )
Bedroom Three
UPVC double glazed window to front, radiator.
3.26m x 2.07m (10'8" x 6'9" )
Shower Room
Opaque UPVC double glazed window to rear, contemporary fitted with extra large shower tray having overhead shower off main system, low level WC, sink into storage unit with cupboard below, chrome effect heated towel rail, decoratively tiled throughout.
Exterior To The Rear
Blocked paved patio adjoining the property the remainder is laid to lawn with mixed fence and hedge borders with raised block paved patio area located to the rear of the garden with pedestrain access gate, there is also side access via pedestrian gate leading to the front and also access to garage.
To The Front
Offers a block paved driveway for the off street parking for 2 vehicles, side pedestrian access via gate.
Garage
With up and over door, power and light.
4.36m x 3.30 (14'3" x 10'9")
AML (Anti money laundering)
‘’Estate agents operating in the UK are required to conduct Anti-Money Laundering (AML) checks in compliance with the regulations set forth by HM Revenue and Customs (HMRC) for all property transactions. It is mandatory for both buyers and sellers to successfully complete these checks before any property transaction can proceed. Our estate agency uses Coadjute’s Assured Compliance service to facilitate the AML checks. A fee will be charged for each individual AML check conducted’’

Mortgage calculator

Calculate Your Stamp Duty
£
Results
Stamp Duty To Pay:
Effective Rate:
Tax Band % Taxable Sum Tax

Mayfield Avenue, Bristol, BS16 3NL

Want to explore Mayfield Avenue, Bristol, BS16 3NL further? Explore our local area guide

Struggling to find a property? Get in touch and we'll help you find your ideal property.