Plot 5, High Farm, Middle Street, Kilham, Driffield

Guide Price £725,000 | SSTC

3 bedroom House Sold STC
or call 01482 861411
Property Description
A MASTERPIECE OF MODERN LIVING!

Nestled in the picturesque Yorkshire Wolds village of Kilham, where rolling hills and breath-taking countryside provide an idyllic backdrop, Woodhouse Lund Ltd proudly presents a one-of-a-kind detached new build, redefining the meaning of luxury living. Known for their exceptional quality and innovative designs, this local builder has truly outdone themselves.
Set in the thriving village of Kilham, your new home offers access to a warm and vibrant community, complemented by its stunning surroundings. The nearby rolling hills and countryside create a constant sense of well-being, a place where you can't help but smile each time you return.
Indulge in a lifestyle like no other in this exceptional property. Contact us today to make your dream home a reality, and let Woodhouse Lund Ltd transform your vision into a masterpiece of modern living. Don't miss this opportunity to be a part of the exclusive High Farm estate community.

Property Highlights:

Unrivaled Design:

This spacious three-bedroom detached property is a masterpiece of design, offering a lifestyle home like no other. Its intuitive layout seamlessly combines modernity and functionality, setting new standards for contemporary living.

Prime Corner Plot:

Situated on an exclusive corner plot, the property boasts wrap-around gardens and a fabulous outlook, ensuring you're enveloped in natural beauty and tranquility every time you return home.

Unique Development:

Forming part of an exclusive development on the prestigious High Farm estate, this property is one of just nine homes in this coveted community.

Property Features:

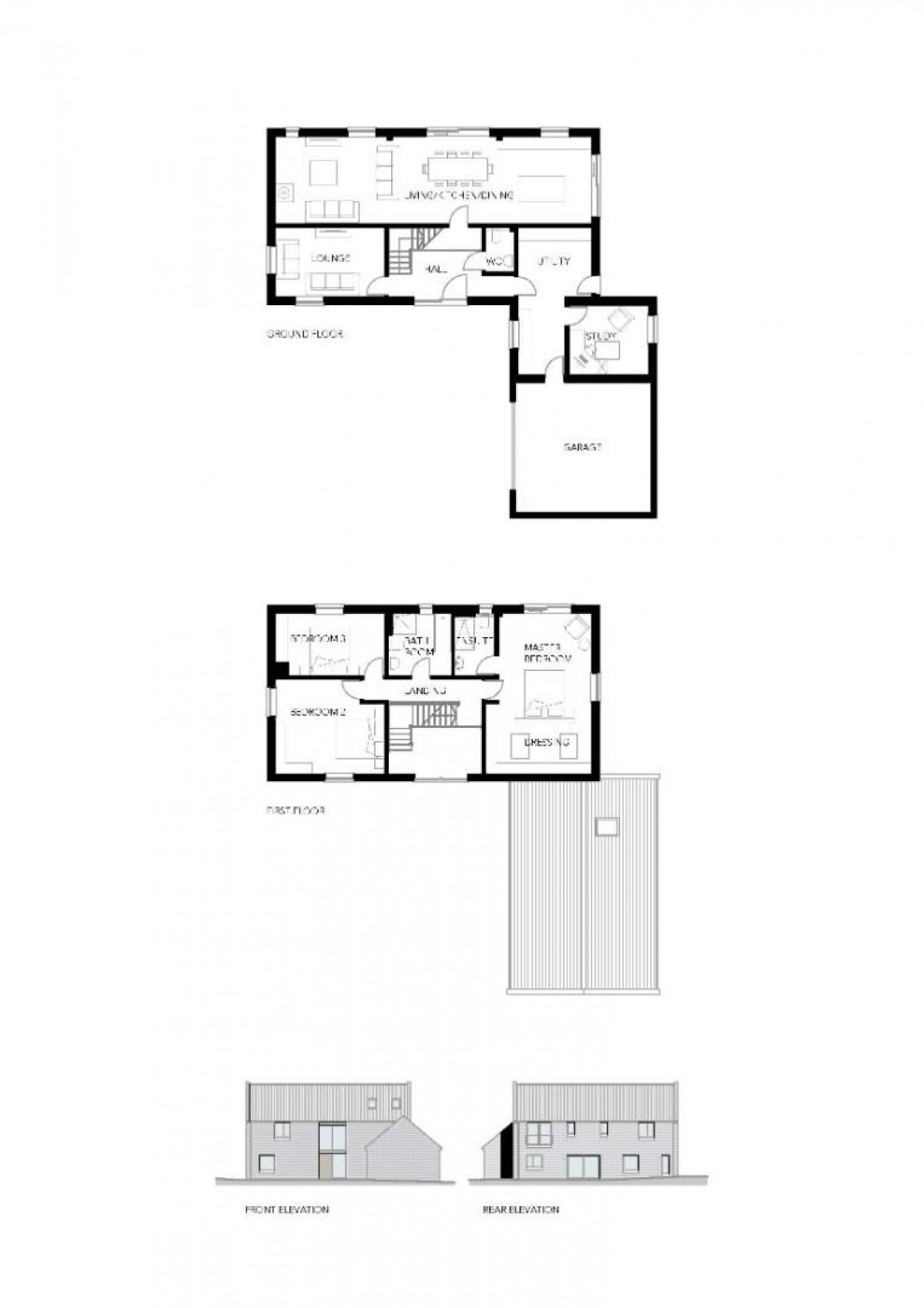
Ground Floor:

The lower level comprises an inviting entrance hall, a cosy lounge, a home office for added convenience, and a sprawling open-plan kitchen, dining, and family room that bathes in natural light. A separate utility room and a WC complete the ground floor.

Master Suite:

The first floor is dedicated to a luxurious master suite, complete with a dressing room and an en-suite shower room, allowing you to indulge in comfort and privacy.

Additional Bedrooms:

Two more generously sized double bedrooms and a modern house bathroom await you on the first floor, providing ample space for family or guests.

Exterior:

The property is perfectly positioned on its corner lot, offering a well-manicured garden that wraps around the house. Additionally, you have a garage and off-road parking at your disposal.

Customisation

Secure your dream home early and have a say in the specifications, making it uniquely yours.


Additional Information
Tenure: Freehold

Rooms
Property Highlights:

Unrivaled Design:
This spacious three-bedroom detached property is a masterpiece of design, offering a lifestyle home like no other. Its intuitive layout seamlessly combines modernity and functionality, setting new standards for contemporary living.
Prime Corner Plot:
Situated on an exclusive corner plot, the property boasts wrap-around gardens and a fabulous outlook, ensuring you're enveloped in natural beauty and tranquility every time you return home.
Unique Development:
Forming part of an exclusive development on the prestigious High Farm estate, this property is one of just nine homes in this coveted community.
Property Features:

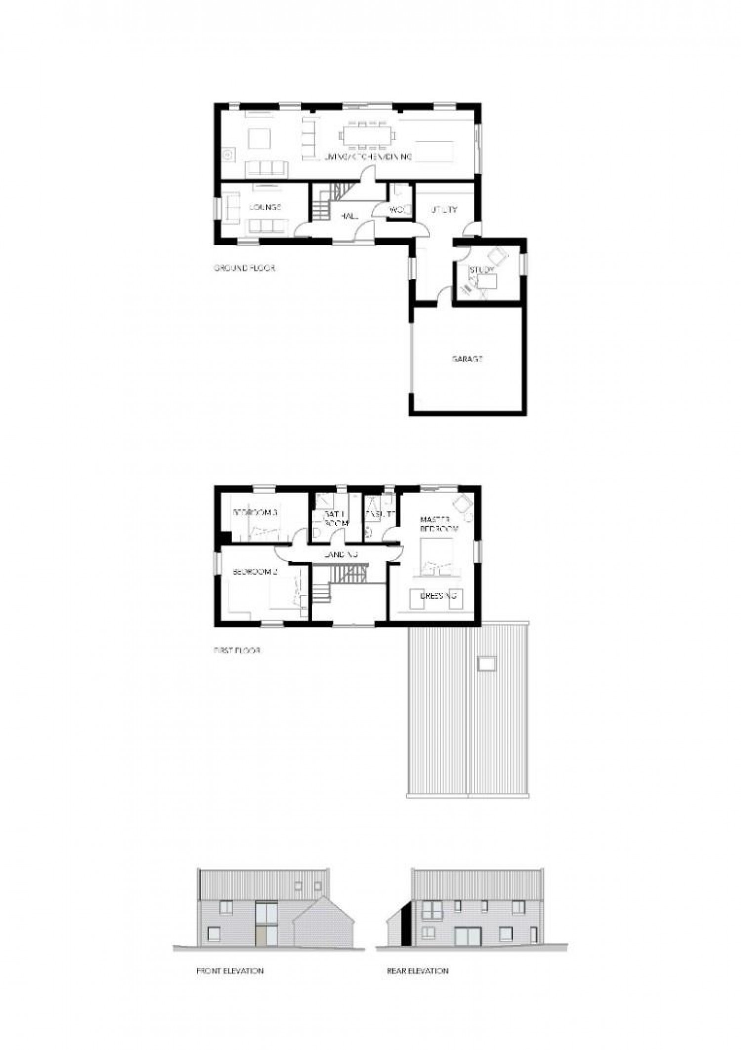
Ground Floor:
The lower level comprises an inviting entrance hall, a cosy lounge, a home office for added convenience, and a sprawling open-plan kitchen, dining, and family room that bathes in natural light. A separate utility room and a WC complete the ground floor.
Master Suite:
The first floor is dedicated to a luxurious master suite, complete with a dressing room and an en-suite shower room, allowing you to indulge in comfort and privacy.
Additional Bedrooms:
Two more generously sized double bedrooms and a modern house bathroom await you on the first floor, providing ample space for family or guests.
Exterior:
The property is perfectly positioned on its corner lot, offering a well-manicured garden that wraps around the house. Additionally, you have a garage and off-road parking at your disposal.
Customisation
Secure your dream home early and have a say in the specifications, making it uniquely yours.

Mortgage calculator

Calculate Your Stamp Duty
£
Results
Stamp Duty To Pay:
Effective Rate:
Tax Band % Taxable Sum Tax

Plot 5, High Farm, Middle Street, Kilham, Driffield

Want to explore Plot 5, High Farm, Middle Street, Kilham, Driffield further? Explore our local area guide

Struggling to find a property? Get in touch and we'll help you find your ideal property.