3 bedroom House For Sale

£350,000 | Available

3 bedroom House For Sale
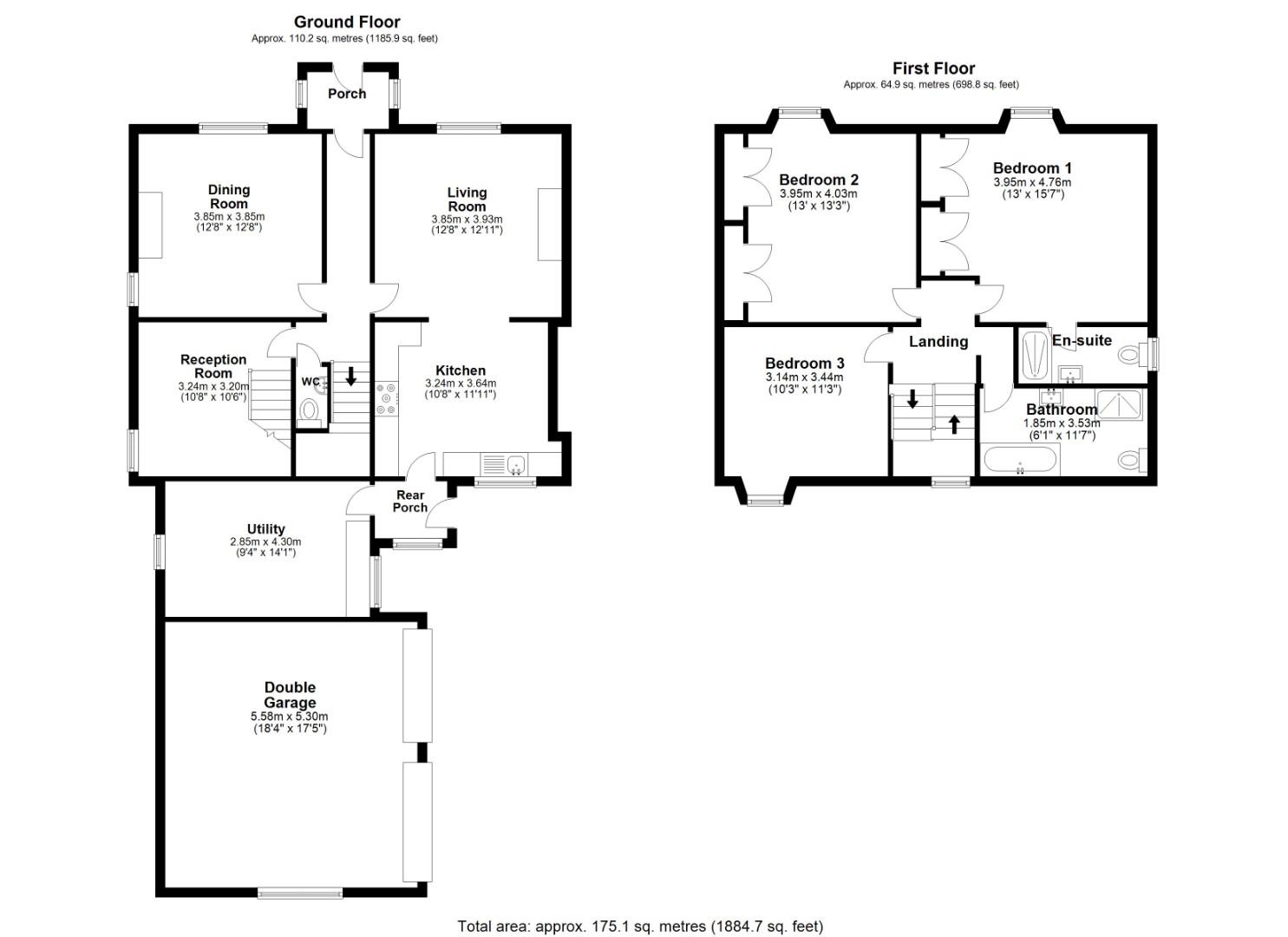
Total Size: 1885 SQ FT
or call 01977 604600
Standout Features

Property Description
HUNTERS are pleased to offer to the for sale market a rare opportunity to purchase a beautiful double fronted detached property, oozing character, in an extremely sought after rural location within walking distance of Fairburn Ings Nature Reserve, country walks and pub lunches. Also being close to the A1 motorway so is ideal for the commuter. Could this be your next home?

The property is in a central location in the middle of the village. With a delightful enclosed front garden with paving and mature shrubs and entrance to the property through a front porch. There are beams to the ceiling of the dining room and living room and decorative fireplaces in both. The living room opens into a kitchen, again with beams to the ceiling and fitted with base and wall units with worktop surfaces and incorporating space for a range style cooker with an extractor fan over. The kitchen space also benefits from a mutli fuel log burning stove and a handy utility room. Also having the benefit of a stove style fire inset into the chimney breast. A rear entrance porch gives access to the rear garden and the extra large utility room/second kitchen. A reception room with stairs leading a to a basement and a ground floor WC complete this floor.

To the first floor are three good sized bedrooms, two having fitted storage and bedroom one having an ensuite shower room. A family bathroom with four piece suite consisting of a rectangular bath, pedestal hand wash basin and a WC. Additionally fitted with a cubicle housing a shower.

To the side of the property is wrought iron gates giving access to the block paved drive and double garage, benefitting from electric doors, at the rear. Mature shrub border.


Additional Information
Tenure: Freehold
Council Tax Band: E

Mortgage calculator

Calculate Your Stamp Duty
£
Results
Stamp Duty To Pay:
Effective Rate:
Tax Band % Taxable Sum Tax

Silver Street, Fairburn, Knottingley

Want to explore Silver Street, Fairburn, Knottingley further? Explore our local area guide

Struggling to find a property? Get in touch and we'll help you find your ideal property.