3 bedroom House For Sale

Guide Price £375,000 | Available

3 bedroom House For Sale
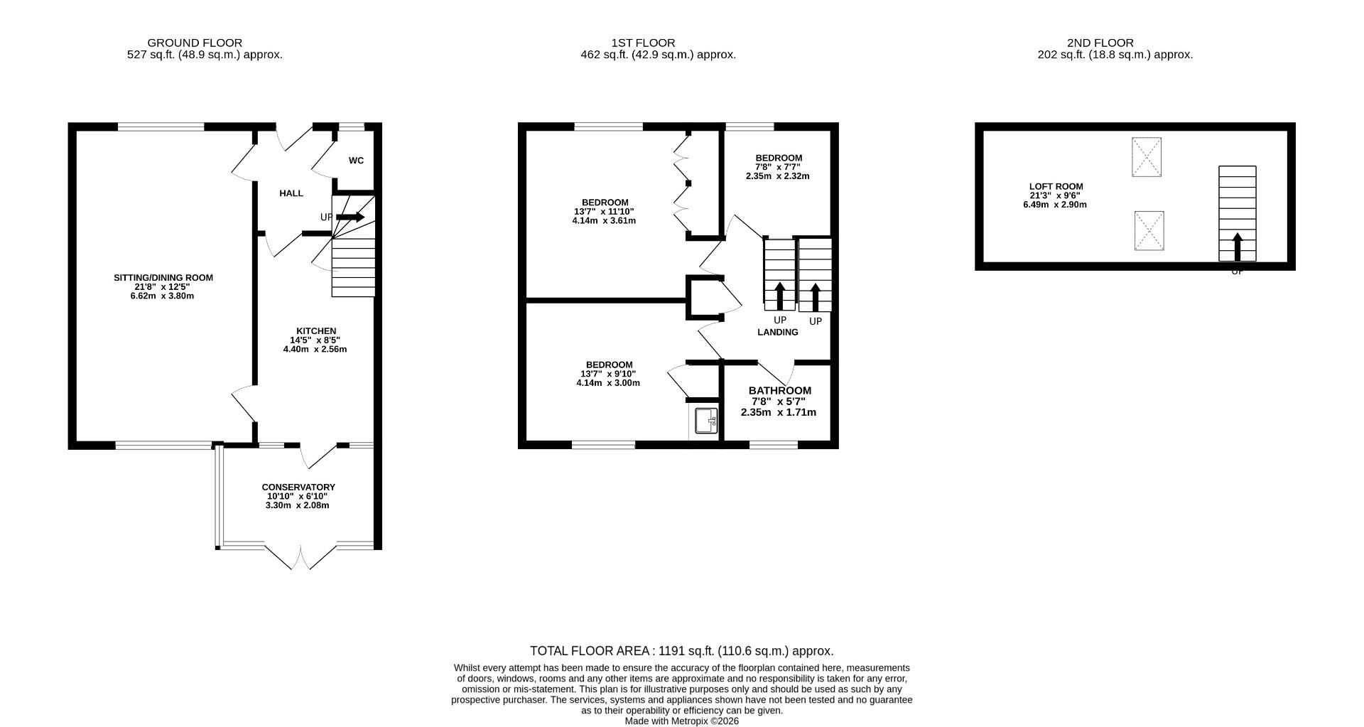
Total Size: 1191 SQ FT
or call 01580 763278
Standout Features

Property Description
GUIDE PRICE £375,000 - £400,000. NO ONWARD CHAIN. Enviably positioned mid-terrace home offering three bedrooms and additional loft room, private garden and garage en-bloc with off road parking, situated in a popular residential area just a short walk to the picturesque High Street of Tenterden.

The accommodation offers an entrance hall with access to a useful cloakroom with WC, stairs to first floor with storage beneath and doorways leading to the kitchen and a bright and spacious double aspect sitting/dining room with windows overlooking the front and rear garden, feature fireplace and doorway leading through to the galley style kitchen. The kitchen is fitted with a range of wall and base units and offers space for appliances with further doorway leading through to the conservatory, with French doors out to the garden.

The first floor offers the master bedroom with window overlooking the front and generous built in storage, a second double bedroom with further built in storage and wash basin, a third single bedroom and the family bathroom with suite comprising of a bath with shower above, pedestal basin, WC and heated towel radiator.

Ladder stairs lead up to a generous loft room with Velux windows and eaves storage, offering scope for conversion subject to the necessary permissions.

Externally, the pretty rear garden is laid to lawn with well stocked beds displaying an array of mature shrubs and plants with patio area. To the front is a small lawn area with pathway leading to the en-bloc garages and a further unallocated residents parking area.

The property is situated just a short walk from the picturesque tree-lined High Street of Tenterden. The town offers comprehensive shopping including Waitrose, Tesco supermarkets and many pubs and restaurants.

This wonderful home occupies a popular location and is within easy access of two popular golf courses, Tenterden Golf Course and London Beach Golf Club with saltwater spa. Mainline train services to London can be accessed from Headcorn (about 8 miles) or Ashford International (about 12 miles) where the high-speed service to London St Pancras departs with a journey of approx. 37 minutes. The property is also a short drive to the coast and Eurotunnel terminal.

Tenure - Freehold
Services – Mains electricity, water, drainage and gas central heating.
Broadband – Average Broadband Speed 13mb – 1000mb
Mobile Phone Coverage – Okay – Good
Flood Risk – Very Low
EPC Rating - TBC


Additional Information
Tenure: Freehold
Council Tax Band: E

Utilities
Broadband:
other
Electricity:
Mains Supply
Sewerage:
Mains Supply
Water:
Heating:
Gas Central

Mortgage calculator

Calculate Your Stamp Duty
£
Results
Stamp Duty To Pay:
Effective Rate:
Tax Band % Taxable Sum Tax

TENTERDEN

Want to explore TENTERDEN further? Explore our local area guide

Struggling to find a property? Get in touch and we'll help you find your ideal property.