3 bedroom House For Sale

Offers over £450,000 | Available

3 bedroom House For Sale
or call 01303 261557
Standout Features

Property Description
Welcome to this charming detached house located on Victoria Road in the picturesque town of Hythe. Built in 1925, this delightful property combines period features with modern living, making it an ideal family home or a perfect retreat by the coast.

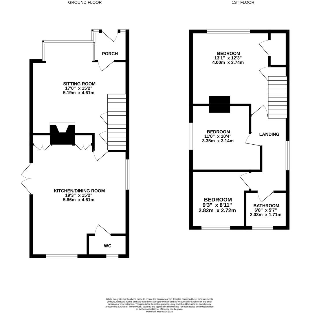
The house features a generous sitting room with a bay window and a log-burning stove, along with an impressive open-plan kitchen/dining area that offers plenty of space for both relaxation and entertaining. These adaptable rooms can be arranged to suit your lifestyle, whether you prefer a cosy family lounge or a more formal dining space. Upstairs, three well-proportioned bedrooms provide comfortable accommodation, ensuring everyone has their own private retreat. The property also includes a convenient downstairs cloakroom and a contemporary first-floor bathroom.

The property features an easy-to-maintain, partly walled garden that provides a pleasant outdoor space for relaxing or entertaining. Well-proportioned and neatly arranged, it offers a sense of privacy and charm, while the convenient side access adds practicality for everyday use, whether bringing through bikes, gardening tools, or simply enjoying seamless entry to the outdoor area.

One of the standout features of this home is its enviable location. Just a short stroll away, you will find the beautiful beach, perfect for leisurely walks or enjoying the seaside atmosphere. The surrounding area is rich in amenities, including shops, cafes, and schools, making it a convenient choice for families and individuals alike.

This delightful home on Victoria Road presents a wonderful opportunity to embrace coastal living in a charming and welcoming environment. With its character, space, and proximity to the beach, it is sure to appeal to those seeking a tranquil yet vibrant lifestyle. Do not miss the chance to make this lovely property your own.

The charming Cinque Ports Town of Hythe, features an attractive seafront, 3 supermarkets (including Waitrose, Sainsbury's and Aldi) and busy High Street with a choice of interesting, independent shops and restaurants. There are a variety of sports and leisure facilities, including 2 golf courses and the Hotel Imperial Leisure Centre. Also, the historic and picturesque Royal Military Canal, with its pleasant walks and cycle path, and the seafront with its long pebbly beach are nearby. Visit the famous Romney Hythe and Dymchurch Steam Railway. The high-speed service to London St Pancras, taking approximately 50 minutes, can be accessed from the nearby Folkestone Central and Folkestone West stations.


Additional Information
Tenure: Freehold
Council Tax Band: C

Utilities
Broadband:
Cable
Electricity:
Mains Supply
Sewerage:
Mains Supply
Water:
Heating:
Gas Central

Mortgage calculator

Calculate Your Stamp Duty
£
Results
Stamp Duty To Pay:
Effective Rate:
Tax Band % Taxable Sum Tax

Victoria Road, Hythe

Want to explore Victoria Road, Hythe further? Explore our local area guide

Struggling to find a property? Get in touch and we'll help you find your ideal property.