3 bedroom House For Sale

£215,000 | Available

3 bedroom House For Sale
or call 01274 594040
Standout Features

Property Description
Book Your Viewing Today - A well appointed three bedroom semi detached home situated in a most popular and convenient residential location, ideally positioned for local schools, recreational facilities, transport connections and local amenities.

A well appointed three bedroom semi detached home situated in a most popular and convenient residential location, ideally positioned for local schools, recreational facilities, transport connections and local amenities.

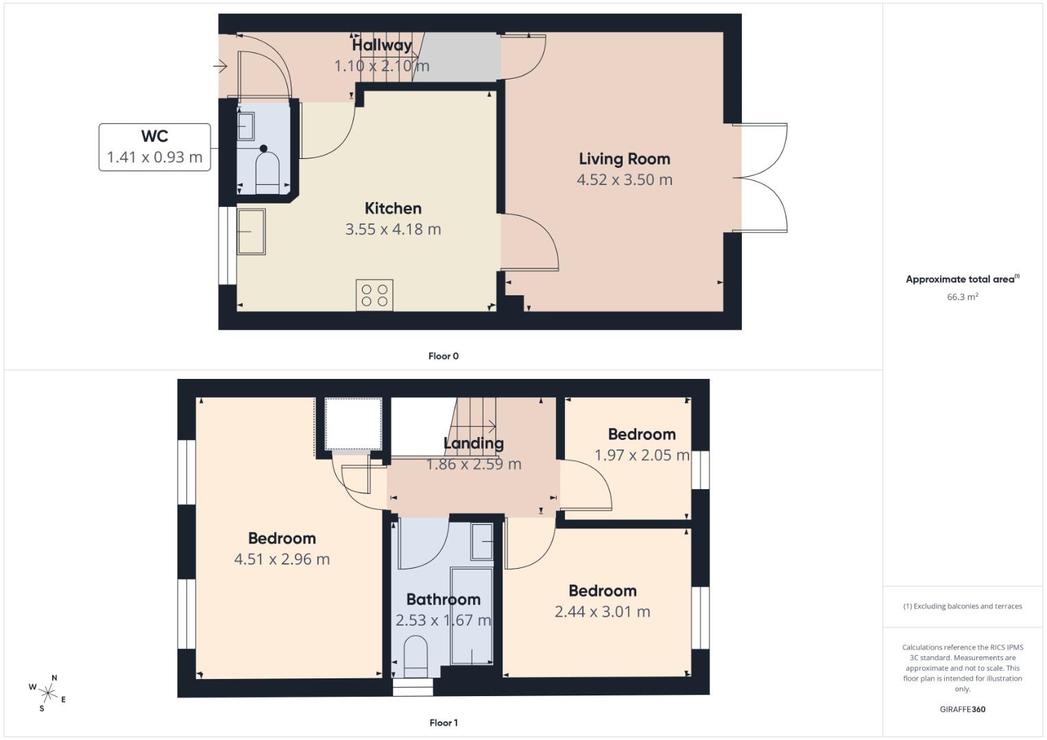
The most attractive home comprises, entrance hall with wc, dining kitchen, and a good size lounge with useful under stairs storage cupboard and French double door access to the well kept gardens to the rear. To the first floor are three bedrooms and a modern bathroom. Externally to the side is gated off street parking, and the home further benefits from double glazing and gas central heating.

This modern home offers a comfortable and practical living space in a highly accessible location, making it an excellent opportunity for first-time buyers, young families, or those looking to downsize. With its proximity to schools, transportation, and amenities, this property is sure to generate significant interest.

Buyer Compliance Checks
Please note that all successful buyers will be required to complete identity verification and Anti-Money Laundering (AML) checks. Estate agents are legally required to undertake these checks in accordance with the Money Laundering, Terrorist Financing and Transfer of Funds (Information on the Payer) Regulations 2017, as amended by subsequent legislation including the Money Laundering and Terrorist Financing (Amendment) Regulations 2019, and guidance issued by HM Revenue & Customs.

To fulfil these legal obligations, we use our compliance partner Coadjute to undertake identity verification and AML checks on our behalf. A fee of £48 (including VAT) per buyer is payable for this service.

Where a gifted or loaned deposit is being used towards the purchase, the Money Laundering Regulations require verification of the identity and source of funds of all individuals providing financial contributions. Therefore, each contributing party will also be required to complete AML checks. A fee of £29 (including VAT) per contributing party will apply.

Once payment has been made to Coadjute and all required checks have been successfully completed, we will be able to confirm the property as Sold Subject to Contract (SSTC).

The fee covers the cost of obtaining relevant electronic identification data, verification of identity and source of funds, any required manual verification, and ongoing monitoring where applicable. Hunters may receive a portion of the fee charged by Coadjute in recognition of its role in facilitating these compliance checks.

All information will be processed in accordance with the UK General Data Protection Regulation and the Data Protection Act 2018.


Additional Information
Tenure: Freehold
Council Tax Band: B

Utilities
Broadband:
Fibre to Premises
Electricity:
Mains Supply
Sewerage:
Mains Supply
Water:
Heating:
Gas Central

Mortgage calculator

Calculate Your Stamp Duty
£
Results
Stamp Duty To Pay:
Effective Rate:
Tax Band % Taxable Sum Tax

West Royd Avenue, Shipley

Want to explore West Royd Avenue, Shipley further? Explore our local area guide

Struggling to find a property? Get in touch and we'll help you find your ideal property.