Standout Features
- GUIDE PRICE £375,000 - £400,000
- 3/4 BEDROOMS
- DOWNSTAIRS WC
- CHAIN FREE
- CONSERVATORY
- PRIVATE GARDEN
- READY TO VIEW
- TAX BAND C
- 91 SQM
- EPC C
Property Description
GUIDE PRICE £375,000 - £400,000
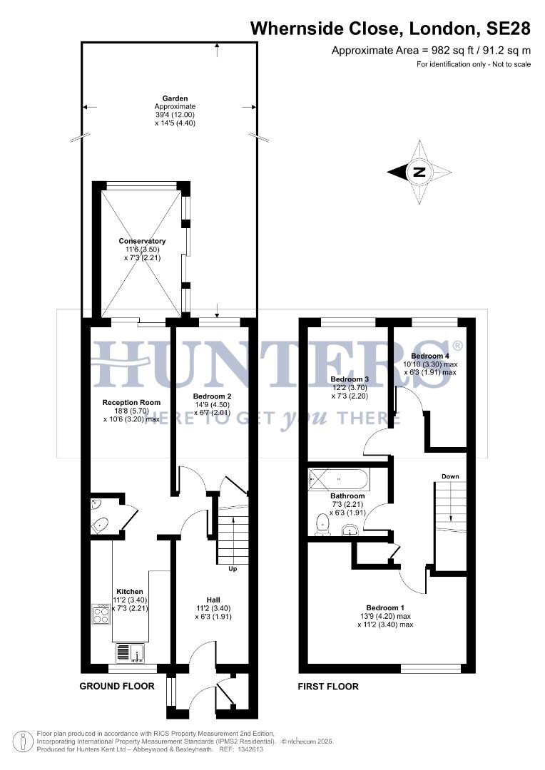
This three-bedroom property on Whernside Close, Thamesmead, offers generous accommodation and represents an excellent opportunity for buyers looking to create a home to their own taste. Set across two floors, the house provides a practical and flexible layout that will suit families, first-time buyers, or investors alike.
On the ground floor there is a bright and well-proportioned reception room which flows into a conservatory, providing additional living space and direct access to the rear garden. The kitchen is positioned to the front of the property and there is also a further ground floor bedroom which could be used as a guest room, home office, or playroom. Upstairs, the property offers three bedrooms of varying sizes alongside a family bathroom, creating versatile accommodation for growing households. Outside, the property enjoys a private rear garden with plenty of potential to be landscaped into an inviting outdoor retreat. Providing additional storage space, the property also benefits from a garage en-bloc.
Whernside Close is well placed for local amenities, with everyday shops, supermarkets, and cafés close by, as well as larger retail facilities at Thamesmead Shopping Centre. Families will appreciate the range of nearby schools and open green spaces, including parks and riverside walks, providing plenty of leisure opportunities. For commuters, transport links are excellent: regular bus routes serve the local area and Abbey Wood Station, now on the Elizabeth Line, offers fast and direct services into Central London, Canary Wharf, and beyond, making travel into the city quick and convenient.
This three-bedroom property on Whernside Close, Thamesmead, offers generous accommodation and represents an excellent opportunity for buyers looking to create a home to their own taste. Set across two floors, the house provides a practical and flexible layout that will suit families, first-time buyers, or investors alike.
On the ground floor there is a bright and well-proportioned reception room which flows into a conservatory, providing additional living space and direct access to the rear garden. The kitchen is positioned to the front of the property and there is also a further ground floor bedroom which could be used as a guest room, home office, or playroom. Upstairs, the property offers three bedrooms of varying sizes alongside a family bathroom, creating versatile accommodation for growing households. Outside, the property enjoys a private rear garden with plenty of potential to be landscaped into an inviting outdoor retreat. Providing additional storage space, the property also benefits from a garage en-bloc.
Whernside Close is well placed for local amenities, with everyday shops, supermarkets, and cafés close by, as well as larger retail facilities at Thamesmead Shopping Centre. Families will appreciate the range of nearby schools and open green spaces, including parks and riverside walks, providing plenty of leisure opportunities. For commuters, transport links are excellent: regular bus routes serve the local area and Abbey Wood Station, now on the Elizabeth Line, offers fast and direct services into Central London, Canary Wharf, and beyond, making travel into the city quick and convenient.
Additional Information
| Tenure: | Freehold |
|---|---|
| Council Tax Band: | C |
Rooms
HALL
3.4 x 1.9 (11'1" x 6'2")
KITCHEN
3.4 x 2.21 (11'1" x 7'3")
RECEPTION ROOM
5.7 x 3.2 (18'8" x 10'5")
BEDROOM ONE
4.2 x 3.4 (13'9" x 11'1")
BEDROOMT TWO
4.5 x 2.0 (14'9" x 6'6")
BEDROOM THREE
3.7 x 2.2 (12'1" x 7'2")
BEDROOM FOUR
3.3 x 1.9 (10'9" x 6'2")
BATHROOM
2.2 x 1.9 (7'2" x 6'2")
WC
CONSERVATORY
3.5 x 2.2 (11'5" x 7'2" )
Utilities
Electricity:
Mains Supply
Sewerage:
Mains Supply
Heating:
Gas Central
Mortgage calculator
Calculate Your Stamp Duty
Results
Stamp Duty To Pay:
Effective Rate:
| Tax Band | % | Taxable Sum | Tax |
|---|
Whernside Close, London
Want to explore Whernside Close, London further? Explore our local area guide
Struggling to find a property? Get in touch and we'll help you find your ideal property.