Standout Features

Property Description
Nestled in the desirable area of Baileys Mead Road, Stapleton, Bristol, this highly attractive four double bedroom detached house presents an exceptional opportunity for families seeking a spacious and modern home. Originally an ex-show home, this property is part of an exclusive development, offering both charm and convenience with excellent access to the M32.

Upon entering, you will find two generous reception rooms, perfect for entertaining guests or enjoying family time. The contemporary design is complemented by a stylish downstairs cloakroom and a well-appointed upstairs bathroom, ensuring comfort and practicality for everyday living.

The property boasts four spacious double bedrooms, providing ample space for family members or guests. The large extensive rear gardens are a standout feature, offering a serene outdoor space for relaxation, play, or gardening enthusiasts. Additionally, the detached double garage has been partly converted, providing a versatile area that can serve as an office or multi-use space, catering to your personal needs.

Situated on the Stapleton/Frenchay border, this home is within walking distance of the prestigious collegiate school, formerly known as Colstons, making it an ideal choice for families prioritising education. With parking available for two vehicles, convenience is assured.

This delightful property is not just a house; it is a family home that combines modern living with a peaceful setting. Do not miss the chance to make this exceptional residence your own.

Entrance

Via etched paneled door to ...

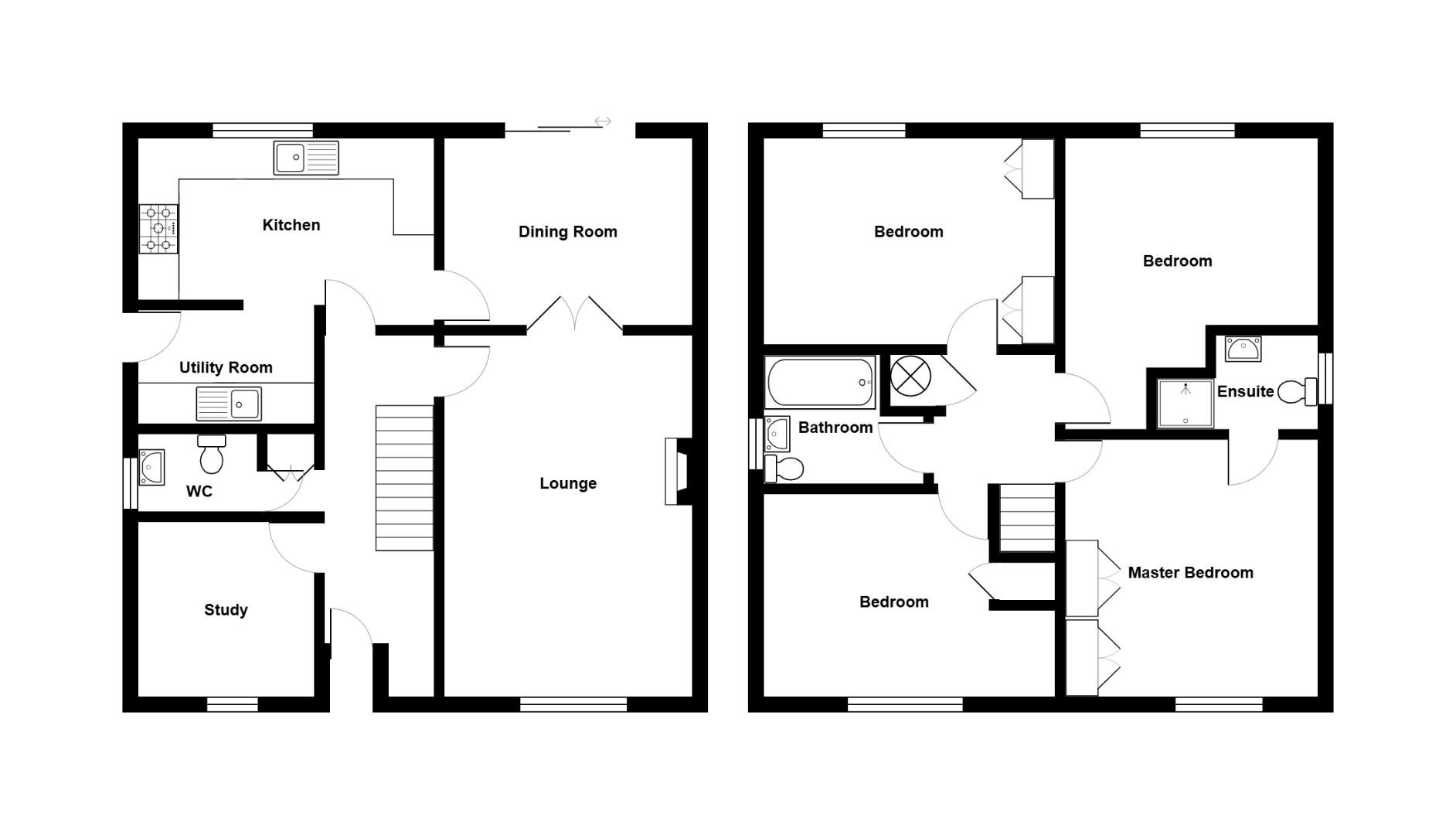
Hallway

Stairs to first floor, fitted radiator, built in storage cupboard.

Lounge (4.46m x 3.64m)

Double glazed cross beaded window to front with pleasant outlook and views, fitted radiator, coal effect fitted gas fire, double doors opening onto dining room.

Dining Room (3.63m x 2.79m)

Double glazed sliding doors to rear with pleasant outlook and views opening onto rear garden, fitted radiator.

Study (2.96m x 2.45m)

Double glazed cross beaded window to front with pleasant outlook and views, fitted radiator.

Cloakroom

Opaque window to side, contemporary fitted with low level w.c. sink into gloss storage unit, wall mounted heated towel rail, partly tiled throughout, grey wood grain effect fitted laminate flooring.

Kitchen (4.39m x 2.79m)

Double glazed window to rear with pleasant outlook and views onto garden, fitted radiator, wood grain effect fitted laminate flooring, a good range of base and wall fitted units with decorative splash back with rolled top working surfaces incorporating a one and quarter bowl sink, fitted gas hob with extractor over, separate oven and grill, space for fridge/freezer.

Utility Room (2.47m x 1.63m)

Door to side, some wall fitted units, working surfaces with decorative splash back incorporating a single bowl sink, plumbing for automatic washing machine, plumbing for dishwasher, space for tumble dryer, fitted radiator.

First Floor Landing

Access to loft space, built in cupboard housing hot water cylinder.

Bedroom 1 (3.73m x 3.70m)

Cross beaded double glazed window to front with pleasant outlook and views, 2 x double fitted wardrobes, fitted radiator.

En Suite Shower Room

Opaque window to side, cubicle having overhead Mira shower, low level w.c. pedestal wash hand basin, partly tiled throughout.

Bedroom 2 (4.36m x 4.03m)

Cross beaded double glazed window to front with pleasant outlook and views, single fitted wardrobe.

Bedroom 3 (3.72m x 3.61m)

Double glazed window to rear with pleasant outlook and views onto rear garden, 2 x fitted wardrobes, dressing table. fitted radiator.

Bedroom 4 (4.31m x 2.61m)

Double glazed window to rear with pleasant outlook and views, fitted radiator.

Bathroom

Luxury appointed with opaque window to side, comprising of paneled bath having a shower mixer tap, low level w.c. sink into gloss storage unit, partly tiled throughout, tiled floor, chrome effect fitted towel rail.

Exterior

To the front offers off street parking with an extra carport offering additional off street parking. The front garden comprises of mixed laid to chippings, and modest section laid to lawn with side access via a gate leading to the rear. The impressive large rear garden has timber decked areas allowing for patio table and chairs with seating surround, the remainder of the garden is mainly laid to lawn with lap wood fenced borders and various attractive and mature planting along with trees. There is also a timber built shed. Side access via a gate leading to front.


Additional Information
Tenure: Freehold
Council Tax Band: E

Rooms
Entrance
Via etched paneled door to ...
Hallway
Stairs to first floor, fitted radiator, built in storage cupboard.
Lounge
Double glazed cross beaded window to front with pleasant outlook and views, fitted radiator, coal effect fitted gas fire, double doors opening onto dining room.
4.46m x 3.64m (14'7" x 11'11")
Dining Room
Double glazed sliding doors to rear with pleasant outlook and views opening onto rear garden, fitted radiator.
3.63m x 2.79m (11'10" x 9'1")
Study
Double glazed cross beaded window to front with pleasant outlook and views, fitted radiator.
2.96m x 2.45m (9'8" x 8'0")
Cloakroom
Opaque window to side, contemporary fitted with low level w.c. sink into gloss storage unit, wall mounted heated towel rail, partly tiled throughout, grey wood grain effect fitted laminate flooring.
Kitchen
Double glazed window to rear with pleasant outlook and views onto garden, fitted radiator, wood grain effect fitted laminate flooring, a good range of base and wall fitted units with decorative splash back with rolled top working surfaces incorporating a one and quarter bowl sink, fitted gas hob with extractor over, separate oven and grill, space for fridge/freezer.
4.39m x 2.79m (14'4" x 9'1")
Utility Room
Door to side, some wall fitted units, working surfaces with decorative splash back incorporating a single bowl sink, plumbing for automatic washing machine, plumbing for dishwasher, space for tumble dryer, fitted radiator.
2.47m x 1.63m (8'1" x 5'4")
First Floor Landing
Access to loft space, built in cupboard housing hot water cylinder.
Bedroom 1
Cross beaded double glazed window to front with pleasant outlook and views, 2 x double fitted wardrobes, fitted radiator.
3.73m x 3.70m (12'2" x 12'1")
En Suite Shower Room
Opaque window to side, cubicle having overhead Mira shower, low level w.c. pedestal wash hand basin, partly tiled throughout.
Bedroom 2
Cross beaded double glazed window to front with pleasant outlook and views, single fitted wardrobe.
4.36m x 4.03m (14'3" x 13'2")
Bedroom 3
Double glazed window to rear with pleasant outlook and views onto rear garden, 2 x fitted wardrobes, dressing table. fitted radiator.
3.72m x 3.61m (12'2" x 11'10")
Bedroom 4
Double glazed window to rear with pleasant outlook and views, fitted radiator.
4.31m x 2.61m (14'1" x 8'6")
Bathroom
Luxury appointed with opaque window to side, comprising of paneled bath having a shower mixer tap, low level w.c. sink into gloss storage unit, partly tiled throughout, tiled floor, chrome effect fitted towel rail.
Exterior
To the front offers off street parking with an extra carport offering additional off street parking. The front garden comprises of mixed laid to chippings, and modest section laid to lawn with side access via a gate leading to the rear. The impressive large rear garden has timber decked areas allowing for patio table and chairs with seating surround, the remainder of the garden is mainly laid to lawn with lap wood fenced borders and various attractive and mature planting along with trees. There is also a timber built shed. Side access via a gate leading to front.

Mortgage calculator

Calculate Your Stamp Duty
£
Results
Stamp Duty To Pay:
Effective Rate:
Tax Band % Taxable Sum Tax

Baileys Mead Road, Stapleton, Bristol

Want to explore Baileys Mead Road, Stapleton, Bristol further? Explore our local area guide

Struggling to find a property? Get in touch and we'll help you find your ideal property.