Standout Features

Property Description
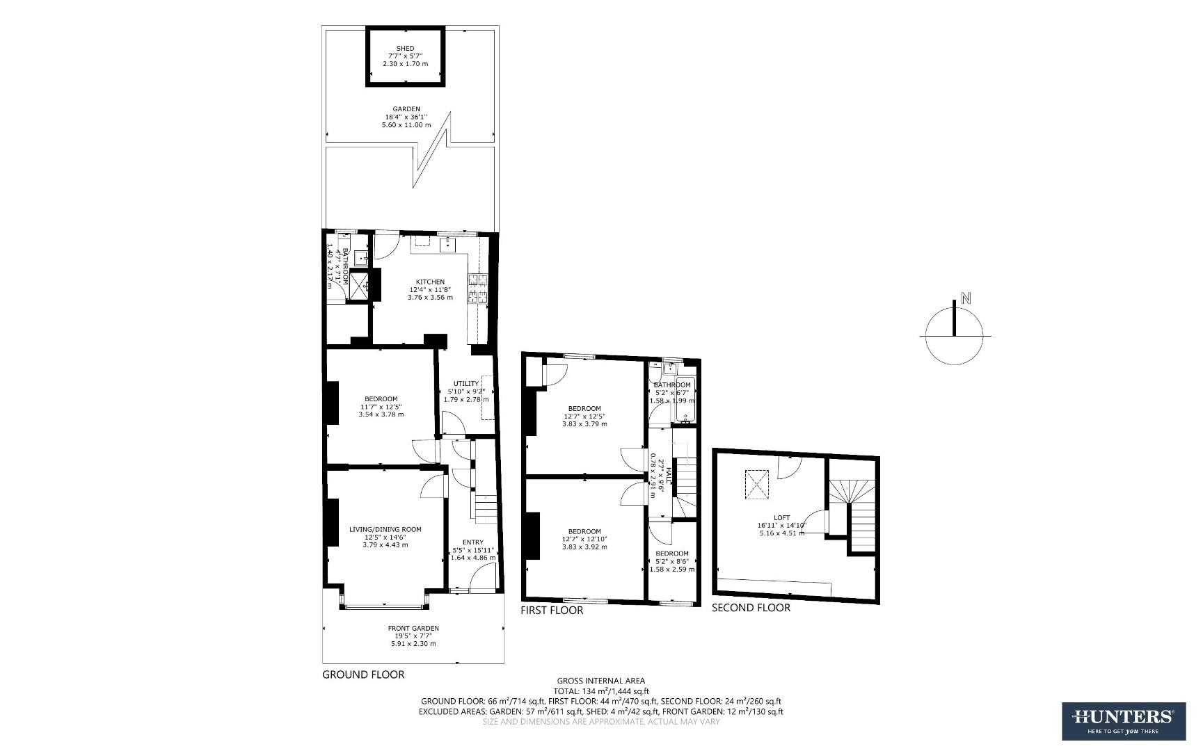
Welcome to this delightful four-bedroom mid-terrace home on Bennett Road, nestled in the vibrant heart of Chadwell Heath. Offering two spacious reception rooms, this property is ideal for hosting guests or enjoying relaxed family time. With two bathrooms, you'll never have to worry about those morning rush hour queues again!

The home is well-maintained and has been extended to the rear, providing extra living space for you to make the most of. Its prime location, just moments from the high road and station, ensures easy access to local amenities and excellent transport links.

Picture yourself enjoying cosy evenings in the inviting reception rooms, or retreating to one of the four generous bedrooms for a peaceful night's rest. Whether you're seeking the perfect family home or a smart investment, this property is packed with potential to meet your needs.

Don't miss out on this charming home in Chadwell Heath. Book your viewing today and start imagining the life you could build in this wonderful property.

LIVING ROOM (8.46 x 3.35)

KITCHEN (3.61 x 3.53)

Wall and base unit with roll top work surface, sing drainer sink, space for gas cooker, door leading out to garden, further double glazed window to rear aspect.

UTILITY ROOM

Utility room, with plumbing for washing machine, ground floor shower cubical and low level WC, tiled walls and flooring.

LANDING

Carpeted steps to first floor, landing with loft access door leading off to first floor accommodation.

BEDROOM 1 (3.73 x 3.96)

Double glazed window to front aspect, wall mounted radiator, carpeted flooring and power points.

BEDROOM 2 (3.73 x 3.76)

Double glazed window to rear aspect, carpeted flooring, wall mounted radiator and power points.

BEDROOM 3 (2.44 x 1.65)

Double glazed window to front aspect, carpeted flooring, wall mounted radiator and power points.

BATHROOM

Comprising of panelled bath with mixer taps, low level wc, tiled walls, double glazed windows.

GARDEN (APPROX 13.72)

Part patio garden, lawn area and fence suuround.

LOFT ROOM (4.42 x 3.48)

Stairs from first leading to converted loft room, V-Lux window, heating and power points

Disclaimer:
All information provided in relation to this property does not constitute or form part of an offer or contract, nor may it be regarded as representations, they are to be used for marketing purposes only. All interested parties are responsible to verify accuracy and your solicitor must verify tenure/lease information, ground rent/service charges, fixtures and fittings and, where the property has been extended/converted, planning/building regulation consents. All dimensions are approximate and quoted for guidance only as are floor plans which are not to scale and their accuracy cannot be confirmed. Reference to appliances and/or services does not imply they are tested and that they are necessarily in working order or fit for the purpose. Any costs occurred would be at the expense of the potential purchaser.


Additional Information
Tenure: Freehold

Rooms
LIVING ROOM

8.46m x 3.35m
KITCHEN
Wall and base unit with roll top work surface, sing drainer sink, space for gas cooker, door leading out to garden, further double glazed window to rear aspect.
3.61m x 3.53m
UTILITY ROOM
Utility room, with plumbing for washing machine, ground floor shower cubical and low level WC, tiled walls and flooring.
LANDING
Carpeted steps to first floor, landing with loft access door leading off to first floor accommodation.
BEDROOM 1
Double glazed window to front aspect, wall mounted radiator, carpeted flooring and power points.
3.73m x 3.96m
BEDROOM 2
Double glazed window to rear aspect, carpeted flooring, wall mounted radiator and power points.
3.73m x 3.76m
BEDROOM 3
Double glazed window to front aspect, carpeted flooring, wall mounted radiator and power points.
2.44m x 1.65m
BATHROOM
Comprising of panelled bath with mixer taps, low level wc, tiled walls, double glazed windows.
GARDEN
Part patio garden, lawn area and fence suuround.
APPROX 45"
LOFT ROOM
Stairs from first leading to converted loft room, V-Lux window, heating and power points
4.42m x 3.48m

Mortgage calculator

Calculate Your Stamp Duty
£
Results
Stamp Duty To Pay:
Effective Rate:
Tax Band % Taxable Sum Tax

Bennett Road, Chadwell Heath, RM6

Want to explore Bennett Road, Chadwell Heath, RM6 further? Explore our local area guide

Struggling to find a property? Get in touch and we'll help you find your ideal property.