Standout Features

Property Description
Positioned in a desirable tucked-away location within the highly sought-after village of Flamborough, this substantial detached home offers spacious and beautifully presented accommodation finished to a high standard throughout.

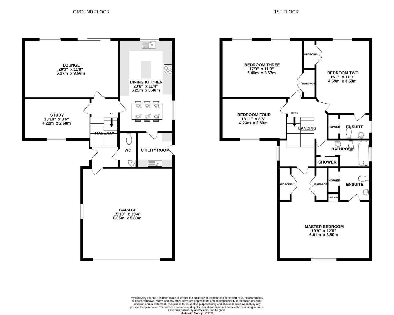
Upon entering the property, you are welcomed into a bright and inviting entrance hall which leads through to the main lounge positioned at the rear of the home. This generous living space provides a warm and relaxing environment, centered around a charming log burner. Large sliding doors allow an abundance of natural light to fill the room while also providing lovely views over the rear garden.

Then into the impressive contemporary kitchen, thoughtfully designed with a range of modern units offering ample storage and complemented by quality work surfaces. A selection of integrated appliances enhances the practicality of the space, while a central island provides additional preparation space. There is also ample room for a family dining table and a separate utility room provides space for essential appliances.

Also on the ground floor is a versatile second reception room, currently used as a home office but equally suitable as a playroom, separate dining room or additional sitting room. A convenient downstairs W/C completes this level.

Upstairs there are four generously sized bedrooms, all with space for bedroom furniture, three of which benefit from built-in storage. The principal bedroom features fitted wardrobes and a modern en suite shower room, while a further bedroom also benefits from its own en suite. Two additional well-proportioned bedrooms are served by a family bathroom with a four-piece suite.

Externally, the property enjoys a beautifully maintained rear garden which provides a wonderful outdoor space for relaxation and entertaining. The garden has a lawn area with established flower and tree borders, along with decked seating areas and a pergola creating pleasant spots to enjoy the outdoors throughout the warmer months.

Location

The property would make a wonderful family home, particularly suited to those seeking a peaceful yet convenient location. The village of Flamborough offers a range of local amenities including shops, cafés, traditional pubs and transport links, as well as easy access to the stunning coastal walks and scenery around Flamborough Head. The nearby seaside town of Bridlington provides a wider range of facilities including supermarkets, a town centre, leisure amenities and rail connections, making this an ideal location for both everyday living and enjoying the beautiful East Yorkshire coastline.

HMRC Disclaimer - Bridlington

Should you wish to proceed with an offer on this property we are obliged by HMRC to conduct mandatory Anti Money Laundering Checks. We outsource these checks to our compliance partners at Kotini and they charge a fee for this service.


Additional Information
Tenure: Freehold
Council Tax Band: E

Rooms
Location
The property would make a wonderful family home, particularly suited to those seeking a peaceful yet convenient location. The village of Flamborough offers a range of local amenities including shops, cafés, traditional pubs and transport links, as well as easy access to the stunning coastal walks and scenery around Flamborough Head. The nearby seaside town of Bridlington provides a wider range of facilities including supermarkets, a town centre, leisure amenities and rail connections, making this an ideal location for both everyday living and enjoying the beautiful East Yorkshire coastline.
HMRC Disclaimer - Bridlington
Should you wish to proceed with an offer on this property we are obliged by HMRC to conduct mandatory Anti Money Laundering Checks. We outsource these checks to our compliance partners at Kotini and they charge a fee for this service.

Utilities
Broadband:
Fibre to Premises
Electricity:
Mains Supply
Sewerage:
Mains Supply
Water:
Heating:
Gas Central

Mortgage calculator

Calculate Your Stamp Duty
£
Results
Stamp Duty To Pay:
Effective Rate:
Tax Band % Taxable Sum Tax

Bridlington Road, Flamborough, Bridlington

Want to explore Bridlington Road, Flamborough, Bridlington further? Explore our local area guide

Struggling to find a property? Get in touch and we'll help you find your ideal property.