Standout Features

Property Description
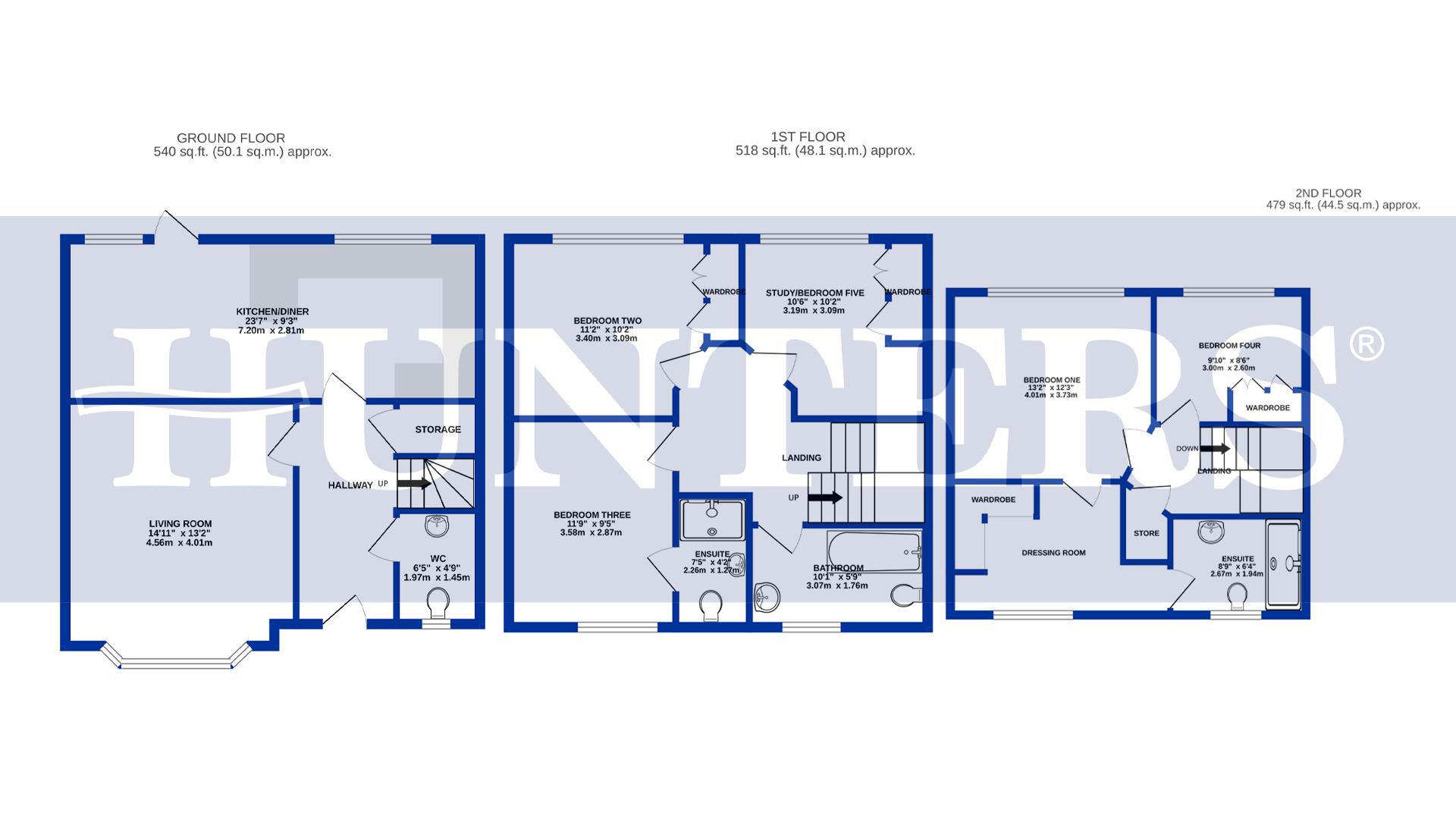
This beautifully presented 4+ bedroom home in Pudsey offers spacious and highly adaptable accommodation, ideal for modern family living. With stylish interiors, quality finishes throughout and the added benefit of an additional study that can serve as a fifth bedroom, the property combines comfort with flexibility. Its position overlooking green space, along with excellent access to local amenities and transport links, makes it a practical and appealing choice for a wide range of buyers.

Presenting this spacious 4+ bedroom home with an additional study, set on a modern development in Pudsey and ideally suited to families seeking space, comfort and convenient access to local amenities.

Positioned opposite a green space, the property enjoys pleasant park views from the front and is presented in immaculate, move-in-ready condition. Arranged over three floors, it offers flexible and well-balanced accommodation throughout, ideal for a variety of living arrangements.

A separate front living room features a bay window overlooking the park, allowing for plenty of natural light, complemented by neutral décor and a decorative electric fire that creates a welcoming setting. The living room, along with all bedrooms, is finished with a super-soft charcoal carpet, reflecting a no-expense-spared approach to comfort and quality.

To the rear, the open-plan kitchen-diner serves as the focal point of the home. Contemporary navy shaker-style units are paired with contrasting white worktops and a herringbone-style floor. Integrated appliances include a fridge-freezer and oven, while a breakfast bar and designated dining area provide a practical space for everyday living and entertaining. A boiler installed in 2023, and still under warranty, offers added peace of mind and efficiency. Doors open onto a low-maintenance rear garden with raised decking, suitable for outdoor dining and family use. A garage offers additional storage or parking.

The top floor is dedicated to the principal suite, comprising a spacious bedroom which currently accommodates a super king bed, a separate dressing area, and a generous ensuite shower room, thoughtfully arranged for ease of use. An additional double bedroom on this level benefits from a rear outlook, fitted wardrobes and a neutral finish, further highlighting the home’s adaptable layout.

On the first floor, there are two further double bedrooms. One overlooks the rear garden and includes fitted wardrobes, while the other is positioned at the front with park views and its own ensuite shower room, making it ideal for guests or older children. The family bathroom is fitted with a modern suite, including a bath with over-bath shower, vanity sink, heated towel rail and frosted window.

In addition to the four principal bedrooms, there is a separate study room, offering a highly versatile space ideal for those working from home, with flexibility to adapt to a range of uses if required. With hardwood flooring and a fitted wardrobe, this room further enhances the overall practicality of the home.

With an EPC rating of C and consistent, high-quality finishes throughout, the property offers an efficient and comfortable living environment.

Pudsey town centre is within easy reach, offering a range of shops, cafés and everyday amenities, as well as access to local schools. New Pudsey railway station provides regular services to Leeds and Bradford, with nearby bus routes also serving the area. Nearby parks and green spaces provide excellent opportunities for outdoor recreation for families.

KITCHEN/DINER (7.20m x 2.81m)

LIVING ROOM (4.56m x 4.01m)

WC (1.97m x 1.45m)

BEDROOM (3.40m x 3.09m)

BEDROOM (3.58m x 2.87m)

EN-SUITE (2.26m x 1.27m)

STUDY / BEDROOM FIVE (3.19 x 3.09m)

BEDROOM (3.00m x 2.60m)

BATHROOM (3.07m x 1.76m)

BEDROOM (4.01m x 3.73m)

DRESSING ROOM

EN-SUITE (2.67m x 1.94m)


Additional Information
Tenure: Freehold
Council Tax Band: D

Rooms
KITCHEN/DINER

7.20m x 2.81m (23'7" x 9'2")
LIVING ROOM

4.56m x 4.01m (14'11" x 13'1")
WC

1.97m x 1.45m (6'5" x 4'9")
BEDROOM

3.40m x 3.09m (11'1" x 10'1")
BEDROOM

3.58m x 2.87m (11'8" x 9'4")
EN-SUITE

2.26m x 1.27m (7'4" x 4'1")
STUDY / BEDROOM FIVE

3.19 x 3.09m (10'5" x 10'1")
BEDROOM

3.00m x 2.60m (9'10" x 8'6")
BATHROOM

3.07m x 1.76m (10'0" x 5'9")
BEDROOM

4.01m x 3.73m (13'1" x 12'2")
DRESSING ROOM

EN-SUITE

2.67m x 1.94m (8'9" x 6'4")

Mortgage calculator

Calculate Your Stamp Duty
£
Results
Stamp Duty To Pay:
Effective Rate:
Tax Band % Taxable Sum Tax

Broadlands Avenue, Pudsey

Want to explore Broadlands Avenue, Pudsey further? Explore our local area guide

Struggling to find a property? Get in touch and we'll help you find your ideal property.