4 bedroom House For Sale

£135,000 | Available

4 bedroom House For Sale
Total Size: 1098 SQ FT
or call 0191 586 3836
Standout Features

Property Description
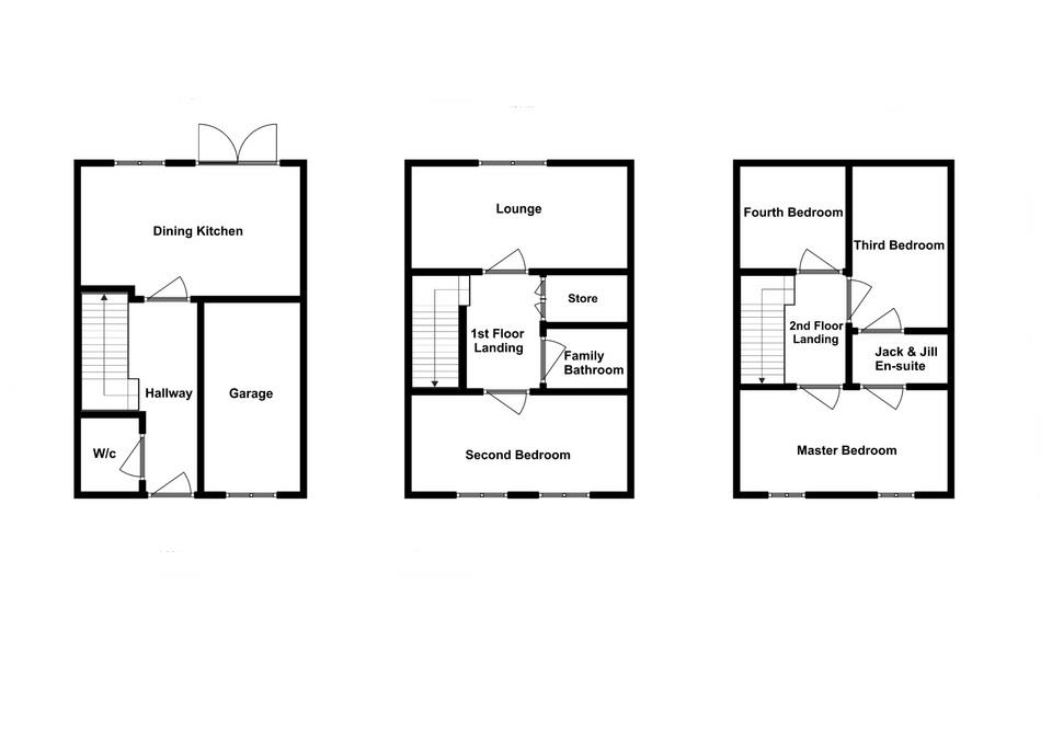
Set within a popular modern development on Chillerton Way, Wingate, this spacious four-bedroom townhouse offers stylish, flexible accommodation arranged over three floors—ideal for growing families and buyers needing home-working space. The ground floor boasts a generous dining kitchen with French doors opening to the rear garden, alongside a handy cloakroom/WC and access to the integral garage. To the first floor is a bright, well-proportioned lounge, a double bedroom and a contemporary family bathroom. The top floor hosts the master bedroom plus three further bedrooms served by a modern Jack & Jill en-suite, creating a superb family-friendly layout. Externally, the property enjoys an enclosed rear garden and driveway parking. Early viewing is highly recommended to appreciate the space and versatility on offer.

Entrance Hallway

The welcoming entrance features a stairwell to the first floor landing, a useful cloakroom W/c and a radiator.

Cloakroom W/C

The cloakroom includes a double glazed window, a low level W/c and a pedestal hand wash basin.

Dining Kitchen (4.53m x 3.06m)

Nestled towards the rear of this lovely home, the dining kitchen includes a wealth of both wall and floor cabinets finished in white colour tones and contrasting laminated work surfaces which integrate a stainless steel sink and drainer unit complete with mixer tap fitments set beneath a double glazed window offering wonderful views across the rear west facing gardens accompanied with a pair of double glazed patio doors opening into the appealing timber deck patio area preceding the gardens. Further attributes include an appealing tiled floor, a useful pantry cupboard, plumbing for an automatic washing machine and an electric oven and gas hob positioned below an elevated brushed steel extractor canopy.

First Floor Landing

Incorporating a newel posted spindle balustrade leading from the entrance hall up to the second floor and a convenient storage cupboard.

Lounge (4.54m x 3.41m)

Situated towards the rear of the residence the principle reception offers lovely elevated views across the west facing rear gardens through two double glazed windows complimented with attractive laminated flooring and a radiator.

Family Bathroom (2.45m x 2.07m)

Neatly positioned between the lounge and the second bedroom this charming family bathroom includes a white suite comprising of a panel bath, a low level W/c and a pedestal hand wash basin further enhanced with attractive tiling and a contemporary elevated chrome finished radiator.

Second Bedroom (4.54m x 2.79m)

Located at the front of the home this well appointed bedroom features two double glazed windows overlooking the cul-de-sac and a radiator.

Second Floor Landing

Featuring a newel posted spindle balustrade, convenient loft access and doors offering accessibility into three further bedrooms.

Master Bedroom (3.95m x 2.95m)

The master bedroom features two double glazed windows overlooking the cul-de-sac at the front of the residence, a radiator and access into the Jack and Jill en-suite facility.

Third Bedroom (3.19m x 2.01m)

The third bedroom is positioned at the rear of the home and shares the Jack and Jill en-suite with the master bedroom. Furthermore, the bedroom includes a radiator and double glazed windows offering pleasant elevated views across the rear gardens.

Fourth Bedroom (3.02m x 2.42m)

Positioned adjacent to the third bedroom at the rear of the property, the fourth well appointed bedroom features a radiator and a double glazed window offering scenic views.

Jack & Gill En-Suite (2.02m x 1.70m)

Shared by both the Master bedroom and the Third bedroom, this wonderful facility includes a glazed shower enclosure complete with an electric shower, a low level W/c and a pedestal hand wash basin.

Outdoor Space

This wonderful family home is placed in a popular cul-de-sac position within this modern style Persimmon built development providing a welcoming entrance accompanied with a drive and integral garage to the front and impressive west facing gardens to the rear which have been landscaped with a larger than average timber deck and two raised planters opening into the predominantly lawned gardens, ideal for al-fresco dining and outdoor enjoyment during the warm summer months.

Integral Garage

Providing a splendid secure parking facility or additional storage area, the garage features an up and over door opening onto the sizable driveway.


Additional Information
Tenure: Freehold
Council Tax Band: C

Rooms
Entrance Hallway
The welcoming entrance features a stairwell to the first floor landing, a useful cloakroom W/c and a radiator.
Cloakroom W/C
The cloakroom includes a double glazed window, a low level W/c and a pedestal hand wash basin.
Dining Kitchen
Nestled towards the rear of this lovely home, the dining kitchen includes a wealth of both wall and floor cabinets finished in white colour tones and contrasting laminated work surfaces which integrate a stainless steel sink and drainer unit complete with mixer tap fitments set beneath a double glazed window offering wonderful views across the rear west facing gardens accompanied with a pair of double glazed patio doors opening into the appealing timber deck patio area preceding the gardens. Further attributes include an appealing tiled floor, a useful pantry cupboard, plumbing for an automatic washing machine and an electric oven and gas hob positioned below an elevated brushed steel extractor canopy.
4.53m x 3.06m (14'10" x 10'0")
First Floor Landing
Incorporating a newel posted spindle balustrade leading from the entrance hall up to the second floor and a convenient storage cupboard.
Lounge
Situated towards the rear of the residence the principle reception offers lovely elevated views across the west facing rear gardens through two double glazed windows complimented with attractive laminated flooring and a radiator.
4.54m x 3.41m (14'10" x 11'2")
Family Bathroom
Neatly positioned between the lounge and the second bedroom this charming family bathroom includes a white suite comprising of a panel bath, a low level W/c and a pedestal hand wash basin further enhanced with attractive tiling and a contemporary elevated chrome finished radiator.
2.45m x 2.07m (8'0" x 6'9")
Second Bedroom
Located at the front of the home this well appointed bedroom features two double glazed windows overlooking the cul-de-sac and a radiator.
4.54m x 2.79m (14'10" x 9'1")
Second Floor Landing
Featuring a newel posted spindle balustrade, convenient loft access and doors offering accessibility into three further bedrooms.
Master Bedroom
The master bedroom features two double glazed windows overlooking the cul-de-sac at the front of the residence, a radiator and access into the Jack and Jill en-suite facility.
3.95m x 2.95m (12'11" x 9'8")
Third Bedroom
The third bedroom is positioned at the rear of the home and shares the Jack and Jill en-suite with the master bedroom. Furthermore, the bedroom includes a radiator and double glazed windows offering pleasant elevated views across the rear gardens.
3.19m x 2.01m (10'5" x 6'7")
Fourth Bedroom
Positioned adjacent to the third bedroom at the rear of the property, the fourth well appointed bedroom features a radiator and a double glazed window offering scenic views.
3.02m x 2.42m (9'10" x 7'11")
Jack & Gill En-Suite
Shared by both the Master bedroom and the Third bedroom, this wonderful facility includes a glazed shower enclosure complete with an electric shower, a low level W/c and a pedestal hand wash basin.
2.02m x 1.70m (6'7" x 5'6")
Outdoor Space
This wonderful family home is placed in a popular cul-de-sac position within this modern style Persimmon built development providing a welcoming entrance accompanied with a drive and integral garage to the front and impressive west facing gardens to the rear which have been landscaped with a larger than average timber deck and two raised planters opening into the predominantly lawned gardens, ideal for al-fresco dining and outdoor enjoyment during the warm summer months.
Integral Garage
Providing a splendid secure parking facility or additional storage area, the garage features an up and over door opening onto the sizable driveway.

Utilities
Broadband:
Cable
Electricity:
Mains Supply
Sewerage:
Mains Supply
Water:
Heating:
Gas Central

Mortgage calculator

Calculate Your Stamp Duty
£
Results
Stamp Duty To Pay:
Effective Rate:
Tax Band % Taxable Sum Tax

Chillerton Way, Wingate, County Durham, TS28 5DY

Want to explore Chillerton Way, Wingate, County Durham, TS28 5DY further? Explore our local area guide

Struggling to find a property? Get in touch and we'll help you find your ideal property.