Standout Features
- Town house
- Four bedrooms
- Good size living room
- Kitchen/ dining room
- Three bathrooms
- Separate WC
- Driveway for one car
- No onward chain
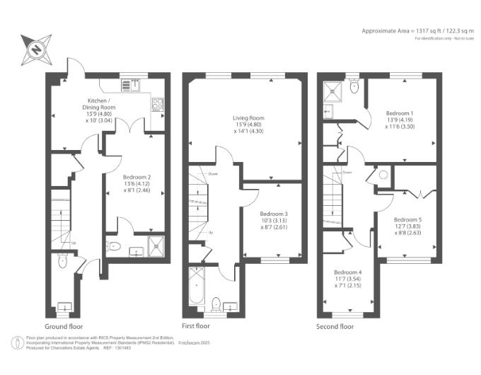
Property Description
Nestled in the desirable Cintra Close, Reading, this charming terraced house offers a perfect blend of comfort and convenience. Built in 2000, this well-maintained property spans an impressive 1,227 square feet, making it an ideal home for families or a savvy investment opportunity for those looking to convert it into a House in Multiple Occupation (HMO), given its proximity to the university.
The property boasts four spacious bedrooms, providing ample space for family living or accommodating students. The first floor features a delightful living room, complete with a Juliet balcony that invites natural light and offers a pleasant view. The layout is thoughtfully designed, with a kitchen and dining room that create a welcoming atmosphere for family meals and gatherings. Additionally, a playroom adds versatility to the living space, perfect for children or as a study area.
With three well-appointed bathrooms and a separate WC, the home ensures convenience for all residents. The property also includes parking for one vehicle, a valuable asset in this bustling area.
Cintra Close is ideally situated, offering easy access to local amenities, schools, and transport links, making it a prime location for both families and investors alike. This property is not just a house; it is a wonderful opportunity to create a home or a profitable rental venture in a vibrant community. Don’t miss the chance to make this delightful property your own.
The property boasts four spacious bedrooms, providing ample space for family living or accommodating students. The first floor features a delightful living room, complete with a Juliet balcony that invites natural light and offers a pleasant view. The layout is thoughtfully designed, with a kitchen and dining room that create a welcoming atmosphere for family meals and gatherings. Additionally, a playroom adds versatility to the living space, perfect for children or as a study area.
With three well-appointed bathrooms and a separate WC, the home ensures convenience for all residents. The property also includes parking for one vehicle, a valuable asset in this bustling area.
Cintra Close is ideally situated, offering easy access to local amenities, schools, and transport links, making it a prime location for both families and investors alike. This property is not just a house; it is a wonderful opportunity to create a home or a profitable rental venture in a vibrant community. Don’t miss the chance to make this delightful property your own.
Additional Information
| Tenure: | Freehold |
|---|
Mortgage calculator
Calculate Your Stamp Duty
Results
Stamp Duty To Pay:
Effective Rate:
| Tax Band | % | Taxable Sum | Tax |
|---|
Cintra Close, Reading
Want to explore Cintra Close, Reading further? Explore our local area guide
Struggling to find a property? Get in touch and we'll help you find your ideal property.