Standout Features

Property Description
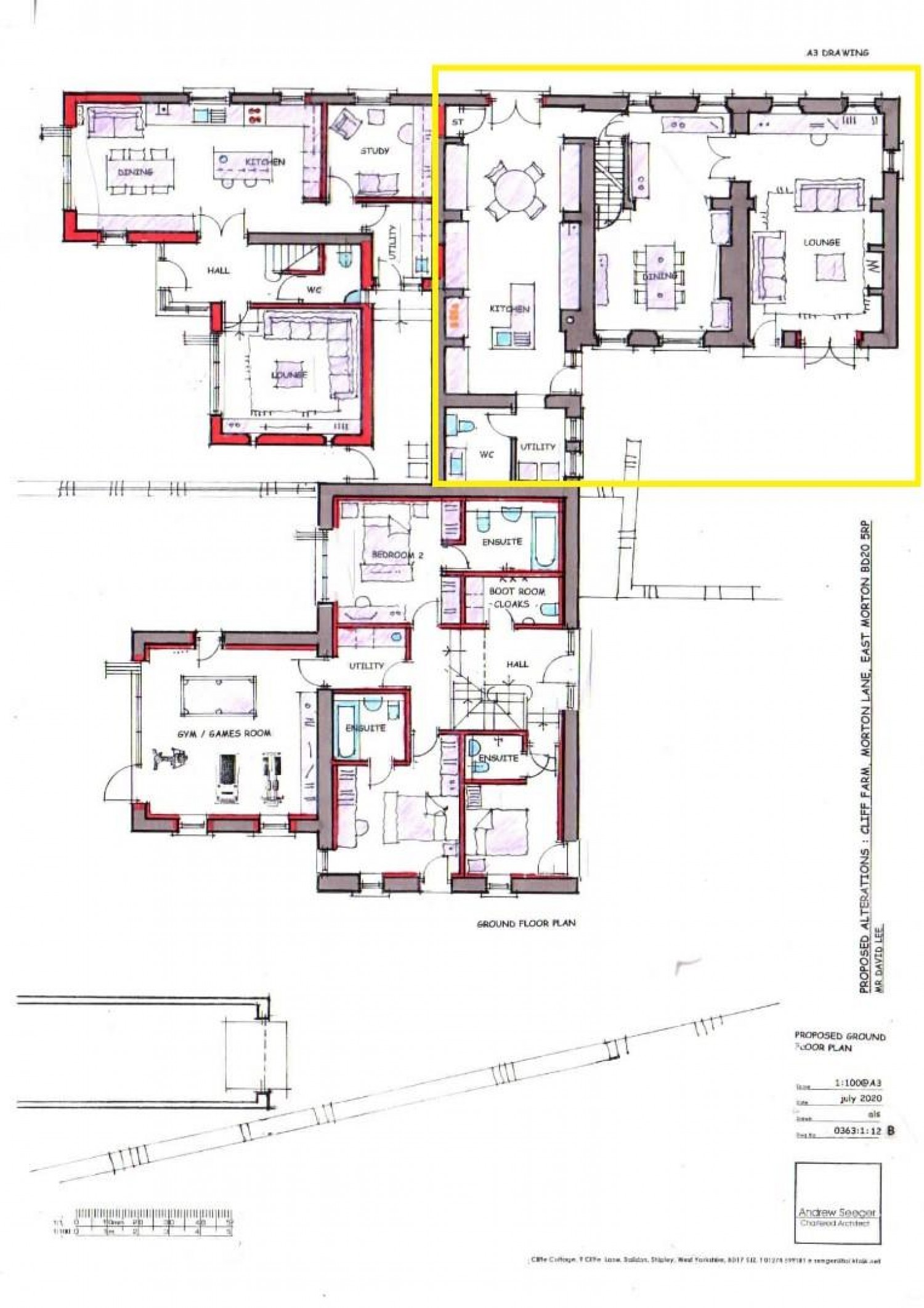
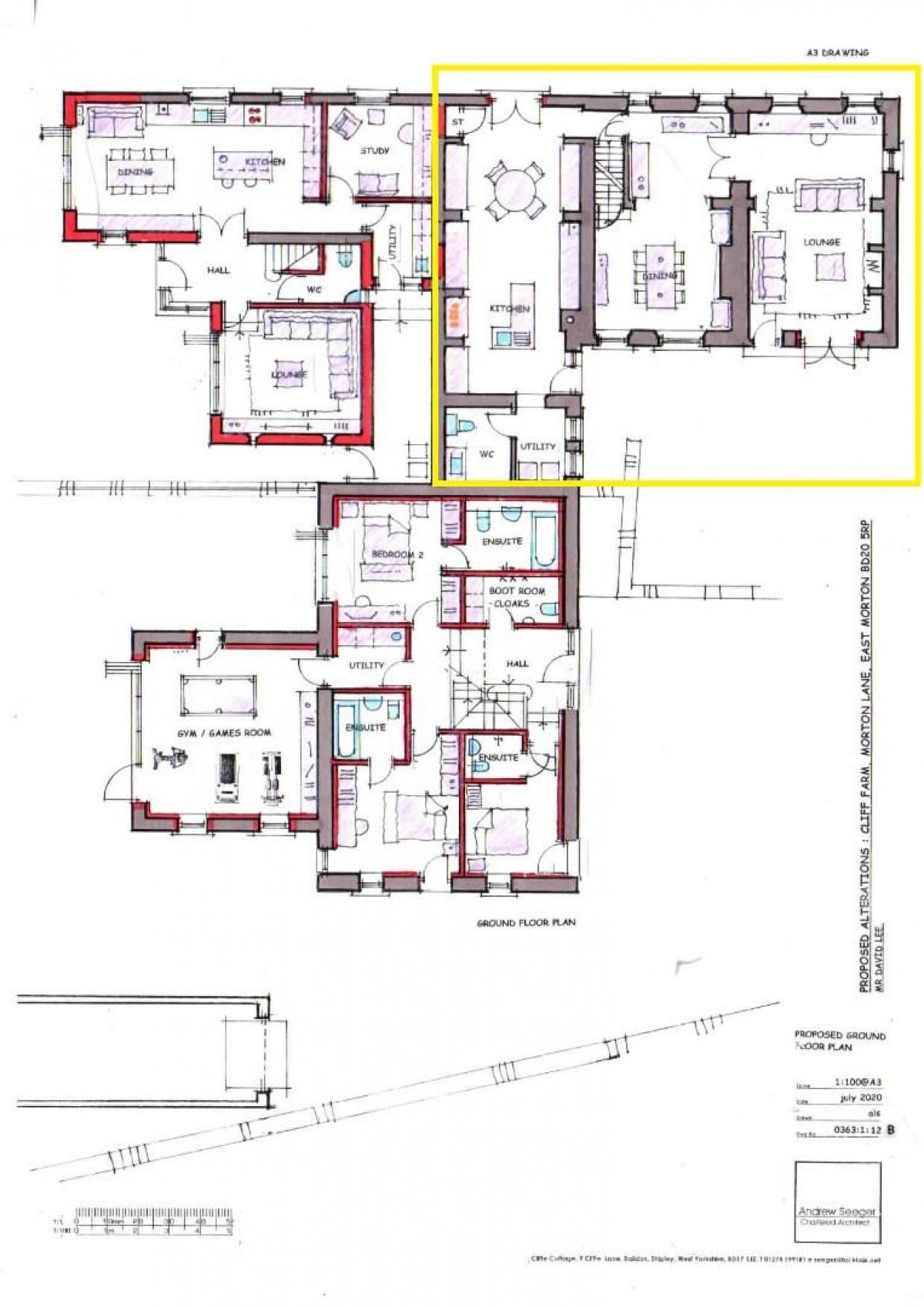
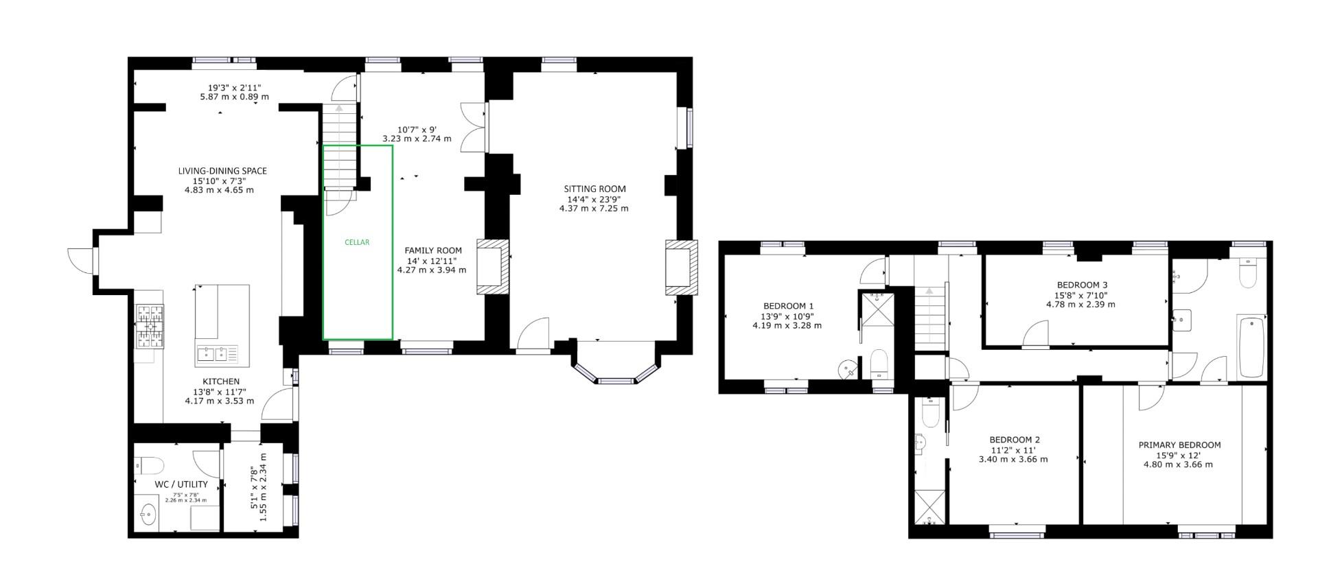
A perfectly situated and charming, spacious and yet cosy family home. Cliff Farm offers over 2300 ft.² of internal accommodation, and represents excellent value for a solid, stone built period property. Set in attractive gardens with some fine long distance views and having ample parking and a newly built 10‘ x 33‘ tandem garage. Constructed of pitched Yorkshire stone, this 4 bedroom home has 3 en suite bathrooms, and a superb open-plan living-dining-kitchen with cloakroom off, and two good sized reception rooms.

Cliff Farm is a small development of just 3 family homes, currently with just the one property finished to living standards so far. It is our clients intention to convert and live in the adjacent Barn, and the third property, a new build plot, to the rear has been SOLD. We have included a plan and model of this exclusive development, so that all potential purchasers of Cliff Farm are fully informed that this will be an exclusive high-quality, small development.

A period property yet having the benefits of modern living to include gas, fired central heating and double glazing.

To the ground floor; – a reception hall with cloak / utility room off, leads into a superb and generous sized open-plan, living-dining-kitchen. Boasting an extensive range of high-quality bespoke solid wood units with granite worktops, a large centre island providing vast baking and food preparation areas, and with plenty of storage. In addition, there are two impressive bespoke Welsh dressers with display cabinets, shelving and drawers, and which our vendor is including in the sale. An integrated fridge and freezer, and a high-quality range cooker is included in the sale. This is a light and spacious room having dual aspect windows and two large Velux skylights. To the far end, there is ample space for a dining suite and a sofa or chairs, the bespoke dining suite in situ is available by separate negotiation, as it was purpose made for this room.

A cellar can be reached out of the rear hall and provides useful storage and wine keeping space, having original natural stone shelves, electric consumer board, gas boiler and unvented-pressurised water tank for mains pressure hot water.

The first reception / living room is of good proportions and features, dual aspect windows, Victorian tiled inset fireplace with open fire and feature beam over, exposed oak beams, and French doors leading into the sitting room. There is an enclosed staircase to the first floor.

The second reception room / sitting room features dual aspect windows and a gable window, exposed oak beams, and a recessed fireplace with attractive punched stone surround and stone flagged hearth encompassing a log effects gas fire. A good sized sitting room with ample space for two or three sofas and associated furniture, and with door leading onto the front garden.

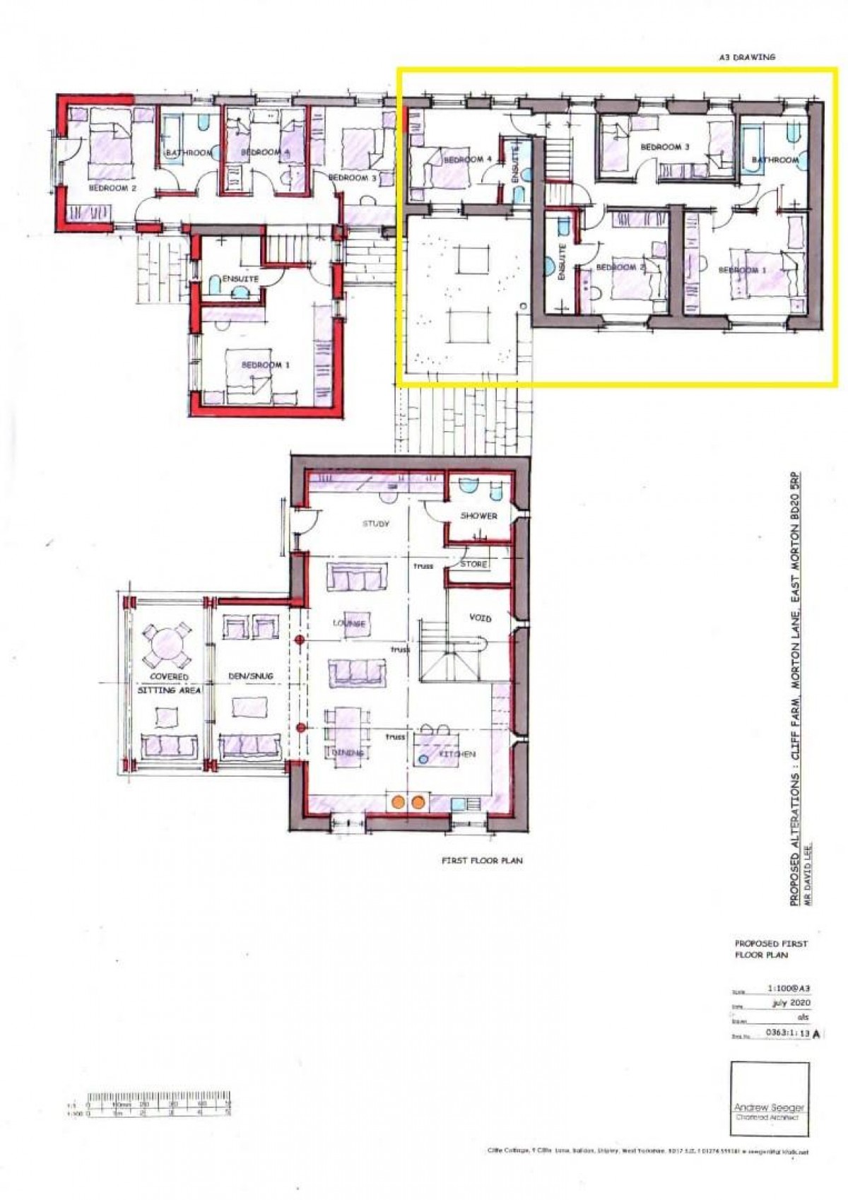
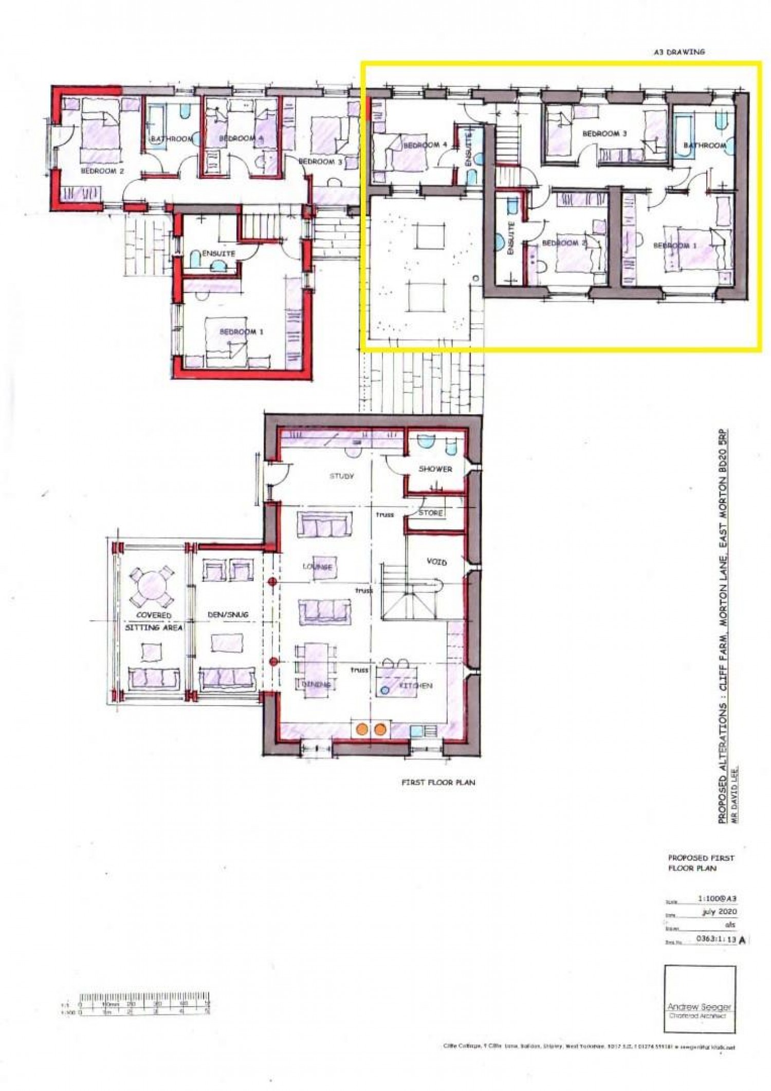
To the first floor, the principal bedroom features a range of built-in furniture including wardrobes, cupboards and drawers, and with a pleasant outlook and some fine long distance views. A door leads off the bedroom into a Jack and Jill bathroom, which has been refurbished to a very high standard and is spacious in layout.

There are two further double bedrooms benefiting from ensuite shower rooms with WC, and bedroom 4 is also a double.

Outside; – to the front of the property, there is attractive, mainly lawned garden with central footpath and having side gardens leading through to a fenced paddock area at the rear. Please note that this area cannot be 'manicured as a detailed garden' without change of use from planning. It can be used to sit and relax in, play in, grow vegetables, and so on. There is parking for 3 vehicles at the front of the house, and a newly constructed 33‘ x 10‘ tandem garage with remote control rollup door, power, and extensive lighting. provides 2 internal parking spaces.

East Morton is a desirable village in West Yorkshire, and with Cliff Farm being close to the Leeds Liverpool Canal and the famous Ilkley Moors, both offering fabulous walking. There are two Metro train stations within 2 miles of the property, and Leeds Bradford Airport is just 9.5 miles away.


Additional Information
Tenure: Freehold
Council Tax Band: H

Utilities
Broadband:
Cable
Electricity:
Mains Supply
Sewerage:
Mains Supply
Heating:
Gas Central

Mortgage calculator

Calculate Your Stamp Duty
£
Results
Stamp Duty To Pay:
Effective Rate:
Tax Band % Taxable Sum Tax

Cliff Farm, East Morton. Bingley

Want to explore Cliff Farm, East Morton. Bingley further? Explore our local area guide

Struggling to find a property? Get in touch and we'll help you find your ideal property.