Doublegates Avenue, Ripon

Offers over £425,000 | SSTC

4 bedroom House Sold STC
Total Size: 1314 SQ FT
or call 01765 530007
Standout Features

Property Description
Stunning detached house currently features three bedrooms and a luxurious dressing room. However, the layout can easily be reverted to a four-bedroom configuration to suit the needs of prospective buyers.

Nestled in a sought-after location just off Clotherholme Road, this versatile and well-appointed detached house currently features three bedrooms and a luxurious dressing room. However, the layout can easily be reverted to a four-bedroom configuration to suit the needs of prospective buyers.
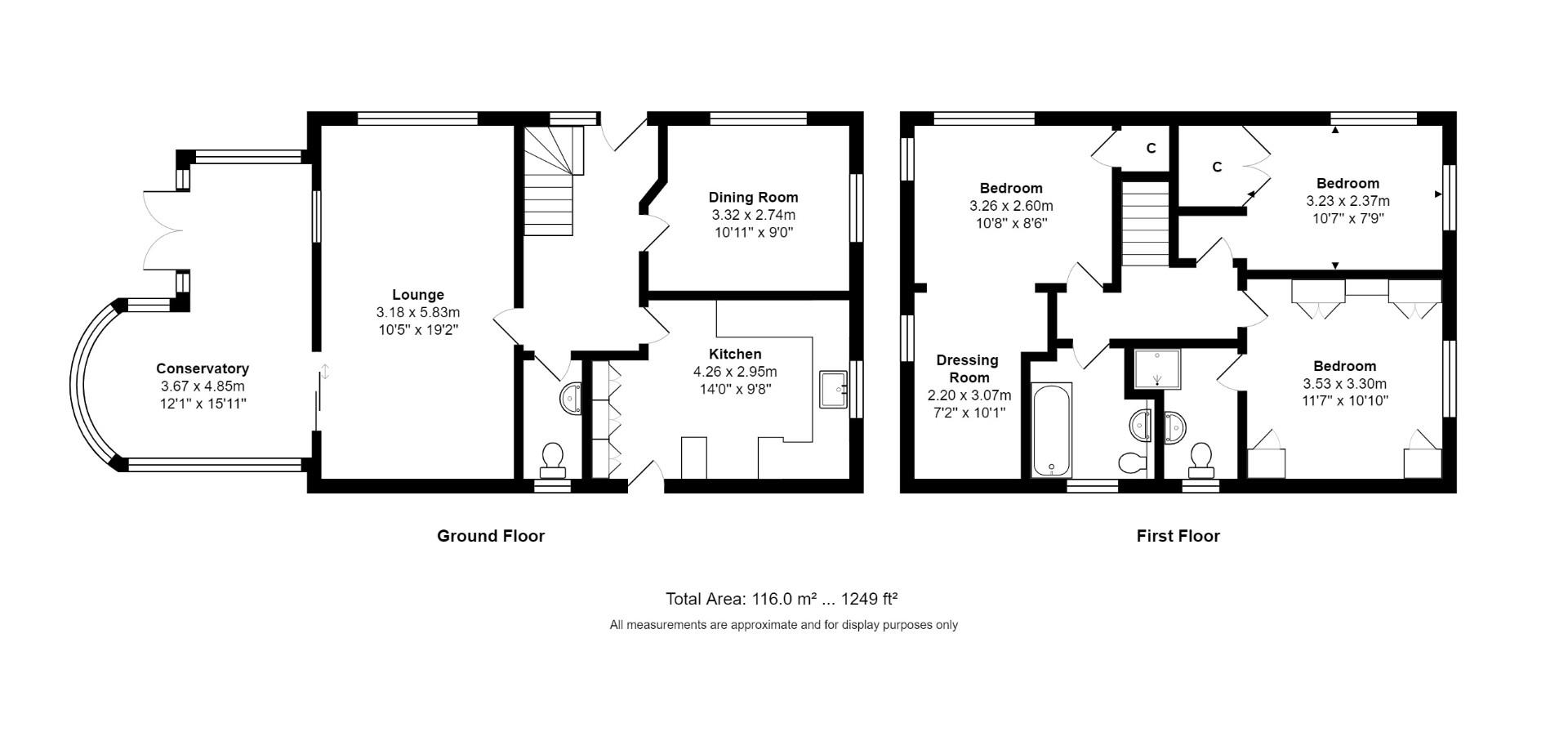
Upon entering, you are welcomed by an elegant entrance hall adorned with Karndean flooring and stylish panelling. The spacious lounge, filled with natural light from its dual aspect windows, boasts a beautiful limestone fireplace with an electric fire and sliding doors leading into a charming 'P' shaped conservatory. This conservatory offers a view of the well-maintained garden.
The property includes a separate dining room, also with Karndean flooring and dual aspect windows, perfect for family meals or entertaining guests. The stunning fitted kitchen is a chef's delight, featuring Granite worktops, a range-style cooker, two built-in fridges, a washing machine, belfast sink and exquisitely designed lighting. A convenient downstairs WC, complete with Karndean flooring and stylish panelling, adds to the home's practicality.
Upstairs, the first floor offers three/four bedrooms, two benefiting from dual aspect windows. The master bedroom includes fitted furniture and an ensuite shower room. The second double bedroom features beautiful mirrored panelling and a fitted wardrobe. The third double bedroom has been extended into the fourth bedroom to create a luxurious dressing room. However, this can be easily converted back to a fourth bedroom at the buyer's request. A luxurious house bathroom completes this ideal family home, with a fully boarded, insulated and ventilated loft benefitting from power, lighting and access ladder.
Externally, the property sits on a generous plot with surrounding gardens mainly laid to lawn. The outdoor space includes a porcelain paved patio area and a raised decking area, providing a perfect outdoor living space. This area is complete with a fireplace, space for a TV with aerial access through the double garage, space for a hot tub and exquisite lighting throughout. Additionally, there is a driveway providing off-street parking and a detached double garage.
This ideal family home, with its flexible living space and beautiful design, offers easy access to local schools and is sure to impress. Don’t miss the opportunity to make this versatile property your dream home.

Additional Information

Additional Information

Offer Acceptance & AML Regulations
Under the Money Laundering, Terrorist Financing & Transfer of Funds Regulations 2017, we are required to obtain proof of the source of funds for the purchase, as well as identification documents for all prospective buyers. We kindly ask buyers to assist with this process to avoid any delays in agreeing a sale.

A fee of £42 (inclusive of VAT) per named buyer is payable by the successful purchaser(s). This fee covers the money laundering checks carried out by SmartSearch, the firm that administers our ID verification. Please note that the property will not be marked as sold subject to contract until all required identification has been provided and AML checks have been satisfactorily completed.

________________________________________

Mortgage Advice
We are pleased to offer mortgage advice through our partnership with CS Mortgage Solutions. To arrange an appointment, please contact the branch and we will organise for an advisor to help you find the most suitable mortgage for your circumstances.

The initial consultation is free of charge and without obligation. A fee may be payable should you choose to proceed with their services.

________________________________________

Please Note
The extent of the property and its boundaries are subject to confirmation by inspection of the title deeds. All measurements provided in these particulars are approximate and intended for guidance only. Fixtures, fittings and appliances have not been tested, and no warranty can be given regarding their condition or functionality. Internal photographs are supplied for general information and should not be taken to imply that any specific item is included in the sale.


Additional Information
Tenure: Freehold
Council Tax Band: E

Rooms
Additional Information
Additional Information

Offer Acceptance & AML Regulations
Under the Money Laundering, Terrorist Financing & Transfer of Funds Regulations 2017, we are required to obtain proof of the source of funds for the purchase, as well as identification documents for all prospective buyers. We kindly ask buyers to assist with this process to avoid any delays in agreeing a sale.

A fee of £42 (inclusive of VAT) per named buyer is payable by the successful purchaser(s). This fee covers the money laundering checks carried out by SmartSearch, the firm that administers our ID verification. Please note that the property will not be marked as sold subject to contract until all required identification has been provided and AML checks have been satisfactorily completed.

________________________________________

Mortgage Advice
We are pleased to offer mortgage advice through our partnership with CS Mortgage Solutions. To arrange an appointment, please contact the branch and we will organise for an advisor to help you find the most suitable mortgage for your circumstances.

The initial consultation is free of charge and without obligation. A fee may be payable should you choose to proceed with their services.

________________________________________

Please Note
The extent of the property and its boundaries are subject to confirmation by inspection of the title deeds. All measurements provided in these particulars are approximate and intended for guidance only. Fixtures, fittings and appliances have not been tested, and no warranty can be given regarding their condition or functionality. Internal photographs are supplied for general information and should not be taken to imply that any specific item is included in the sale.

Mortgage calculator

Calculate Your Stamp Duty
£
Results
Stamp Duty To Pay:
Effective Rate:
Tax Band % Taxable Sum Tax

Doublegates Avenue, Ripon

Want to explore Doublegates Avenue, Ripon further? Explore our local area guide

Struggling to find a property? Get in touch and we'll help you find your ideal property.