Standout Features

Property Description
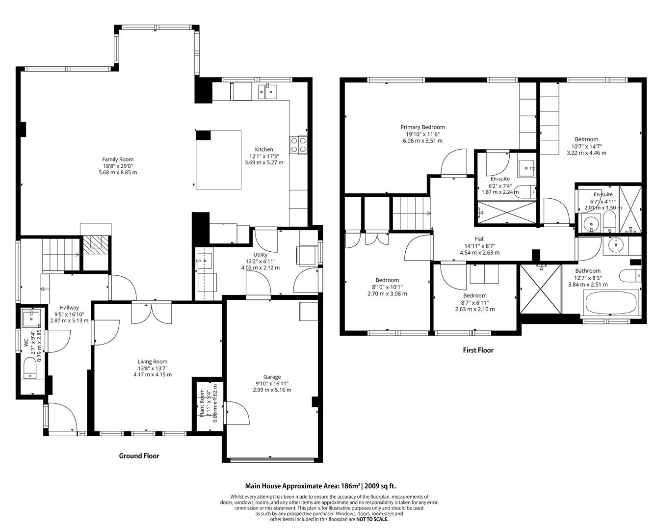
Occupying a generous-size plot amongst this well established and highly desirable address is this immaculately presented four bedroom detached family home. Having been meticulously refurbished and modernised to the highest of standards; the property offers a 'show-home' style finish with a sociable open plan layout ideal for entertaining. To give prospective buyers an insight, the property briefly comprises of impressive and welcoming entrance hall complete with oak flooring running throughout the ground floor, ground floor cloakroom, separate living room, an impressive family room with a beautiful and modern kitchen area complete with Quartz worksurfaces, centre island and a whole host of integrated appliances as well as a generous-size lounge diner area with floor-to-ceiling patio doors leading to rear garden. Continuing upstairs off the landing to four well proportioned bedrooms, master and bedroom two with en suite shower room and built in wardrobes, and elegant family bathroom with large bathtub and a separate shower cubical. The rear garden is thoughtfully laid out with a decking and paved patio seating area, well maintained lawn beyond with private aspect. To the front of the property is a large tarmacadam driveway with block paved borders leading to a useful integral garage. Additional benefits include being within close proximity to reputable local schools within Hagley Village and has excellent transport links to nearby motorway and Stourbridge Junction. This is a perfect example of a exceptionally presented home that must be viewed to appreciate what's on offer.

Front of the Property

To the front of the property is a tarmacadam driveway with block paved borders, EV charging point, electric garage door allowing access to the garage, step leading to the solid oak front door and gated side access.

Entrance Hall

With a solid oak door and double glazed window to the front, oak flooring, doors leading to various rooms, stairs leading to the first floor landing and a central heating radiator.

Cloakroom

With a door from the entrance hall, double glazed window to the side, WC, wash hand basin set into vanity unit, extractor fan, tiled flooring and a chrome heated towel rail.

Living Room (4.17 x 4.52)

With a door from the entrance hall, three double glazed windows to the front, oak flooring, recessed spotlights, double doors leading to the family room and a central heating radiator.

Family Room (9.47 (max) x 9.77 (max))

Living Area

With a door from the entrance hall and double doors leading from the living room, two skylight windows, two double glazed floor to ceiling aluminium patio doors leading to the rear garden, space for seating and dining table, recessed spotlights and two central heating radiators.

Kitchen Area

With an opening from the living area, double glazed window to the rear and one skylight window, a modern fitted kitchen with a range of wall and base units, Quartz worksurfaces over with matching splashback, inset one and a half bowl sink and drainer with macerator, integrated double oven, microwave and plates warmer, five ring induction hob with stainless steel extractor fan above, integrated dishwasher, wine cooler, instant boiling water tap, space for American style fridge and freezer, tiled flooring with under floor heating, breakfast bar, recessed spotlights, door leading to utility room and underfloor heating.

Utility Room (1.80 x 3.36)

With a door from the kitchen area, double glazed window to the side, modern fitted wall and base units, work surface over with splashback, stainless steel sink and drainer, plumbing for washing machine, space for tumble dryer, tiled flooring, door leading to garage, double glazed door to the side and a central heating radiator.

Landing

With stairs from the entrance hall, doors leading to various rooms, oak flooring, loft access and a central heating radiator.

Bedroom One (3.50 x 5.40)

With a door from the first floor landing, two double glazed windows to the rear, built in wardrobes, oak flooring, door leading to the en suite and a central heating radiator.

En Suite (2.26 x 1.57)

With a door from bedroom one, WC, wash hand basin set into vanity unit, large shower cubical with waterfall shower and separate shower head attachment, recessed spotlights, extractor fan, tiled flooring and fully tiled walls, underfloor heating and a chrome heated towel rail.

Bedroom Two (3.19 x 3.36)

With a door from the first floor landing, double glazed window to the rear, oak flooring, door leading to en suite and a central heating radiator.

En Suite (1.50 x 2.30)

With a door from bedroom two, WC, wash hand basin, large walk-in shower cubical, tiled flooring and fully tiled walls, recessed spotlights, extractor fan, underfloor heating and a chrome heated towel rail.

Bedroom Three (3.20 x 3.02)

With a door from the first floor landing, double glazed window to the front, oak flooring, built in wardrobe and a central heating radiator.

Bedroom Four (2.27 x 2.94)

With a door from the first floor landing, double glazed window to the front, oak flooring and a central heating radiator.

Bathroom (2.70 x 3.30)

With a door from the first floor landing, double glazed window to the front, a modern fitted bathroom with a bathtub with a shower attachment, separate shower cubical, WC, wash hand basin set into vanity unit, recessed spotlights, extractor fan, tiled flooring and fully tiled walls, underfloor heating and a chrome heated towel rail.

Rear Garden

With two double glazed floor to ceiling aluminium patio doors leading to a decked seating area, paved patio to the sides, lawn beyond, shrubbed borders, gated side access to either sides, outdoor lighting, outside tap and power points.

Garage (4.90 x 2.44)

With an electric garage door to the front of the property, power and lighting, and a door leading to the utility room.

Agents are required by law to conduct anti-money laundering checks on all those buying a property. We outsource the initial checks to a partner supplier Coadjute who will contact you once you have had an offer accepted on a property you wish to buy. The cost of these checks is £45+VAT per buyer and this is a non-refundable fee. These charges cover the cost of obtaining relevant data, any manual checks and monitoring which might be required. This fee will need to be paid and the checks completed in advance of the office issuing a memorandum of sale on the property you would like to buy.


Additional Information
Tenure: Freehold
Council Tax Band: E

Rooms
Front of the Property
To the front of the property is a tarmacadam driveway with block paved borders, EV charging point, electric garage door allowing access to the garage, step leading to the solid oak front door and gated side access.
Entrance Hall
With a solid oak door and double glazed window to the front, oak flooring, doors leading to various rooms, stairs leading to the first floor landing and a central heating radiator.
Cloakroom
With a door from the entrance hall, double glazed window to the side, WC, wash hand basin set into vanity unit, extractor fan, tiled flooring and a chrome heated towel rail.
Living Room
With a door from the entrance hall, three double glazed windows to the front, oak flooring, recessed spotlights, double doors leading to the family room and a central heating radiator.
4.17 x 4.52 (13'8" x 14'9")
Family Room

9.47 (max) x 9.77 (max) (31'0" (max) x 32'0" (max)
Living Area
With a door from the entrance hall and double doors leading from the living room, two skylight windows, two double glazed floor to ceiling aluminium patio doors leading to the rear garden, space for seating and dining table, recessed spotlights and two central heating radiators.
Kitchen Area
With an opening from the living area, double glazed window to the rear and one skylight window, a modern fitted kitchen with a range of wall and base units, Quartz worksurfaces over with matching splashback, inset one and a half bowl sink and drainer with macerator, integrated double oven, microwave and plates warmer, five ring induction hob with stainless steel extractor fan above, integrated dishwasher, wine cooler, instant boiling water tap, space for American style fridge and freezer, tiled flooring with under floor heating, breakfast bar, recessed spotlights, door leading to utility room and underfloor heating.
Utility Room
With a door from the kitchen area, double glazed window to the side, modern fitted wall and base units, work surface over with splashback, stainless steel sink and drainer, plumbing for washing machine, space for tumble dryer, tiled flooring, door leading to garage, double glazed door to the side and a central heating radiator.
1.80 x 3.36 (5'10" x 11'0")
Landing
With stairs from the entrance hall, doors leading to various rooms, oak flooring, loft access and a central heating radiator.
Bedroom One
With a door from the first floor landing, two double glazed windows to the rear, built in wardrobes, oak flooring, door leading to the en suite and a central heating radiator.
3.50 x 5.40 (11'5" x 17'8")
En Suite
With a door from bedroom one, WC, wash hand basin set into vanity unit, large shower cubical with waterfall shower and separate shower head attachment, recessed spotlights, extractor fan, tiled flooring and fully tiled walls, underfloor heating and a chrome heated towel rail.
2.26 x 1.57 (7'4" x 5'1")
Bedroom Two
With a door from the first floor landing, double glazed window to the rear, oak flooring, door leading to en suite and a central heating radiator.
3.19 x 3.36 (10'5" x 11'0")
En Suite
With a door from bedroom two, WC, wash hand basin, large walk-in shower cubical, tiled flooring and fully tiled walls, recessed spotlights, extractor fan, underfloor heating and a chrome heated towel rail.
1.50 x 2.30 (4'11" x 7'6")
Bedroom Three
With a door from the first floor landing, double glazed window to the front, oak flooring, built in wardrobe and a central heating radiator.
3.20 x 3.02 (10'5" x 9'10")
Bedroom Four
With a door from the first floor landing, double glazed window to the front, oak flooring and a central heating radiator.
2.27 x 2.94 (7'5" x 9'7")
Bathroom
With a door from the first floor landing, double glazed window to the front, a modern fitted bathroom with a bathtub with a shower attachment, separate shower cubical, WC, wash hand basin set into vanity unit, recessed spotlights, extractor fan, tiled flooring and fully tiled walls, underfloor heating and a chrome heated towel rail.
2.70 x 3.30 (8'10" x 10'9")
Rear Garden
With two double glazed floor to ceiling aluminium patio doors leading to a decked seating area, paved patio to the sides, lawn beyond, shrubbed borders, gated side access to either sides, outdoor lighting, outside tap and power points.
Garage
With an electric garage door to the front of the property, power and lighting, and a door leading to the utility room.
4.90 x 2.44 (16'0" x 8'0")

Mortgage calculator

Calculate Your Stamp Duty
£
Results
Stamp Duty To Pay:
Effective Rate:
Tax Band % Taxable Sum Tax

Ferndale Park, Stourbridge, DY9 0RB

Want to explore Ferndale Park, Stourbridge, DY9 0RB further? Explore our local area guide

Struggling to find a property? Get in touch and we'll help you find your ideal property.