4 bedroom House Sold STC

£269,000 | SSTC

4 bedroom House Sold STC
or call 01845 440044
Standout Features

Property Description
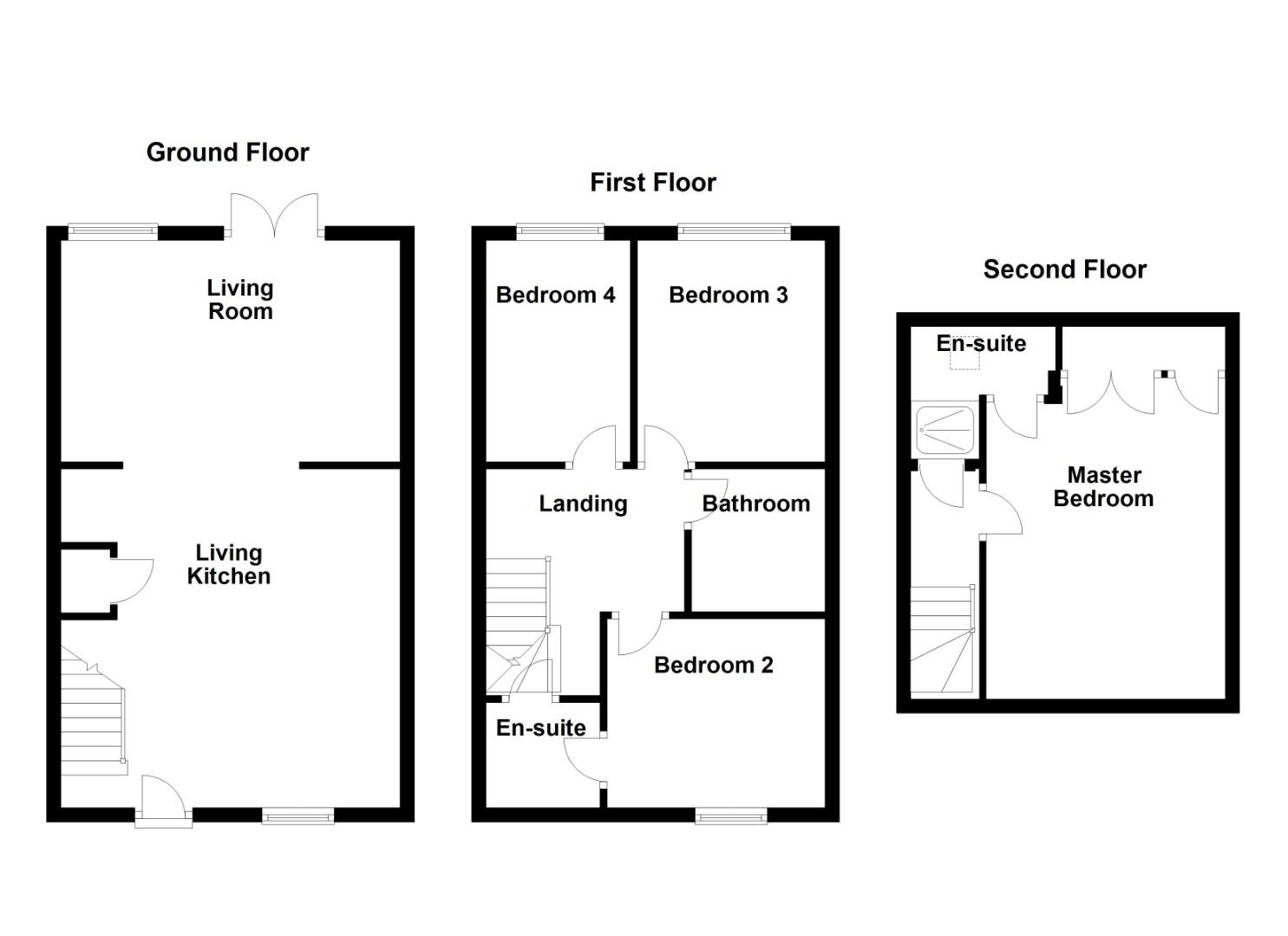
This modern family home offers spacious living throughout all three floors of the property. To the
ground floor is a modern fitted kitchen with an excellent arrangement of grey fitted units. Open plan with the living area, with direct access to the south facing garden. To the first floor you have two double bedrooms, one with an en-suite shower room, and one single room. The house bathroom is also situated on this floor. To the second floor, the master bedroom, sitting on it own level, with a en-suite shower room and built in wardrobes.

This modern family home offers spacious living throughout all three floors of the property. To the
ground floor is a modern fitted kitchen with an excellent arrangement of grey fitted units. Open plan with the living area, with direct access to the south facing garden. To the first floor you have two double bedrooms, one with an en-suite shower room, and one single room. The house bathroom is also situated on this floor. To the second floor, the master bedroom, sitting on it own level, with a en-suite shower room and built in wardrobes.

Living Kitchen (4.7 x 4.89)

Modern open plan living kitchen fitted with a range of grey fronted base and wall units and large island with copper insets and ambient lighting. Within the units there is a single electric oven, five ring gas hob with steel and glass extractor over, integrated microwave, bowl and a half sink and drainer with mixer tap, integrated dishwasher, plumbing for washing machine, integrated fridge and separate integrated freezer. Useful under stair store area, double glazed window to front elevation and open to living area.

Living Room (3.07 x 4.7)

A bright room with French double glazed doors and further window opening to the South facing rear garden. Television aerial point, and central heating radiator.

Store Room

Useful under-stair space. Plumbing to convert to a cloakroom in place.

First Floor

Landing

With doors to three bedrooms and house bathroom, stairs off to second floor and Master bedroom.

Bedroom Two (2.82 x 3.02)

Double glazed window to the front elevation, central heating radiator and door to en-suite.

En-suite Shower (1.5 x 1.85)

Fitted with suite comprising walk-in shower cubicle, low flush WC and wash hand basin on vanity with storage. Double glazed window to front, extractor fan and central heating radiator.

Bedroom Three (2.6 x 2.71)

Double glazed window to rear elevation and central heating radiator.

Bedroom Four (2 x 2.71)

Currently used as a dressing room. Double glazed window to rear elevation and central heating radiator.

Bathroom (1.85 x 1.98)

Family bathroom fitted with a white suite comprising; panelled bath, wash hand basin set on vanity unit with storage cupboard and low flush W.C. Tiled to splash back areas, recessed lighting and central heating radiator.

Second Floor Landing

Door off to Master bedroom, airing cupboard housing hot water cylinder.

Master Bedroom (2.84 x 4.19)

The master bedroom has a good range range of modern fitted wardrobes, double glazed window to the front elevation and central heating radiator.

En-suite Shower Room (1.4 x 2.7)

Fitted with a white suite comprising walk-in shower cubicle, low flush WC and 'His & Hers' wash hand basin sinks set on vanity unit with cupboards under. Sky light, central heating radiator and extractor fan.

Externally

The gardens to the property have been landscaped for ease of maintenance. To the front of the property there is a small gated area with pathway leading to the front entrance door. The South facing rear garden is laid mainly to lawn with Indian Stone paved seating area. A wooden gate leads to the parking area and garage. The single garage with up and over door has parking directly to the front and rear with access door to the rear of the building.


Additional Information
Tenure: Freehold
Council Tax Band: D

Rooms
Living Kitchen
Modern open plan living kitchen fitted with a range of grey fronted base and wall units and large island with copper insets and ambient lighting. Within the units there is a single electric oven, five ring gas hob with steel and glass extractor over, integrated microwave, bowl and a half sink and drainer with mixer tap, integrated dishwasher, plumbing for washing machine, integrated fridge and separate integrated freezer. Useful under stair store area, double glazed window to front elevation and open to living area.
4.7 x 4.89 (15'5" x 16'0")
Living Room
A bright room with French double glazed doors and further window opening to the South facing rear garden. Television aerial point, and central heating radiator.
3.07 x 4.7 (10'0" x 15'5")
Store Room
Useful under-stair space. Plumbing to convert to a cloakroom in place.
First Floor

Landing
With doors to three bedrooms and house bathroom, stairs off to second floor and Master bedroom.
Bedroom Two
Double glazed window to the front elevation, central heating radiator and door to en-suite.
2.82 x 3.02 (9'3" x 9'10")
En-suite Shower
Fitted with suite comprising walk-in shower cubicle, low flush WC and wash hand basin on vanity with storage. Double glazed window to front, extractor fan and central heating radiator.
1.5 x 1.85 (4'11" x 6'0")
Bedroom Three
Double glazed window to rear elevation and central heating radiator.
2.6 x 2.71 (8'6" x 8'10")
Bedroom Four
Currently used as a dressing room. Double glazed window to rear elevation and central heating radiator.
2 x 2.71 (6'6" x 8'10")
Bathroom
Family bathroom fitted with a white suite comprising; panelled bath, wash hand basin set on vanity unit with storage cupboard and low flush W.C. Tiled to splash back areas, recessed lighting and central heating radiator.
1.85 x 1.98 (6'0" x 6'5")
Second Floor Landing
Door off to Master bedroom, airing cupboard housing hot water cylinder.
Master Bedroom
The master bedroom has a good range range of modern fitted wardrobes, double glazed window to the front elevation and central heating radiator.
2.84 x 4.19 (9'3" x 13'8")
En-suite Shower Room
Fitted with a white suite comprising walk-in shower cubicle, low flush WC and 'His & Hers' wash hand basin sinks set on vanity unit with cupboards under. Sky light, central heating radiator and extractor fan.
1.4 x 2.7 (4'7" x 8'10")
Externally
The gardens to the property have been landscaped for ease of maintenance. To the front of the property there is a small gated area with pathway leading to the front entrance door. The South facing rear garden is laid mainly to lawn with Indian Stone paved seating area. A wooden gate leads to the parking area and garage. The single garage with up and over door has parking directly to the front and rear with access door to the rear of the building.

Utilities
Broadband:
fixedwireless
Electricity:
Mains Supply
Sewerage:
Mains Supply
Water:
Heating:
Gas Central

Mortgage calculator

Calculate Your Stamp Duty
£
Results
Stamp Duty To Pay:
Effective Rate:
Tax Band % Taxable Sum Tax

Freemans Way, Thirsk

Want to explore Freemans Way, Thirsk further? Explore our local area guide

Struggling to find a property? Get in touch and we'll help you find your ideal property.