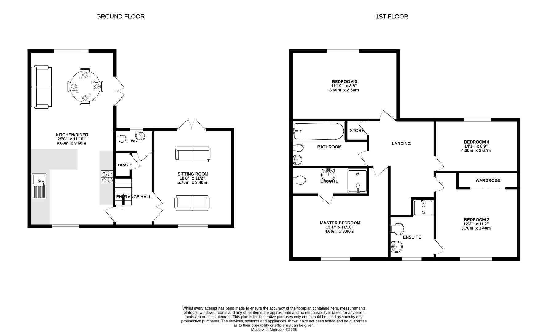
Standout Features
- Four Bedroom, Detached Modern Family Home
- Marketed with no-onward chain complications!
- Situated within the well regarded 'Conningbrook Lakes' Estate
- Offering 2 generous reception rooms on the ground floor
- Large open-plan kitchen/diner with breakfast island & patio doors
- 4 Generous bedrooms, 2 of which boast en-suite shower rooms.
- Modern family bathroom & Ground floor W/C
- Good size, sunny rear garden with rear access & car-port parking with gates
- EPC Rating: B (81) - Council Tax Band: D - Estate management fee: £408.00pa (TBV)
- Remainder of Premier House-Builder Guarantee
Property Description
Nestled in the picturesque setting of Conningbrook Lakes, Ashford, this stunning four-bedroom detached family home on Grasshopper Drive is a true gem. Built in 2021, the property spans an impressive square footage, providing ample space for family living.
As you enter, you are greeted by two spacious reception rooms that offer versatility for relaxation and entertainment. The modern kitchen features a charming breakfast bar and patio doors that lead to the garden, creating a seamless connection between indoor and outdoor living. The large dual-aspect lounge is perfect for family gatherings, ensuring everyone has room to unwind comfortably.
Upstairs, you will find four well-proportioned bedrooms, two of which come with en-suite shower rooms, providing convenience and privacy for family members or guests. The modern family bathroom caters to the remaining bedrooms, while the fourth bedroom is ideally suited for use as a study or home office, accommodating the needs of today’s lifestyle.
Externally, the property boasts a good-sized garden, perfect for outdoor activities and relaxation. Additionally, there is rear off-street parking available in the shared car-port, adding to the convenience of this lovely home.
With charming walks right on your doorstep and a welcoming community, this property is not just a house; it is a wonderful place to call home. Don’t miss the opportunity to experience the lifestyle that Conningbrook Lakes has to offer.
As you enter, you are greeted by two spacious reception rooms that offer versatility for relaxation and entertainment. The modern kitchen features a charming breakfast bar and patio doors that lead to the garden, creating a seamless connection between indoor and outdoor living. The large dual-aspect lounge is perfect for family gatherings, ensuring everyone has room to unwind comfortably.
Upstairs, you will find four well-proportioned bedrooms, two of which come with en-suite shower rooms, providing convenience and privacy for family members or guests. The modern family bathroom caters to the remaining bedrooms, while the fourth bedroom is ideally suited for use as a study or home office, accommodating the needs of today’s lifestyle.
Externally, the property boasts a good-sized garden, perfect for outdoor activities and relaxation. Additionally, there is rear off-street parking available in the shared car-port, adding to the convenience of this lovely home.
With charming walks right on your doorstep and a welcoming community, this property is not just a house; it is a wonderful place to call home. Don’t miss the opportunity to experience the lifestyle that Conningbrook Lakes has to offer.
Additional Information
| Tenure: | Freehold |
|---|---|
| Council Tax Band: | B |
Utilities
Water:
Heating:
Gas Central
Mortgage calculator
Calculate Your Stamp Duty
Results
Stamp Duty To Pay:
Effective Rate:
| Tax Band | % | Taxable Sum | Tax |
|---|
Grasshopper Drive, Kennington
Want to explore Grasshopper Drive, Kennington further? Explore our local area guide
Struggling to find a property? Get in touch and we'll help you find your ideal property.