Standout Features
- FOUR BEDROOM TERRACED HOME
- TWO RECEPTION ROOMS
- KITCHEN WITH UTILITY AREA
- GROUND FLOOR CLOAKROOM
- IN NEED OF MODERNISATION
- POPULAR VILLAGE LOCATION
- COUNCIL TAX BAND C
- EPC RATING TBC
Property Description
GUIDE PRICE £275,000 - £300,000 - Four-bedroom terraced home with two reception rooms offering scope for modernisation, located in the popular village of High Halden.
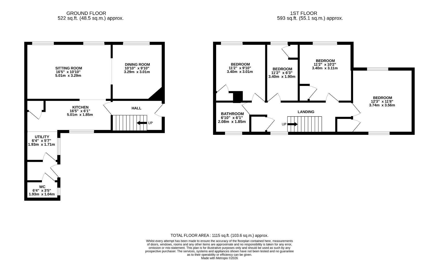
The accommodation offers an entrance hall with stairs to first floor and doorway leading to the kitchen, leading further on to a utility area and ground floor cloakroom with doorway providing access to the rear garden. The kitchen also leads through to a spacious sitting room with dual windows to the front which is open onto the dining room.
The first floor offers three double bedrooms and a single bedroom, all benefitting from built in storage, and the family bathroom with suite comprising of a bath with shower above, pedestal basin and WC.
Externally, the rear garden is laid to lawn with patio area and planted borders. To the front is a further lawn area with pathway to the pavement and an established hedgerow boundary.
Services include mains electricity, drainage and gas central heating.
The property is situated in the popular village of High Halden and offers a variety of local amenities including a well-stocked village store and a popular pub, The Chequers on the Green. The historic town of Tenterden is just a few miles to the south with its busy High Street shops, supermarkets and leisure centre. The surrounding area is well known for its excellent range of schools both in the state and independent sectors including grammar schools for boys and girls. Mainline rail services are available at Headcorn and Ashford including 37 minute High Speed trains from Ashford International along with Eurostar services to the Continent.
The accommodation offers an entrance hall with stairs to first floor and doorway leading to the kitchen, leading further on to a utility area and ground floor cloakroom with doorway providing access to the rear garden. The kitchen also leads through to a spacious sitting room with dual windows to the front which is open onto the dining room.
The first floor offers three double bedrooms and a single bedroom, all benefitting from built in storage, and the family bathroom with suite comprising of a bath with shower above, pedestal basin and WC.
Externally, the rear garden is laid to lawn with patio area and planted borders. To the front is a further lawn area with pathway to the pavement and an established hedgerow boundary.
Services include mains electricity, drainage and gas central heating.
The property is situated in the popular village of High Halden and offers a variety of local amenities including a well-stocked village store and a popular pub, The Chequers on the Green. The historic town of Tenterden is just a few miles to the south with its busy High Street shops, supermarkets and leisure centre. The surrounding area is well known for its excellent range of schools both in the state and independent sectors including grammar schools for boys and girls. Mainline rail services are available at Headcorn and Ashford including 37 minute High Speed trains from Ashford International along with Eurostar services to the Continent.
TENURE – FREEHOLD
COUNCIL TAX BAND – C
EPC RATING - TBC
SERVICES – MAINS GAS, ELECTRICITY, WATER AND DRAINAGE
BROADBAND SPEED – 68 MBPS
MOBILE PHONE COVERAGE – GOOD
FLOOD RISK – VERY LOW
Additional Information
| Tenure: | Freehold |
|---|---|
| Council Tax Band: | C |
Utilities
Broadband:
Cable
Electricity:
Mains Supply
Sewerage:
Mains Supply
Water:
Heating:
Mortgage calculator
Calculate Your Stamp Duty
Results
Stamp Duty To Pay:
Effective Rate:
| Tax Band | % | Taxable Sum | Tax |
|---|
HIGH HALDEN
Want to explore HIGH HALDEN further? Explore our local area guide
Struggling to find a property? Get in touch and we'll help you find your ideal property.