Standout Features

Property Description
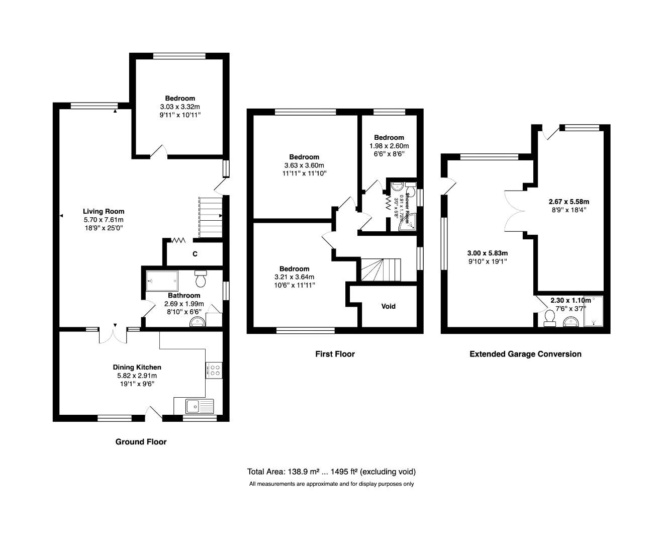
A spacious four-bedroom semi-detached home tucked away in a quiet Stanningley cul-de-sac, offering excellent family space and superb connectivity. Featuring a huge open-plan living area flowing through glass doors into an extended kitchen diner with room for dining, three bedrooms and an ensuite upstairs, plus a ground floor bedroom and bathroom ideal for flexible or multi-generational living. Set on an impressive plot with a large driveway and additional accommodation created from an extended and converted garage. Conveniently located around 0.3 miles from the nearest train station with easy links into Leeds & Bradford!

This neutrally decorated four-bedroom semi-detached house is for sale in a quiet cul-de-sac in Stanningley, ideally suited to families looking for generous space and excellent city connections.

At the heart of the home is a huge open-plan reception room, approximately 25ft long, which flows through to the extended kitchen diner. Stylish internal glass double doors connect the two spaces, allowing light to pass between the rooms while creating a natural flow that works well for everyday living and entertaining. The extension has created a particularly spacious kitchen with plenty of room for dining, making it a sociable hub of the home. The modern, well-equipped kitchen benefits from under-unit lighting, excellent natural light and direct access to the garden.

A particularly useful feature of the home is the ground floor double bedroom, complemented by a contemporary bathroom on the same level. This flexible layout offers a range of possibilities, whether used as a bedroom, playroom or additional reception space, and provides an ideal setup for multi-generational living or for families seeking adaptable accommodation.

Upstairs, there are three further bedrooms. Two are double dormer rooms, one front facing with fitted wardrobes and a ceiling fan, the other garden facing with wall storage and potential to serve as the main bedroom. The fourth bedroom, also front facing, works well as a child’s room or home office and has its own ensuite with W/C, shower and sink.

Externally, the property sits on an impressive plot with a massive driveway providing extensive off street parking. The extended and converted garage has been used by the current vendors as another bedroom, living room and bathroom whilst remaining connected to the main family home.

Stanningley provides nearby schools and parks, with Pudsey and Farsley also close by for local shops, cafés and amenities. The property is around a 0.3 mile walk to the nearest train station, giving convenient rail links into Leeds city centre and beyond, making commuting straightforward. Additional benefits include an EPC rating of C and council tax band C.

Agent’s Note
The property has been extended to the rear and the former garage has been extended and converted to create additional accommodation. These works are understood to have been carried out by the current owners. Prospective purchasers are advised to satisfy themselves regarding any relevant planning permissions and building regulation approvals relating to these alterations.

DINING KITCHEN (5.82m x 2.91m)

LIVING ROOM (7.61m x 5.70m)

BEDROOM (3.32m x 3.03m)

BATHROOM (2.69m x 1.99m)

BEDROOM (3.63m x 3.60m)

BEDROOM (3.64m x 3.21m)

BEDROOM (2.60m x 1.98m)

SHOWER ROOM (1.72m x 0.91m)

GARAGE CONVERSION (5.83m x 3.00m)

GARAGE CONVERSION (5.58m x 2.67m)

GARAGE CONVERSION (2.30m x 1.10m)


Additional Information
Tenure: Freehold
Council Tax Band: C

Rooms
DINING KITCHEN

5.82m x 2.91m (19'1" x 9'6")
LIVING ROOM

7.61m x 5.70m (24'11" x 18'8")
BEDROOM

3.32m x 3.03m (10'10" x 9'11")
BATHROOM

2.69m x 1.99m (8'9" x 6'6")
BEDROOM

3.63m x 3.60m (11'10" x 11'9")
BEDROOM

3.64m x 3.21m (11'11" x 10'6")
BEDROOM

2.60m x 1.98m (8'6" x 6'5")
SHOWER ROOM

1.72m x 0.91m (5'7" x 2'11")
GARAGE CONVERSION

5.83m x 3.00m (19'1" x 9'10")
GARAGE CONVERSION

5.58m x 2.67m (18'3" x 8'9")
GARAGE CONVERSION

2.30m x 1.10m (7'6" x 3'7")

Mortgage calculator

Calculate Your Stamp Duty
£
Results
Stamp Duty To Pay:
Effective Rate:
Tax Band % Taxable Sum Tax

Meadow Park Crescent, Stanningley, Pudsey

Want to explore Meadow Park Crescent, Stanningley, Pudsey further? Explore our local area guide

Struggling to find a property? Get in touch and we'll help you find your ideal property.