4 bedroom House For Sale

£314,950 | Available

4 bedroom House For Sale
or call 01427 616118
Standout Features

Property Description
We offer to the market a modern four bedroom detached property situated in the popular Village of Corringham located on the outskirts of the market town of Gainsborough and also having access to the cathedral city of Lincoln, which are both well served with amenties including Marshalls Yard retail complex, eateries and leisure facilities and highly regarded schools. VIEWING HIGHLY RECOMMENDED.

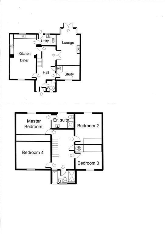
A modern detached four bedroomed property with en suite shower room to the master. Accommodation comprises Entrance Hall, Cloakroom, Sitting Room, Study, spacious Kitchen/Diner and Utility Room, To the first floor are the bedrooms and family Bathroom .There is gas central heating, double glazing and a single garage with rear lawned garden.

ACCOMMODATION

Entrance door leading into:

ENTRANCE HALLWAY

Stairs rising to first floor accommodation and doors in turn giving access to:

LOUNGE (5.71m x 3.30m)

With French doors with windows to either side elevation leading out to the rear garden, feature fireplace and radiator.

PLAY ROOM/STUDY (1.9m x 3.30m)

Double glazed window to the front elevation, radiator and laminate flooring.

KITCHEN DINER (6.40m x 3.00m)

Fitted kitchen comprising wall and base units with complementary work surface, inset sink and drainer, integrated fridge/freezer, dishwasher and oven, double glazed windows to the front and rear elevations, radiator and laminate flooring. Door giving access to:

UTILITY (1.60m x 1.80m)

Fitted with base and wall units and inset sink and drainer, door to the rear elevation giving access out to the rear garden, double glazed window to the rear and laminate flooring.

W.C. (1.50m x 0.7m)

Two piece suite comprising w.c. and wash hand basin.

FIRST FLOOR LANDING

With doors in turn giving access to:

MASTER BEDROOM (3.88m x 2.89m)

Double glazed window to the rear elevation, range of fitted wardrobes and radiator. Door leading into:

EN SUITE (1.60m x 2.01m)

Three piece suite comprising w.c., sink and shower cubicle, double glazed window to the rear elevation, radiator and vinyl flooring.

BEDROOM TWO (3.70m x 3.19m)

Double glazed window to the rear elevation and radiator.

BEDROOM THREE (3.58m x 2.89m)

Double glazed window to the front elevation and radiator.

BEDRDOOM FOUR (2.52m x 2.89m)

Double glazed window to the front elevation and radiator.

BATHROOM (1.74m x 2.01m)

Three piece suite comprising w.c., wash hand basin, bath and separate shower, double glazed window to the front elevation, radiator and vinyl flooring.

EXTERNALLY

A pathway to the front of the property leads to the entrance door and access to the enclosed rear garden which is mainly set to lawn with a gated access to the side of the brick built single garage.

TENURE - Freehold

COUNCIL TAX

Through enquiry of the West Lindsey District Council we have been advised that the property is in Rating Band 'D'

Estate agents operating in the UK are required to conduct Anti-Money Laundering (AML) checks in compliance with the regulations set forth by HM Revenue and Customs (HMRC) for all property transactions. It is mandatory for both buyers and sellers to successfully complete these checks before any property transaction can proceed. Our estate agency uses Coadjute’s Assured Compliance service to facilitate the AML checks. A fee will be charged for each individual AML check conducted


Additional Information
Tenure: Freehold
Council Tax Band: D

Rooms
ACCOMMODATION
Entrance door leading into:
ENTRANCE HALLWAY
Stairs rising to first floor accommodation and doors in turn giving access to:
LOUNGE
With French doors with windows to either side elevation leading out to the rear garden, feature fireplace and radiator.
5.71m x 3.30m (18'8" x 10'9" )
PLAY ROOM/STUDY
Double glazed window to the front elevation, radiator and laminate flooring.
1.9m x 3.30m (6'2" x 10'9" )
KITCHEN DINER
Fitted kitchen comprising wall and base units with complementary work surface, inset sink and drainer, integrated fridge/freezer, dishwasher and oven, double glazed windows to the front and rear elevations, radiator and laminate flooring. Door giving access to:
6.40m x 3.00m (20'11" x 9'10" )
UTILITY
Fitted with base and wall units and inset sink and drainer, door to the rear elevation giving access out to the rear garden, double glazed window to the rear and laminate flooring.
1.60m x 1.80m (5'2" x 5'10" )
W.C.
Two piece suite comprising w.c. and wash hand basin.
1.50m x 0.7m (4'11" x 2'3" )
FIRST FLOOR LANDING
With doors in turn giving access to:
MASTER BEDROOM
Double glazed window to the rear elevation, range of fitted wardrobes and radiator. Door leading into:
3.88m x 2.89m (12'8" x 9'5" )
EN SUITE
Three piece suite comprising w.c., sink and shower cubicle, double glazed window to the rear elevation, radiator and vinyl flooring.
1.60m x 2.01m (5'2" x 6'7" )
BEDROOM TWO
Double glazed window to the rear elevation and radiator.
3.70m x 3.19m (12'1" x 10'5" )
BEDROOM THREE
Double glazed window to the front elevation and radiator.
3.58m x 2.89m (11'8" x 9'5" )
BEDRDOOM FOUR
Double glazed window to the front elevation and radiator.
2.52m x 2.89m (8'3" x 9'5" )
BATHROOM
Three piece suite comprising w.c., wash hand basin, bath and separate shower, double glazed window to the front elevation, radiator and vinyl flooring.
1.74m x 2.01m (5'8" x 6'7" )
EXTERNALLY
A pathway to the front of the property leads to the entrance door and access to the enclosed rear garden which is mainly set to lawn with a gated access to the side of the brick built single garage.
TENURE - Freehold

COUNCIL TAX
Through enquiry of the West Lindsey District Council we have been advised that the property is in Rating Band 'D'

Utilities
Electricity:
Mains Supply
Sewerage:
Mains Supply
Water:
Heating:
Gas Central

Mortgage calculator

Calculate Your Stamp Duty
£
Results
Stamp Duty To Pay:
Effective Rate:
Tax Band % Taxable Sum Tax

Nicholas Way, Corringham, Gainsborough, DN21 5QE

Want to explore Nicholas Way, Corringham, Gainsborough, DN21 5QE further? Explore our local area guide

Struggling to find a property? Get in touch and we'll help you find your ideal property.