Standout Features
- Beautifully renovated terraced house
- Stunning elevated sea views
- Four spacious bedrooms and two modern bathrooms
- Contemporary kitchen
- Two generous reception rooms
- Enclosed rear patio
- Recently renovated to a high standard
- Currently operating as a successful holiday let
- No onward chain
- A rare opportunity to own a permanent home or investment
Property Description
Hunters are delighted to present this beautifully renovated terraced home on the ever-popular Princess Street in Scarborough, just moments from the seafront and enjoying stunning harbour and sea views. Offered with no onward chain, it presents an excellent opportunity for both families and investors.
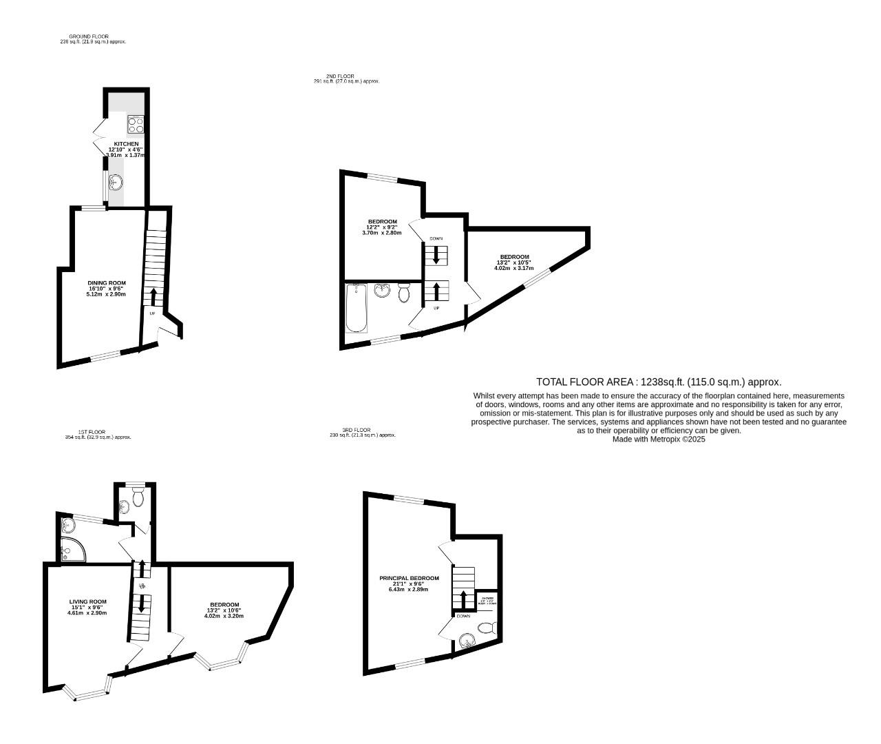
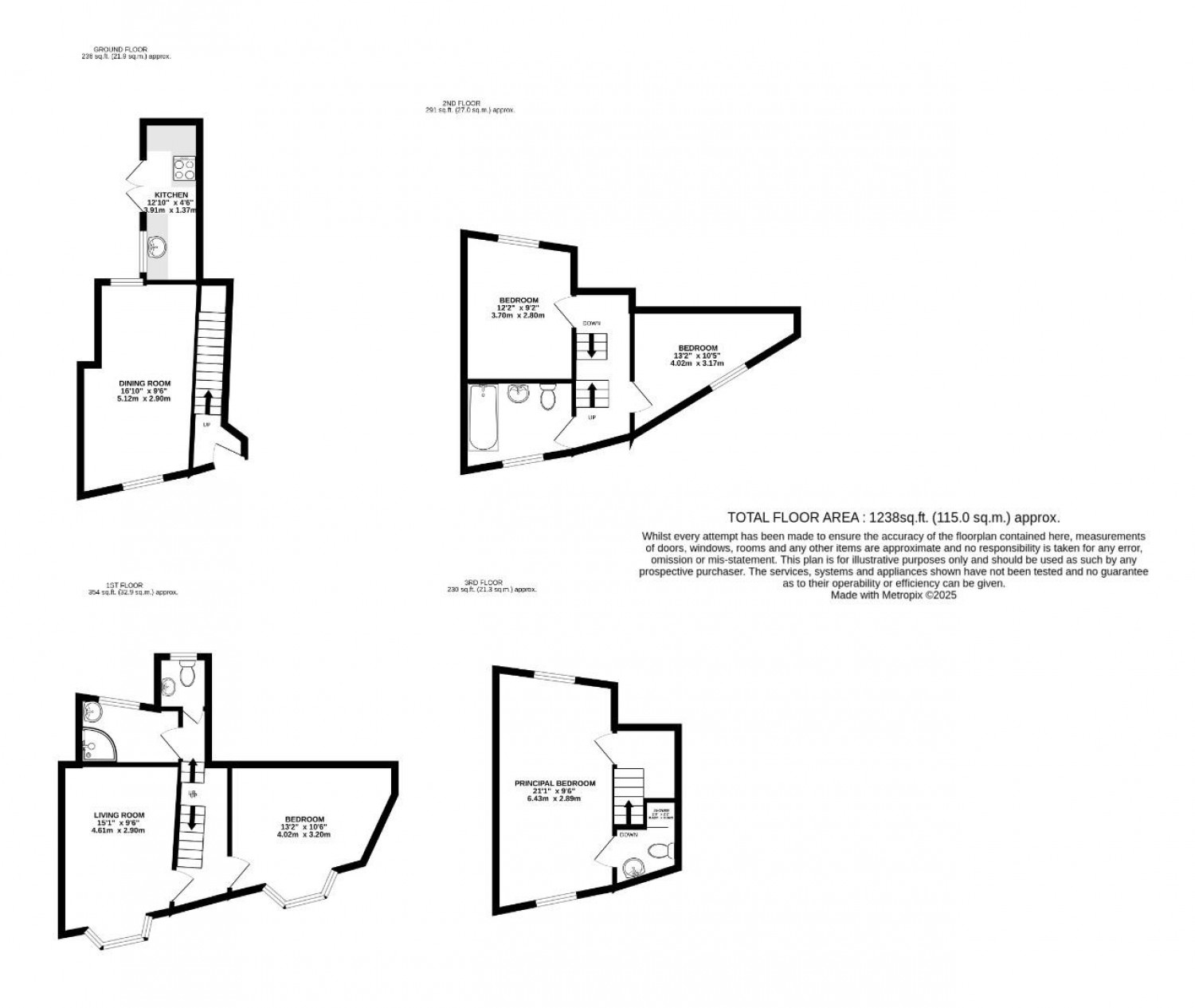
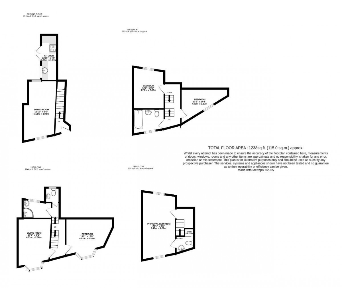
The accommodation includes a modern kitchen, two spacious reception rooms, a master bedroom with en-suite, three further well-proportioned bedrooms and a contemporary bathroom. Several rooms benefit from elevated views over Scarborough Harbour, while an enclosed rear patio provides a private outdoor space.
Finished to a high standard throughout and currently operating as a successful holiday let, this impressive coastal home offers both lifestyle appeal and strong investment potential.
This property is for sale by the Modern Method of Auction, meaning the buyer and seller are to Complete within 56 days (the "Reservation Period"). Interested parties personal data will be shared with the Auctioneer (iamsold).
If considering buying with a mortgage, inspect and consider the property carefully with your lender before bidding.
A Buyer Information Pack is provided. The winning bidder will pay £300.00 including VAT for this pack which you must view before bidding.
The buyer signs a Reservation Agreement and makes payment of a non-refundable Reservation Fee of 4.50% of the purchase price including VAT, subject to a minimum of £6,600.00 including VAT. This is paid to reserve the property to the buyer during the Reservation Period and is paid in addition to the purchase price. This is considered within calculations for Stamp Duty Land Tax.
Services may be recommended by the Agent or Auctioneer in which they will receive payment from the service provider if the service is taken. Payment varies but will be no more than £450.00. These services are optional.
The accommodation includes a modern kitchen, two spacious reception rooms, a master bedroom with en-suite, three further well-proportioned bedrooms and a contemporary bathroom. Several rooms benefit from elevated views over Scarborough Harbour, while an enclosed rear patio provides a private outdoor space.
Finished to a high standard throughout and currently operating as a successful holiday let, this impressive coastal home offers both lifestyle appeal and strong investment potential.
This property is for sale by the Modern Method of Auction, meaning the buyer and seller are to Complete within 56 days (the "Reservation Period"). Interested parties personal data will be shared with the Auctioneer (iamsold).
If considering buying with a mortgage, inspect and consider the property carefully with your lender before bidding.
A Buyer Information Pack is provided. The winning bidder will pay £300.00 including VAT for this pack which you must view before bidding.
The buyer signs a Reservation Agreement and makes payment of a non-refundable Reservation Fee of 4.50% of the purchase price including VAT, subject to a minimum of £6,600.00 including VAT. This is paid to reserve the property to the buyer during the Reservation Period and is paid in addition to the purchase price. This is considered within calculations for Stamp Duty Land Tax.
Services may be recommended by the Agent or Auctioneer in which they will receive payment from the service provider if the service is taken. Payment varies but will be no more than £450.00. These services are optional.
Material Information Scarborough
Tenure Type; Freehold
Council Tax Banding; Exempt
Agent Note
To date these details have not been approved by the vendor and therefore should not be relied upon.
HMRC Disclaimer - Scarborough
Should you wish to proceed with an offer on this property we are obliged by HMRC to conduct mandatory Anti Money Laundering Checks. We outsource these checks to our compliance partners at Kotini and they charge a fee for this service.
Additional Information
| Tenure: | Freehold |
|---|---|
| Council Tax Band: | E |
Rooms
Material Information Scarborough
Tenure Type; FreeholdCouncil Tax Banding; Exempt
Agent Note
To date these details have not been approved by the vendor and therefore should not be relied upon.HMRC Disclaimer - Scarborough
Should you wish to proceed with an offer on this property we are obliged by HMRC to conduct mandatory Anti Money Laundering Checks. We outsource these checks to our compliance partners at Kotini and they charge a fee for this service.Utilities
Electricity:
Mains Supply
Water:
Heating:
Gas Central
Mortgage calculator
Calculate Your Stamp Duty
Results
Stamp Duty To Pay:
Effective Rate:
| Tax Band | % | Taxable Sum | Tax |
|---|
Princess Street, Scarborough
Want to explore Princess Street, Scarborough further? Explore our local area guide
Struggling to find a property? Get in touch and we'll help you find your ideal property.