Standout Features

Property Description
Situated in the highly desirable Tranmere Park area of Guiseley, this well-loved family home offers a rare opportunity to acquire a property with exceptional potential on a particularly generous plot. Ready for modernisation, it presents exciting scope to extend (subject to the necessary consents) and create a superb long-term family home.

The property sits within a substantial plot and benefits from a delightful rear garden with a prized southerly aspect, flooding the space with natural light throughout the day. The expansive garden offers excellent versatility for families, keen gardeners or those looking to increase the existing accommodation.

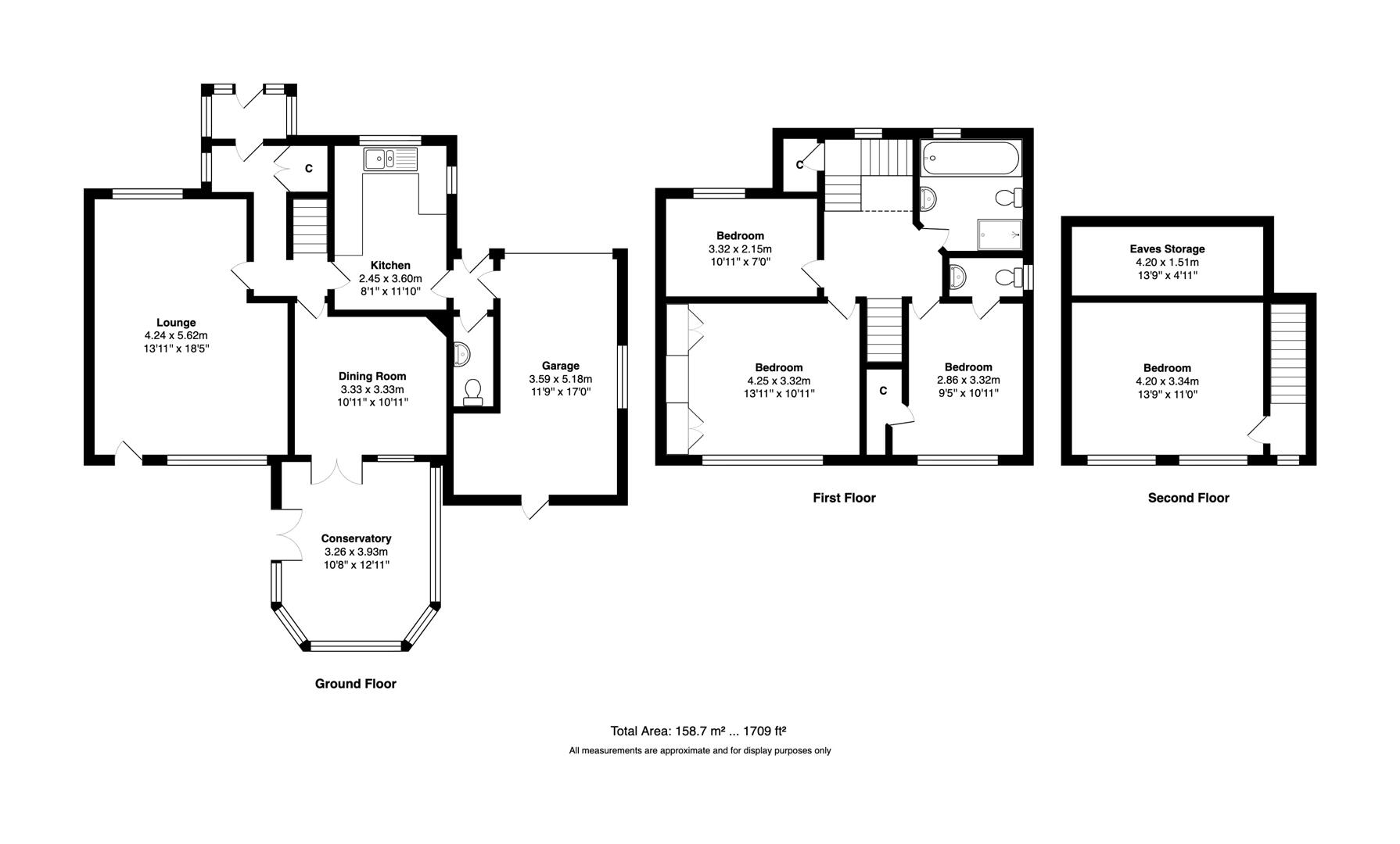
The accommodation is well proportioned and practical in layout. An entrance porch leads into the main hallway, providing access to the principal ground floor rooms. The lounge offers a comfortable space to relax, while the separate dining room is ideal for family life and entertaining. To the rear, a conservatory enjoys views over the sunny garden. The kitchen, guest WC and integral garage complete the ground floor.

To the first floor are three bedrooms, including one with an en-suite, together with the house bathroom. A loft room, accessed via a fixed staircase, provides additional flexible space with useful eaves storage — ideal for a home office, hobbies or occasional guests.

Well positioned for highly regarded schools, local amenities and Guiseley train station, this is an excellent opportunity to secure a spacious home in one of the area’s most sought-after locations.

Additional Info

Offer Acceptance & AML Regulations

Under the Money Laundering, Terrorist Financing & Transfer of Funds Regulations 2017, we are required to obtain proof of the source of funds for the purchase, as well as identification documents for all prospective buyers. We kindly ask buyers to assist with this process to avoid any delays in agreeing a sale.

A fee of £42 (inclusive of VAT) per named buyer is payable by the successful purchaser(s). This fee covers the money laundering checks carried out by SmartSearch, the firm that administers our ID verification. Please note that the property will not be marked as sold subject to contract until all required identification has been provided and AML checks have been satisfactorily completed.

________________________________________

Mortgage Advice

We are pleased to offer mortgage advice through our partnership with CS Mortgage Solutions. To arrange an appointment, please contact the branch and we will organise for an advisor to help you find the most suitable mortgage for your circumstances.
The initial consultation is free of charge and without obligation. A fee may be payable should you choose to proceed with their services.

________________________________________

Please Note

The extent of the property and its boundaries are subject to confirmation by inspection of the title deeds. All measurements provided in these particulars are approximate and intended for guidance only. Fixtures, fittings and appliances have not been tested, and no warranty can be given regarding their condition or functionality. Internal photographs are supplied for general information and should not be taken to imply that any specific item is included in the sale.


Additional Information
Tenure: Freehold
Council Tax Band: F

Rooms
Additional Info
Offer Acceptance & AML Regulations

Under the Money Laundering, Terrorist Financing & Transfer of Funds Regulations 2017, we are required to obtain proof of the source of funds for the purchase, as well as identification documents for all prospective buyers. We kindly ask buyers to assist with this process to avoid any delays in agreeing a sale.

A fee of £42 (inclusive of VAT) per named buyer is payable by the successful purchaser(s). This fee covers the money laundering checks carried out by SmartSearch, the firm that administers our ID verification. Please note that the property will not be marked as sold subject to contract until all required identification has been provided and AML checks have been satisfactorily completed.

________________________________________

Mortgage Advice

We are pleased to offer mortgage advice through our partnership with CS Mortgage Solutions. To arrange an appointment, please contact the branch and we will organise for an advisor to help you find the most suitable mortgage for your circumstances.
The initial consultation is free of charge and without obligation. A fee may be payable should you choose to proceed with their services.

________________________________________

Please Note

The extent of the property and its boundaries are subject to confirmation by inspection of the title deeds. All measurements provided in these particulars are approximate and intended for guidance only. Fixtures, fittings and appliances have not been tested, and no warranty can be given regarding their condition or functionality. Internal photographs are supplied for general information and should not be taken to imply that any specific item is included in the sale.

Mortgage calculator

Calculate Your Stamp Duty
£
Results
Stamp Duty To Pay:
Effective Rate:
Tax Band % Taxable Sum Tax

Southway, Guiseley, Leeds

Want to explore Southway, Guiseley, Leeds further? Explore our local area guide

Struggling to find a property? Get in touch and we'll help you find your ideal property.