Spindlewood End, Ashford

Offers in excess of £450,000 | Available

4 bedroom House For Sale
Total Size: 1357 SQ FT
or call 01233 613613
Standout Features

Property Description
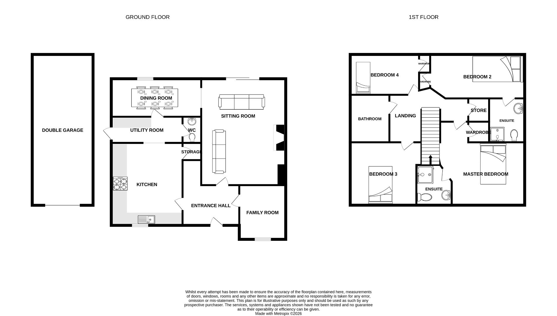
Set within an exclusive and highly regarded residential development, this beautifully presented four-bedroom detached family home offers generous proportions, refined living spaces, and an excellent layout perfectly suited to modern family life.

Approached via a private driveway with access to an integral garage, the property provides ample off-road parking and an immediate sense of arrival. Inside, the ground floor is both welcoming and versatile, featuring a spacious and light-filled living room, an elegant separate dining room ideal for entertaining, and a well-appointed kitchen that flows seamlessly into a practical utility room and ground floor W/C. A further reception room offers flexibility and is ideally suited for use as a home office, study, or playroom.

The first floor continues to impress, with four well-proportioned bedrooms. The principal bedroom and second bedroom both benefit from stylish en-suite shower rooms, while the remaining bedrooms are served by a contemporary family bathroom, providing comfort and convenience for all members of the household.

Externally, the enclosed rear garden enjoys a sunny aspect and a good degree of privacy, creating an ideal space for outdoor dining, entertaining, or relaxed family time throughout the warmer months.

This is a superb opportunity to acquire a high-quality family home in one of Ashford’s most desirable residential locations.

Godinton Park is widely regarded as one of Ashford’s most sought-after residential developments, prized for its peaceful surroundings, attractive green spaces, and strong sense of community. The area is particularly popular with families, thanks to its safe environment and excellent local amenities.

A range of well-regarded primary and secondary schools are located nearby, making the area an ideal choice for families with children of all ages. The development also benefits from a children’s play park within easy walking distance, providing a fantastic outdoor space for younger residents to enjoy.

Godinton Park offers convenient access to Ashford town centre, with its wide selection of shops, restaurants, leisure facilities, and the International Station, providing high-speed rail services to London. Excellent road links via the M20 further enhance connectivity to surrounding towns and the Kent countryside.

Combining suburban tranquillity with outstanding convenience, Godinton Park offers an exceptional lifestyle and remains one of Ashford’s most desirable places to call home.


Additional Information
Tenure: Freehold
Council Tax Band: E

Utilities
Electricity:
Mains Supply
Heating:
Gas Central

Mortgage calculator

Calculate Your Stamp Duty
£
Results
Stamp Duty To Pay:
Effective Rate:
Tax Band % Taxable Sum Tax

Spindlewood End, Ashford

Want to explore Spindlewood End, Ashford further? Explore our local area guide

Struggling to find a property? Get in touch and we'll help you find your ideal property.