4 bedroom House For Sale

£440,000 | Available

4 bedroom House For Sale
Total Size: 1033 SQ FT
or call 01454 313575
Standout Features

Property Description
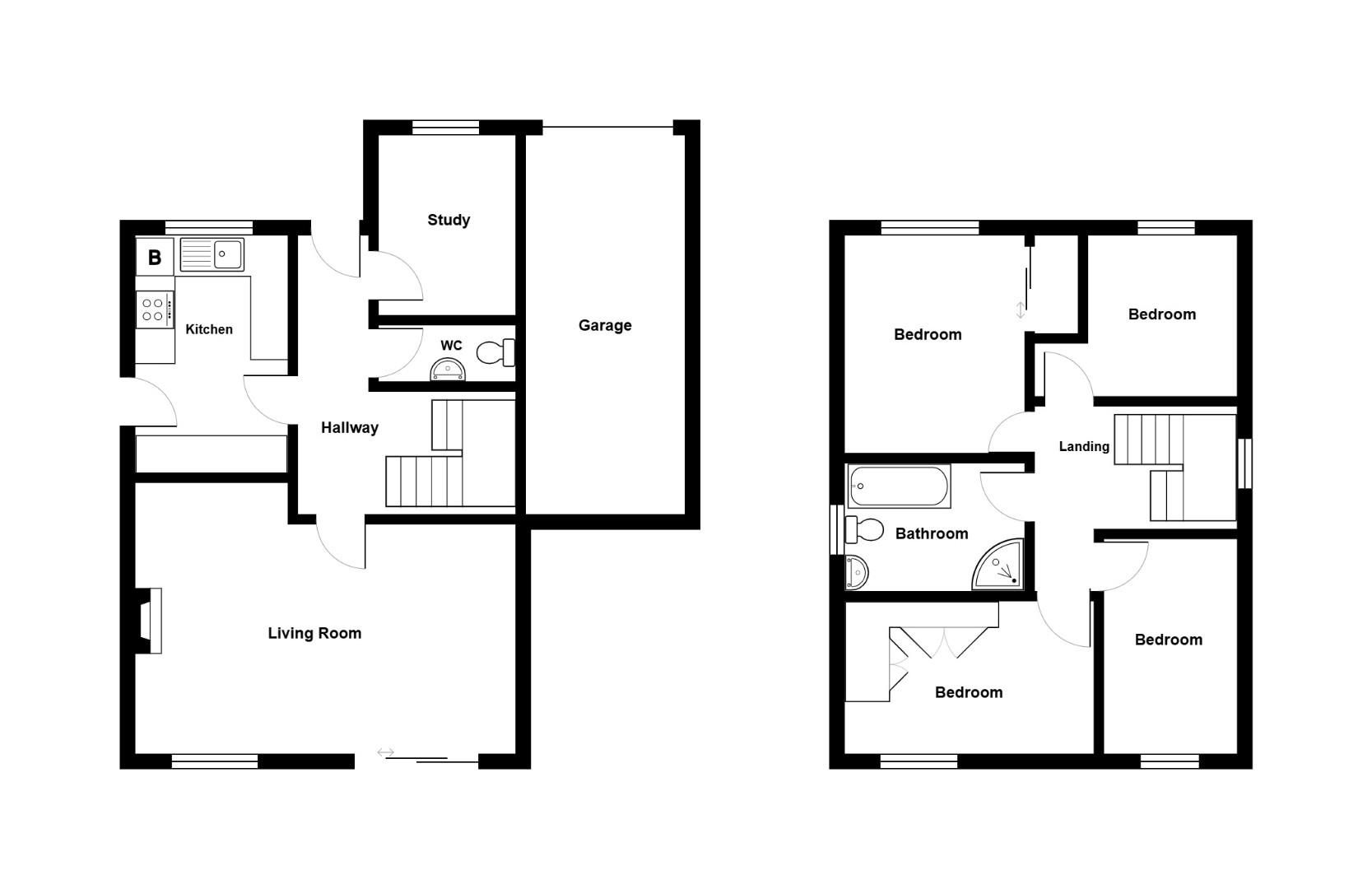
Nestled in the tranquil cul-de-sac of Templar Road in Yate, Bristol, this charming four-bedroom house presents an excellent opportunity for those seeking a family home with potential. Built in 1985 and owned from new, the property is ready for a new chapter, requiring some cosmetic updating to truly make it shine.

Upon entering, you are greeted by a welcoming entrance hall that leads to a cloakroom, providing convenience for guests. The ground floor boasts a versatile dining/study area, perfect for home working or family meals, alongside a fitted kitchen, with a generous lounge/diner, ideal for entertaining or relaxing with loved ones.

The first floor features four well-proportioned bedrooms, offering ample space for family or guests. A modern white bathroom completes this level, ensuring comfort and functionality for everyday living.

One of the standout features is the large south-facing rear and side garden, which offers a delightful outdoor space for gardening, play, or simply enjoying the sunshine.

Additionally, the house includes a garage and parking, adding to the convenience of this lovely home. Located in a quiet and sought-after area, this property is free from any upward chain, making it an attractive option for buyers looking to move in swiftly.

In summary, this four-bedroom house on Templar Road is a fantastic opportunity for those looking to create their ideal home in a peaceful setting. With its spacious layout, potential for personalisation, and desirable location, it is not to be missed.

Entrance Hallway

Double glazed door, radiator, stairs to 1st floor with storage cupboard under, doors into

Cloakroom

White suite comprising WC, wash hand basin, tiled walls and flooring, extractor fan, radiator.

Lounge/Diner (5.82m max x 4.17m - 3.51m)

Double glazed window and double glazed patio door to the rear, Tv point, feature fire in wooden surround, two radiators.

Study/Dining Room (2.77m x 2.08m)

Double glazed window to the front, radiator.

Kitchen (3.63m x 2.34m)

Double glazed window to the front, range of wall, drawer and base units with work surface over, stainless steel sink unit, built in electric oven and hob with stainless steel splashback and cooker hood over, integrated appliances that include under counter fridge and freezer, plumbing for washing machine and space for tumble dryer, wall mounted gas boiler, tiled walls and tiled flooring, ceiling spotlights, double glazed door to the side.

First Floor Landing

Double glazed window to the side, access to part boarded loft space, doors into

Bedroom One (3.68m x 2.49m)

Double glazed window to the rear, radiator, fitted wardrobes, drawers and over bed storage.

Bedroom Two (3.30m x 2.74m)

Double glazed window to the front, built in wardrobes, radiator.

Bedroom Three (3.35m x 2.03m)

Double glazed window to the rear, radiator.

Bedroom Four (2.57m x 2.26m)

Double glazed window to the front, radiator.

Bathroom (2.69m x 1.98m)

Double glazed window to the side, white suite comprising, panelled bath, tiled shower cubicle, vanity wash hand basin with storage cupboard under and concealed cistern WC with work surface over, part tiled walls, ceiling spotlights, heated towel rail.

Outside

The front is laid to hard standing parking for several vehicles.
The enclosed southerly facing, larger than average rear and side garden, laid mainly to lawn with mature trees, shrub and bushes, two patio areas, garden shed, gated access leading to the front.

Garage (5.28m x 2.39m)

Up and over door, light and power, garden tap, wall and base unit with work surface over, double glazed door to the rear garden.

Agents Note

“Estate agents operating in the UK are required to conduct Anti-Money Laundering (AML) checks in compliance with the regulations set forth by HM Revenue and Customs (HMRC) for all property transactions. It is mandatory for both buyers and sellers to successfully complete these checks before any property transaction can proceed. Our estate agency uses Coadjute’s Assured Compliance service to facilitate the AML checks. A fee will be charged for each individual AML check conducted’’


Additional Information
Tenure: Freehold
Council Tax Band: D

Rooms
Entrance Hallway
Double glazed door, radiator, stairs to 1st floor with storage cupboard under, doors into
Cloakroom
White suite comprising WC, wash hand basin, tiled walls and flooring, extractor fan, radiator.
Lounge/Diner
Double glazed window and double glazed patio door to the rear, Tv point, feature fire in wooden surround, two radiators.
5.82m max x 4.17m - 3.51m (19'1" max x 13'8" - 11'
Study/Dining Room
Double glazed window to the front, radiator.
2.77m x 2.08m (9'1" x 6'10")
Kitchen
Double glazed window to the front, range of wall, drawer and base units with work surface over, stainless steel sink unit, built in electric oven and hob with stainless steel splashback and cooker hood over, integrated appliances that include under counter fridge and freezer, plumbing for washing machine and space for tumble dryer, wall mounted gas boiler, tiled walls and tiled flooring, ceiling spotlights, double glazed door to the side.
3.63m x 2.34m (11'11" x 7'8")
First Floor Landing
Double glazed window to the side, access to part boarded loft space, doors into
Bedroom One
Double glazed window to the rear, radiator, fitted wardrobes, drawers and over bed storage.
3.68m x 2.49m (12'1" x 8'2")
Bedroom Two
Double glazed window to the front, built in wardrobes, radiator.
3.30m x 2.74m (10'10" x 9')
Bedroom Three
Double glazed window to the rear, radiator.
3.35m x 2.03m (11' x 6'8")
Bedroom Four
Double glazed window to the front, radiator.
2.57m x 2.26m (8'5" x 7'5")
Bathroom
Double glazed window to the side, white suite comprising, panelled bath, tiled shower cubicle, vanity wash hand basin with storage cupboard under and concealed cistern WC with work surface over, part tiled walls, ceiling spotlights, heated towel rail.
2.69m x 1.98m (8'10" x 6'6")
Outside
The front is laid to hard standing parking for several vehicles.
The enclosed southerly facing, larger than average rear and side garden, laid mainly to lawn with mature trees, shrub and bushes, two patio areas, garden shed, gated access leading to the front.
Garage
Up and over door, light and power, garden tap, wall and base unit with work surface over, double glazed door to the rear garden.
5.28m x 2.39m (17'4" x 7'10")
Agents Note
“Estate agents operating in the UK are required to conduct Anti-Money Laundering (AML) checks in compliance with the regulations set forth by HM Revenue and Customs (HMRC) for all property transactions. It is mandatory for both buyers and sellers to successfully complete these checks before any property transaction can proceed. Our estate agency uses Coadjute’s Assured Compliance service to facilitate the AML checks. A fee will be charged for each individual AML check conducted’’

Mortgage calculator

Calculate Your Stamp Duty
£
Results
Stamp Duty To Pay:
Effective Rate:
Tax Band % Taxable Sum Tax

Templar Road, Yate, Bristol

Want to explore Templar Road, Yate, Bristol further? Explore our local area guide

Struggling to find a property? Get in touch and we'll help you find your ideal property.