Standout Features
- Four-bedroom semi-detached family home
- Close to 2,100 sq.ft. of internal living space
- Three versatile reception rooms
- Private driveway with parking for 2â€"3 vehicles
- Scope to extend to the rear and loft (STPP)
- Kitchen/breakfast room overlooking the garden
- Ground floor shower room and separate utility room
Property Description
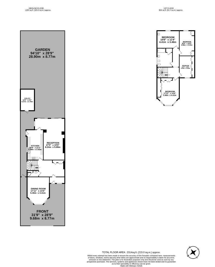
Located on the prestigious The Ridgeway, this impressive four-bedroom semi-detached home extends to approximately 2,099 sq ft (195 sq m), offering expansive accommodation arranged over two floors. With a 67ft rear garden and a private driveway for multiple vehicles, the property presents an exceptional opportunity for families seeking space now, with further scope to extend (STPP).
The ground floor is arranged around a generous entrance hall, leading to three well-proportioned reception rooms that provide flexible living and entertaining space. A bright kitchen/breakfast room overlooks the garden and offers ample cabinetry and preparation space, complemented by a separate utility room and a ground floor shower room.
Upstairs, the first floor comprises four spacious double bedrooms, including two large bay-fronted rooms with built-in storage. A family bathroom serves this level, with potential to reconfigure or enhance the layout subject to the usual consents.
Ideally positioned within easy reach of Golders Green Underground Station (Northern Line) and the vibrant amenities of Golders Green Road, the home also benefits from convenient access to major road links including the A1 and M1. Combining generous proportions, future potential, and a sought-after address, this is a superb long-term family home opportunity.
The ground floor is arranged around a generous entrance hall, leading to three well-proportioned reception rooms that provide flexible living and entertaining space. A bright kitchen/breakfast room overlooks the garden and offers ample cabinetry and preparation space, complemented by a separate utility room and a ground floor shower room.
Upstairs, the first floor comprises four spacious double bedrooms, including two large bay-fronted rooms with built-in storage. A family bathroom serves this level, with potential to reconfigure or enhance the layout subject to the usual consents.
Ideally positioned within easy reach of Golders Green Underground Station (Northern Line) and the vibrant amenities of Golders Green Road, the home also benefits from convenient access to major road links including the A1 and M1. Combining generous proportions, future potential, and a sought-after address, this is a superb long-term family home opportunity.
Additional Information
| Tenure: | Freehold |
|---|
Mortgage calculator
Calculate Your Stamp Duty
Results
Stamp Duty To Pay:
Effective Rate:
| Tax Band | % | Taxable Sum | Tax |
|---|
The Ridgeway, Golders Green, London, NW11
Want to explore The Ridgeway, Golders Green, London, NW11 further? Explore our local area guide
Struggling to find a property? Get in touch and we'll help you find your ideal property.