4 bedroom House For Sale

Guide Price £695,000 | Available

4 bedroom House For Sale
Total Size: 2065 SQ FT
or call 01904 750555
Standout Features

Property Description
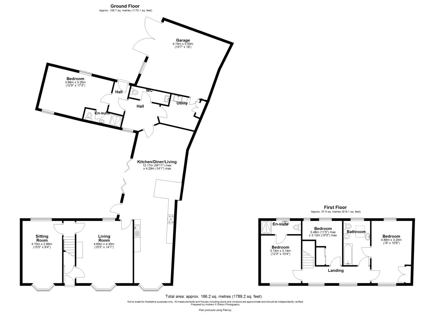
EXTENDED PERIOD PROPERTY IN THE HEART OF POPULAR VILLAGE - STRENSALL CONSERVATION AREA - IMMACULATELY PRESENTED THROUGHOUT - 4 BEDROOMS - 3 x ENSUITE FACILITIES - STUNNING 39FT KITCHEN DINER - LARGE GARAGE WITH DRIVEWAY TO THE REAR - VIEWINGS ENCOURAGED - EPC RATING C - COUNCIL TAX BAND E

Property Description

A stunning detached period home in the heart of Strensall, beautifully finished and approximately 7 miles from York.

This charming period home combines timeless character with a contemporary finish, offering generous and adaptable living spaces designed for modern family life and entertaining.

The heart of the home is a 39ft open-plan kitchen, dining and living space, fitted with Neff cooking appliances and Trilium worktops. This flows into a relaxed and cosy lounge, all set over oak flooring. These spaces feature two wood-burning stoves, which add warmth and create an inviting focal point to each room. Bi-fold doors open directly onto a west-facing walled courtyard garden, perfect for entertaining and enjoying the evening sun.

The ground floor also offers a versatile bedroom with shower room and exposed timber beams. With its separate entrance, this space has been previously used as a successful Airbnb and would also be ideal as a guest suite, private office or multigenerational space. The ground floor also features a well-appointed utility room with ample storage and a separate WC.

To the first floor, the home offers three well-proportioned bedrooms, including a principal bedroom with Jack-and-Jill access to the family bathroom and a second bedroom with its own en-suite. A spacious garage and gravel driveway complete this exceptional home.

The house is situated in the heart of the conservation area of Strensall, a popular and well- served village which is approximately 7 miles north of York. Enjoying a central location, the house is nestled in the hub of the village between close by local amenities including 2 pubs, doctors’ surgery, fish and chip shop, vets, chemist, hairdresser, dentist and a Tesco Express convenience store. The wider village also has the benefits of a filling station with Post Office counter, well-regarded
Primary School (Ofsted Good) feeding Huntington Secondary (Ofsted Outstanding) and a superb golf course.

A truly must-see property, offering charm, flexibility, and a lifestyle few village homes can match.

Key Features

- Detached period home in Strensall, approx. 7 miles from York
- 39ft open-plan kitchen / dining / living space
- Separate lounge with wood-burning stove
- Neff appliances and Trilium worktops
- Bi-fold doors to west-facing walled courtyard garden
- Four Bedrooms including a flexible ground floor bedroom - three of which have ensuite facilities
- Garage and a gravel driveway
- Regular bus service and excellent local amenities

Anti Money Laundering Regulations

By law, we are required to conduct anti-money laundering checks on all potential buyers and sellers, and we take this responsibility very seriously. In line with HMRC guidelines, our trusted partner, Coadjute, will securely manage these checks on our behalf. Once an offer is accepted (subject to contract), Coadjute will send a secure link for you to complete the biometric checks electronically. A non-refundable fee of £45 + VAT per person will apply for these checks, and Coadjute will handle the payment for this service. These anti-money laundering checks must be completed before we can send the memorandum of sale to the solicitors to confirm the sale. Please contact the office if you have any questions in relation to this.

Disclaimer.

These particulars are intended to give a fair and reliable description of the property but no responsibility for any inaccuracy or error can be accepted and do not constitute an offer or contract. We have not tested any services or appliances (including central heating if fitted) referred to in these particulars and the purchasers are advised to satisfy themselves as to the working order and condition. If a property is unoccupied at any time there may be reconnection charges for any switched off/disconnected or drained services or appliances - All measurements are approximate. If you are thinking of selling your home or just curious to discover the value of your property, Hunters would be pleased to provide free, no obligation sales and marketing advice. Even if your home is outside the area covered by our local offices we can arrange a Market Appraisal through our national network of Hunters estate agents.

Agents Note

Please be aware the courtyard pictures have been supplied by the seller which are from the summer 2025 and show the outside space in full bloom.


Additional Information
Tenure: Freehold
Council Tax Band: E

Rooms
Property Description
A stunning detached period home in the heart of Strensall, beautifully finished and approximately 7 miles from York.

This charming period home combines timeless character with a contemporary finish, offering generous and adaptable living spaces designed for modern family life and entertaining.

The heart of the home is a 39ft open-plan kitchen, dining and living space, fitted with Neff cooking appliances and Trilium worktops. This flows into a relaxed and cosy lounge, all set over oak flooring. These spaces feature two wood-burning stoves, which add warmth and create an inviting focal point to each room. Bi-fold doors open directly onto a west-facing walled courtyard garden, perfect for entertaining and enjoying the evening sun.

The ground floor also offers a versatile bedroom with shower room and exposed timber beams. With its separate entrance, this space has been previously used as a successful Airbnb and would also be ideal as a guest suite, private office or multigenerational space. The ground floor also features a well-appointed utility room with ample storage and a separate WC.

To the first floor, the home offers three well-proportioned bedrooms, including a principal bedroom with Jack-and-Jill access to the family bathroom and a second bedroom with its own en-suite. A spacious garage and gravel driveway complete this exceptional home.

The house is situated in the heart of the conservation area of Strensall, a popular and well- served village which is approximately 7 miles north of York. Enjoying a central location, the house is nestled in the hub of the village between close by local amenities including 2 pubs, doctors’ surgery, fish and chip shop, vets, chemist, hairdresser, dentist and a Tesco Express convenience store. The wider village also has the benefits of a filling station with Post Office counter, well-regarded
Primary School (Ofsted Good) feeding Huntington Secondary (Ofsted Outstanding) and a superb golf course.

A truly must-see property, offering charm, flexibility, and a lifestyle few village homes can match.
Key Features
- Detached period home in Strensall, approx. 7 miles from York
- 39ft open-plan kitchen / dining / living space
- Separate lounge with wood-burning stove
- Neff appliances and Trilium worktops
- Bi-fold doors to west-facing walled courtyard garden
- Four Bedrooms including a flexible ground floor bedroom - three of which have ensuite facilities
- Garage and a gravel driveway
- Regular bus service and excellent local amenities
Anti Money Laundering Regulations
By law, we are required to conduct anti-money laundering checks on all potential buyers and sellers, and we take this responsibility very seriously. In line with HMRC guidelines, our trusted partner, Coadjute, will securely manage these checks on our behalf. Once an offer is accepted (subject to contract), Coadjute will send a secure link for you to complete the biometric checks electronically. A non-refundable fee of £45 + VAT per person will apply for these checks, and Coadjute will handle the payment for this service. These anti-money laundering checks must be completed before we can send the memorandum of sale to the solicitors to confirm the sale. Please contact the office if you have any questions in relation to this.
Disclaimer.
These particulars are intended to give a fair and reliable description of the property but no responsibility for any inaccuracy or error can be accepted and do not constitute an offer or contract. We have not tested any services or appliances (including central heating if fitted) referred to in these particulars and the purchasers are advised to satisfy themselves as to the working order and condition. If a property is unoccupied at any time there may be reconnection charges for any switched off/disconnected or drained services or appliances - All measurements are approximate. If you are thinking of selling your home or just curious to discover the value of your property, Hunters would be pleased to provide free, no obligation sales and marketing advice. Even if your home is outside the area covered by our local offices we can arrange a Market Appraisal through our national network of Hunters estate agents.
Agents Note
Please be aware the courtyard pictures have been supplied by the seller which are from the summer 2025 and show the outside space in full bloom.

Utilities
Broadband:
Fibre to Cabinet
Electricity:
Mains Supply
Sewerage:
Mains Supply
Water:
Heating:
Gas Central

Mortgage calculator

Calculate Your Stamp Duty
£
Results
Stamp Duty To Pay:
Effective Rate:
Tax Band % Taxable Sum Tax

The Village, Strensall, York

Want to explore The Village, Strensall, York further? Explore our local area guide

Struggling to find a property? Get in touch and we'll help you find your ideal property.