Town Street, Rodley, Leeds

Offers over £395,000 | Available

4 bedroom House For Sale
or call 0113 257 6198
Standout Features

Property Description
Calling ALL families & property developers! This unique DETACHED residence was once TWO semi-detached homes, now offering a SUBSTANITAL FOUR-bedroom accommodation. A true BLANK CANVAS with generous room sizes, OFF-STREET parking and elevated VIEWS toward Rodley canal, its ideal for anyone looking to create their dream home!

Welcome to this SUBSTANTIAL, detached FOUR-bedroom house, brimming with potential and waiting for the right family, investor or property developer to create their dream home. This sizeable property was originally TWO Semi-detached houses, now seamlessly combined into a generous ONE-OF-A-KIND family home.

Step inside to discover a BLANK CANVAS of neutrally decorated rooms, ready for you to stamp your own style. The ground floor offers two areas for hosting, each with their own unique features. The main LIVING ROOM is a massive space, complete with an electric fireplace and French doors that open out to the garden patio. The second is currently used as a DINING AREA, offers access to the first floor and cellar and offers the flexibility to be separated from the kitchen, depending on your vision.

The OPEN-PLAN KTICHEN DINER is a home cook's delight with a Rangemaster oven, fitted wall and base units, and a separate UTILITY space. Bathed in dual-aspect natural light, it's a great place for family meals or entertaining guests.

Upstairs, you'll find FOUR DOUBLE bedrooms. The main bedroom, offering a south-facing garden view, has its own ENSUITE bathroom and integrated storage cupboard. The second and third bedrooms are large doubles, with the third currently used as a SITTING ROOM, boasting a grand period fireplace and fantastic VIEWS towards Rodley canal. The fourth bedroom is perhaps a more standard size double, a neutral blank canvas awash with natural light and an arched wall recess.

There are currently TWO BATHROOMS in the house; an accessible ground floor WET ROOM with access from the utility room, and a good-sized ENSUITE for the main bedroom, both featuring tiled suites.

Externally, the property benefits from OFF-STREET and elevated rural views towards Rodley canal. It's ideally located with easy access to public transport links for Leeds & Bradford, excellent schools, local amenities, nearby canal walks, and more.

In short, this property is truly ONE-OF-A-KIND with a great plot and massive potential. So why wait? Start imagining your dream home today!

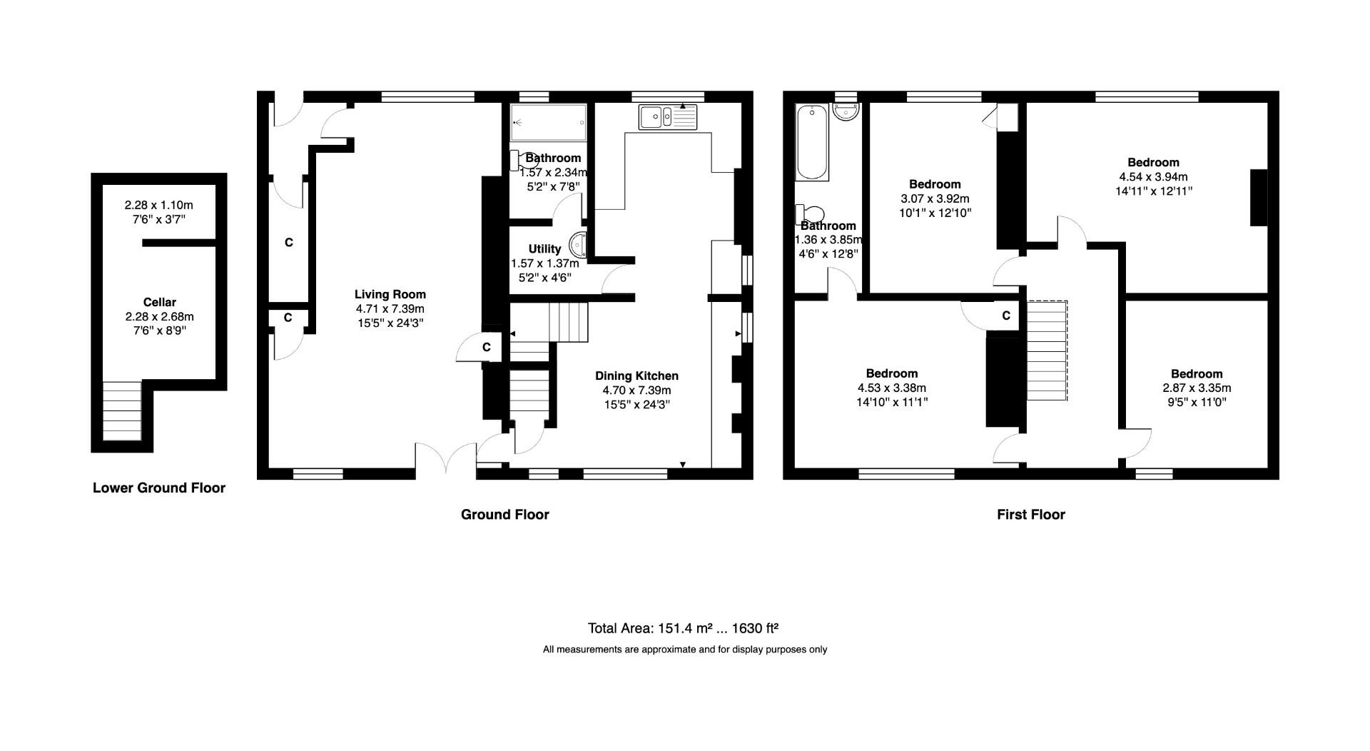
LIVING ROOM (4.71 x 7.39m)

DINING KITCHEN (4.70 x 7.39m)

UTILITY (1.57 x 1.37m)

GROUND FLOOR BATHROOM (1.57 x 2.34m)

CELLAR (2.28 x 1.10m)

CELLAR (2.28 x 2.68m)

LANDING

BEDROOM ONE (4.53 x 3.38m)

ENSUITE (1.36 x 3.85m)

BEDROOM TWO (3.07 x 3.92m)

BEDROOM THREE (4.54 x 3.94m)

BEDROOM FOUR (2.87 x 3.35m)

EXTERNAL GARDENS & DRIVE


Additional Information
Tenure: Freehold
Council Tax Band: D

Rooms
LIVING ROOM

4.71 x 7.39m (15'5" x 24'2")
DINING KITCHEN

4.70 x 7.39m (15'5" x 24'2")
UTILITY

1.57 x 1.37m (5'1" x 4'5")
GROUND FLOOR BATHROOM

1.57 x 2.34m (5'1" x 7'8")
CELLAR

2.28 x 1.10m (7'5" x 3'7")
CELLAR

2.28 x 2.68m (7'5" x 8'9")
LANDING

BEDROOM ONE

4.53 x 3.38m (14'10" x 11'1")
ENSUITE

1.36 x 3.85m (4'5" x 12'7" )
BEDROOM TWO

3.07 x 3.92m (10'0" x 12'10")
BEDROOM THREE

4.54 x 3.94m (14'10" x 12'11")
BEDROOM FOUR

2.87 x 3.35m (9'4" x 10'11")
EXTERNAL GARDENS & DRIVE


Mortgage calculator

Calculate Your Stamp Duty
£
Results
Stamp Duty To Pay:
Effective Rate:
Tax Band % Taxable Sum Tax

Town Street, Rodley, Leeds

Want to explore Town Street, Rodley, Leeds further? Explore our local area guide

Struggling to find a property? Get in touch and we'll help you find your ideal property.