Standout Features
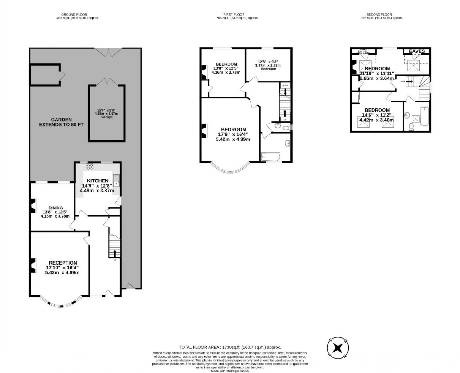
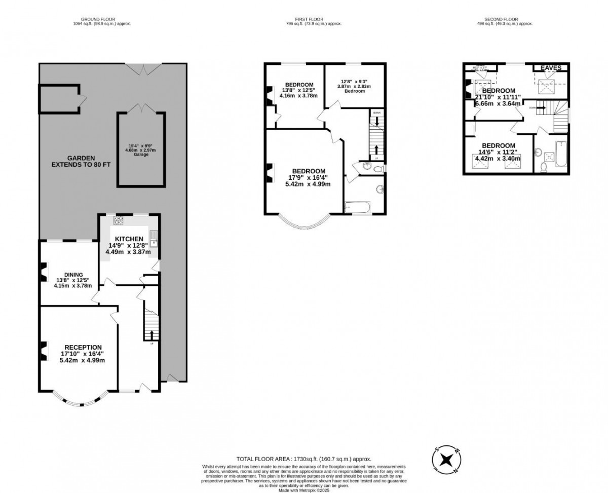
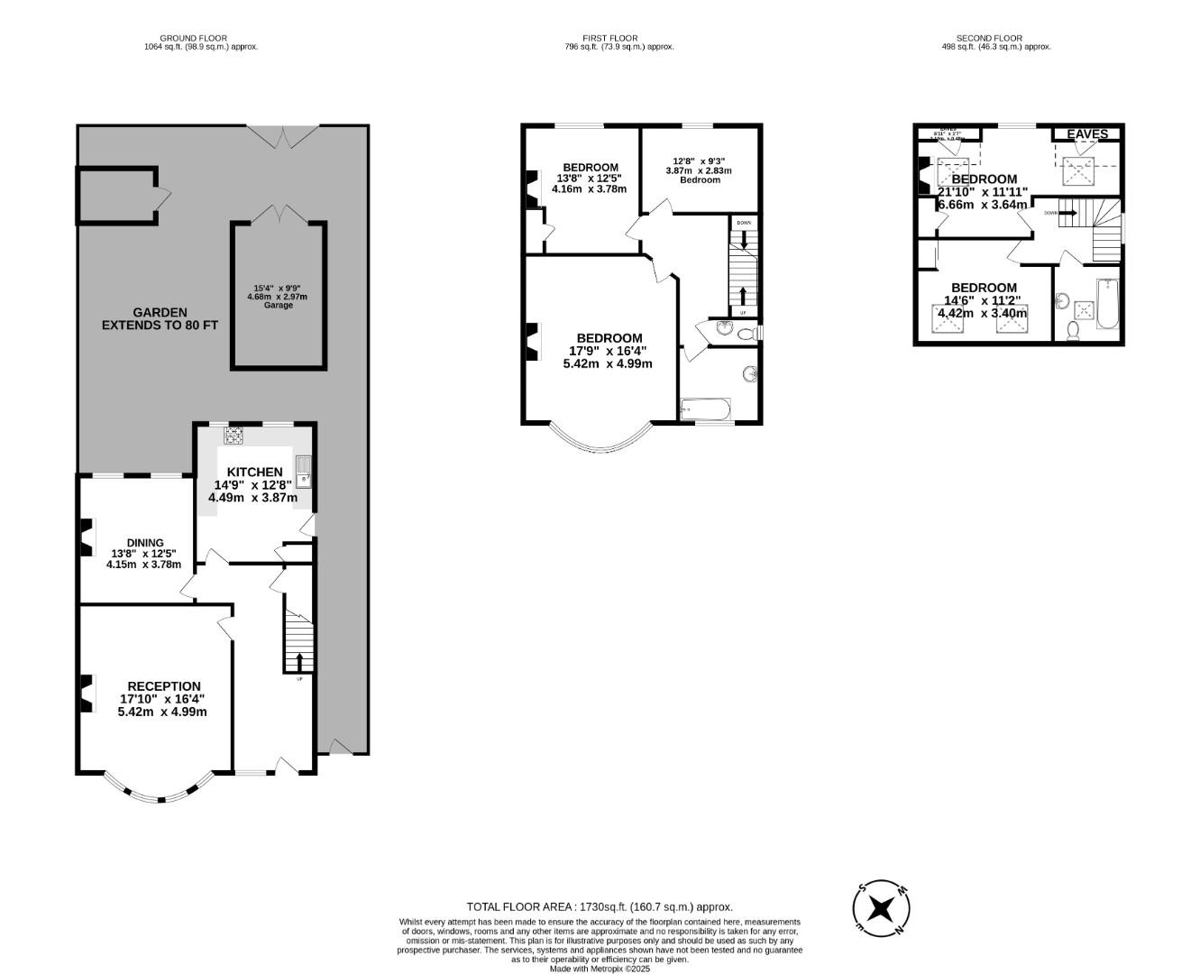
- Five Bedroom Semi-Detached Family Home
- Set in the sough-after neighbourhood of Gladstone Park
- Large private rear garden with garage
- Off-street parking
- Full loft extension
- Over 1700 sq.ft. of internal living space
- Close proximity to Brent Cross West Thames Link
Property Description
*** £500 LEGAL FEES CONTRIBUTION, UPON SUCCESSFUL PURCHASE THROUGH HUNTERS WILL BE GIVEN TO THE BUYER. ***
Set on the ever-popular Dollis Hill Avenue, this impressive five-bedroom semi-detached home offers the perfect balance of character, space and modern living. Built in 1925, the house spans over 1,700 sq ft across three floors and is filled with period charm, generous proportions and an abundance of natural light throughout.
On the ground floor, you’ll find two spacious reception rooms, along with a bright kitchen/diner that opens directly onto a beautiful 70 ft private garden. The garden is a real highlight complete with mature fruit trees and a rear garage offering plenty of space.
Upstairs, the first floor comprises two large double bedrooms, a well-proportioned single bedroom, a family bathroom and a separate WC. A striking stained-glass window on the landing adds a lovely touch of character. The converted loft provides two further light-filled bedrooms with far-reaching views, as well as a stylish contemporary bathroom featuring a roll-top bath.
Additional benefits include a private driveway, a detached garage and potential to extend at the rear (subject to the usual planning permissions).
Perfectly positioned just moments from Gladstone Park’s 86 acres of open green space, the property also benefits from excellent transport connections via Brent Cross West (Thameslink), making it an ideal family home in a highly convenient location.
Set on the ever-popular Dollis Hill Avenue, this impressive five-bedroom semi-detached home offers the perfect balance of character, space and modern living. Built in 1925, the house spans over 1,700 sq ft across three floors and is filled with period charm, generous proportions and an abundance of natural light throughout.
On the ground floor, you’ll find two spacious reception rooms, along with a bright kitchen/diner that opens directly onto a beautiful 70 ft private garden. The garden is a real highlight complete with mature fruit trees and a rear garage offering plenty of space.
Upstairs, the first floor comprises two large double bedrooms, a well-proportioned single bedroom, a family bathroom and a separate WC. A striking stained-glass window on the landing adds a lovely touch of character. The converted loft provides two further light-filled bedrooms with far-reaching views, as well as a stylish contemporary bathroom featuring a roll-top bath.
Additional benefits include a private driveway, a detached garage and potential to extend at the rear (subject to the usual planning permissions).
Perfectly positioned just moments from Gladstone Park’s 86 acres of open green space, the property also benefits from excellent transport connections via Brent Cross West (Thameslink), making it an ideal family home in a highly convenient location.
Additional Information
| Tenure: | Freehold |
|---|---|
| Council Tax Band: | E |
Mortgage calculator
Calculate Your Stamp Duty
Results
Stamp Duty To Pay:
Effective Rate:
| Tax Band | % | Taxable Sum | Tax |
|---|
Dollis Hill Avenue, Gladstone Park, London, NW2
Want to explore Dollis Hill Avenue, Gladstone Park, London, NW2 further? Explore our local area guide
Struggling to find a property? Get in touch and we'll help you find your ideal property.