Standout Features

Property Description
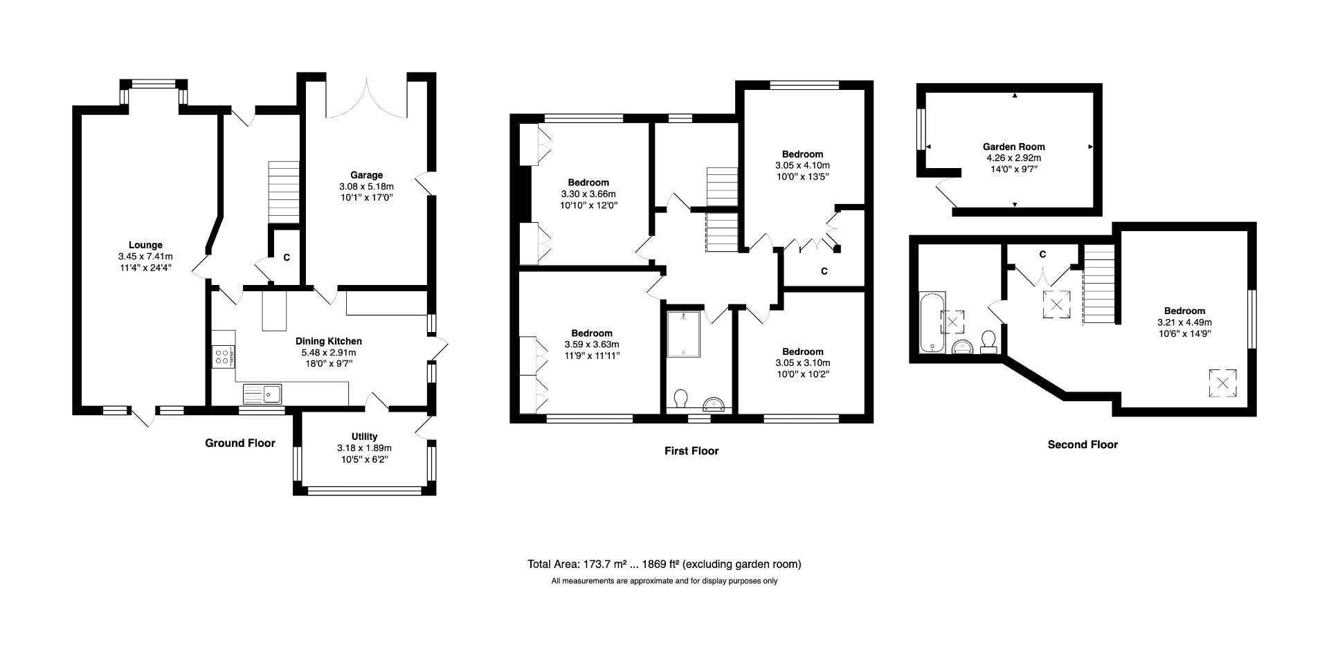
Situated on a generous corner plot close to the heart of Guiseley, this impressive family home offers spacious and versatile living accommodation arranged over three floors. Upon entering, a welcoming hallway with staircase to the first floor sets the tone, leading into a bright and airy dual aspect lounge and dining room – a superb space for both relaxation and entertaining. The dining kitchen is well proportioned and provides a practical hub for family life, complemented by a separate utility room and integral garage.

To the first floor, four double bedrooms are served by the main house bathroom, making this level ideal for growing families. The top floor is dedicated to a luxurious master suite, complete with a stylish ensuite bathroom and a striking mezzanine dressing area, offering a sense of privacy and retreat.

Externally, the property is equally impressive. Ample parking is provided to the front, while gardens extend to the side and rear, creating a variety of outdoor spaces to enjoy. A covered terrace with log burning stove provides the perfect setting for year-round alfresco dining and entertaining, and the addition of a versatile garden room further enhances the home’s appeal.

Perfectly positioned within easy reach of Guiseley’s excellent amenities, including a range of shops, highly regarded schools, and convenient transport links, this property combines comfort, style and practicality in equal measure. With its spacious layout and desirable location, it is sure to make the ideal family home.

Additional Info

Offer Acceptance & AML Regulations

Under the Money Laundering, Terrorist Financing & Transfer of Funds Regulations 2017, we are required to obtain proof of the source of funds for the purchase, as well as identification documents for all prospective buyers. We kindly ask buyers to assist with this process to avoid any delays in agreeing a sale.

A fee of £42 (inclusive of VAT) per named buyer is payable by the successful purchaser(s). This fee covers the money laundering checks carried out by SmartSearch, the firm that administers our ID verification. Please note that the property will not be marked as sold subject to contract until all required identification has been provided and AML checks have been satisfactorily completed.

________________________________________

Mortgage Advice

We are pleased to offer mortgage advice through our partnership with CS Mortgage Solutions. To arrange an appointment, please contact the branch and we will organise for an advisor to help you find the most suitable mortgage for your circumstances.
The initial consultation is free of charge and without obligation. A fee may be payable should you choose to proceed with their services.

________________________________________

Please Note

The extent of the property and its boundaries are subject to confirmation by inspection of the title deeds. All measurements provided in these particulars are approximate and intended for guidance only. Fixtures, fittings and appliances have not been tested, and no warranty can be given regarding their condition or functionality. Internal photographs are supplied for general information and should not be taken to imply that any specific item is included in the sale.


Additional Information
Tenure: Freehold
Council Tax Band: D

Rooms
Additional Info
Offer Acceptance & AML Regulations

Under the Money Laundering, Terrorist Financing & Transfer of Funds Regulations 2017, we are required to obtain proof of the source of funds for the purchase, as well as identification documents for all prospective buyers. We kindly ask buyers to assist with this process to avoid any delays in agreeing a sale.

A fee of £42 (inclusive of VAT) per named buyer is payable by the successful purchaser(s). This fee covers the money laundering checks carried out by SmartSearch, the firm that administers our ID verification. Please note that the property will not be marked as sold subject to contract until all required identification has been provided and AML checks have been satisfactorily completed.

________________________________________

Mortgage Advice

We are pleased to offer mortgage advice through our partnership with CS Mortgage Solutions. To arrange an appointment, please contact the branch and we will organise for an advisor to help you find the most suitable mortgage for your circumstances.
The initial consultation is free of charge and without obligation. A fee may be payable should you choose to proceed with their services.

________________________________________

Please Note

The extent of the property and its boundaries are subject to confirmation by inspection of the title deeds. All measurements provided in these particulars are approximate and intended for guidance only. Fixtures, fittings and appliances have not been tested, and no warranty can be given regarding their condition or functionality. Internal photographs are supplied for general information and should not be taken to imply that any specific item is included in the sale.

Mortgage calculator

Calculate Your Stamp Duty
£
Results
Stamp Duty To Pay:
Effective Rate:
Tax Band % Taxable Sum Tax

Fieldhead Road, Guiseley, Leeds

Want to explore Fieldhead Road, Guiseley, Leeds further? Explore our local area guide

Struggling to find a property? Get in touch and we'll help you find your ideal property.