Standout Features
- LARGE FIVE BEDROOM SEMI DETACHED HOUSE
- GREAT LOCATION CLOSE TO FOLKESTONE HARBOUR
- LOVELY CONDITION THROUGHOUT
- SET OVER THREE FLOORS
- LOW MAINTENANCE GARDEN
- READY TO MOVE STRAIGHT INTO
Property Description
GUIDE PRICE - £425,000-£450,000 - Hunters are delighted to offer to the market this stunning five bedroom semi detached home in the extremely popular location of London Street in Folkestone.
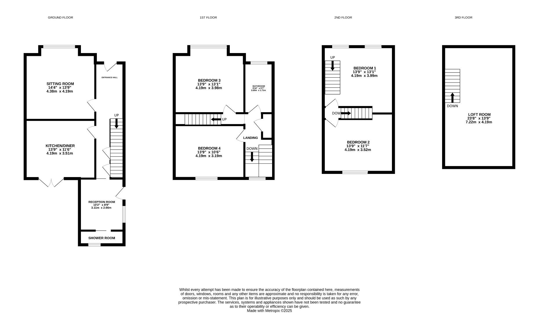
A beautiful family home throughout, it offers everything you could wish for in your new venture. Step inside to find a large and welcoming entrance hall which takes you through the home.
To your left is the sitting room which is in lovely decorative order and has been modernised to a high standard. It also retains character features including the fireplace which could be made fully functional.
Lead on through the home to the rear, you will find an extremely useful snug area. The room has been modernised throughout with new windows and damp proofing making it warm and cosy for those winter evenings. It's massively practical as it can be used as a bedroom but has a sitting area and shower room incorporated!
Completing downstairs is the kitchen which is in superb order and the current owners have blended the style perfectly by incorporating a modern look with a character feel to the room. Patio doors lead you out to the garden also.
Moving up to the first floor you will find two double bedrooms which are beautifully presented and in lovely decorative order. There is also the main bathroom and a large storage cupboard (currently used as a utility room). The flooring has been stripped to floorboards which enhances the character feel immensely.
Leading up to the second floor you will be excited to find another two bedrooms which are also both doubles. The condition is lovely and provides plenty of space for all the family to relax in peace. One of the bedrooms here also has the additional loft room which is useful for storage or as a cinema room/ play area.
Outside you will find a superb garden which is a real sun trap. It wraps around and has an additional area which is perfect for when the summer arrives as you can take a seat in the sun for those long afternoons
A beautiful family home throughout, it offers everything you could wish for in your new venture. Step inside to find a large and welcoming entrance hall which takes you through the home.
To your left is the sitting room which is in lovely decorative order and has been modernised to a high standard. It also retains character features including the fireplace which could be made fully functional.
Lead on through the home to the rear, you will find an extremely useful snug area. The room has been modernised throughout with new windows and damp proofing making it warm and cosy for those winter evenings. It's massively practical as it can be used as a bedroom but has a sitting area and shower room incorporated!
Completing downstairs is the kitchen which is in superb order and the current owners have blended the style perfectly by incorporating a modern look with a character feel to the room. Patio doors lead you out to the garden also.
Moving up to the first floor you will find two double bedrooms which are beautifully presented and in lovely decorative order. There is also the main bathroom and a large storage cupboard (currently used as a utility room). The flooring has been stripped to floorboards which enhances the character feel immensely.
Leading up to the second floor you will be excited to find another two bedrooms which are also both doubles. The condition is lovely and provides plenty of space for all the family to relax in peace. One of the bedrooms here also has the additional loft room which is useful for storage or as a cinema room/ play area.
Outside you will find a superb garden which is a real sun trap. It wraps around and has an additional area which is perfect for when the summer arrives as you can take a seat in the sun for those long afternoons
Additional Information
| Tenure: | Freehold |
|---|---|
| Council Tax Band: | C |
Utilities
Broadband:
Fibre to Cabinet
Electricity:
Mains Supply
Sewerage:
Mains Supply
Heating:
Gas Central
Mortgage calculator
Calculate Your Stamp Duty
Results
Stamp Duty To Pay:
Effective Rate:
| Tax Band | % | Taxable Sum | Tax |
|---|
London Street, Folkestone
Want to explore London Street, Folkestone further? Explore our local area guide
Struggling to find a property? Get in touch and we'll help you find your ideal property.