Standout Features
- Beautifully presented five bedroom historic detached home
- Extensive private grounds with electric gates upon entry
- Outdoor swimming pool and kitchen area
- Garage and beautiful Chalet
- Spacious rooms with character throughout
- Potential for land development and private sale
- 2.6 acres of land
Property Description
GUIDE PRICE OF £900,000 - £925,000
Elegant Five-Bedroom Detached Home with Expansive Grounds, Outdoor Pool and Development Potential
Monkton Grange is a distinguished five-bedroom detached residence set within a large, private plot on the desirable Lund Hill Lane in Royston. Originally built in 1912 and once part of the local colliery estate, this unique home perfectly combines period charm with modern luxury.
Beyond secure electric gates, a sweeping driveway leads to beautiful landscaped gardens, extensive lawns and mature trees, creating a peaceful and secluded setting. The property also benefits from an outdoor swimming pool with a fully equipped kitchen area, ideal for entertaining, as well as several outbuildings including a chalet, an eight person hot tub, fire put and a large garage.
Inside, the home offers impressive space throughout with high ceilings, elegant décor and an abundance of natural light. The modern kitchen features a central island and flows effortlessly into a spacious dining area, while two large reception rooms with log burners provide perfect spaces for relaxing and entertaining. Upstairs, five generous bedrooms and a stylish family bathroom complete the accommodation.
Set on 2.6 acres, Monkton Grange also presents an exciting opportunity for development or land resale, subject to planning permissions. Located close to local amenities, reputable schools and excellent transport links, this remarkable home offers privacy, character and potential in equal measure.
Elegant Five-Bedroom Detached Home with Expansive Grounds, Outdoor Pool and Development Potential
Monkton Grange is a distinguished five-bedroom detached residence set within a large, private plot on the desirable Lund Hill Lane in Royston. Originally built in 1912 and once part of the local colliery estate, this unique home perfectly combines period charm with modern luxury.
Beyond secure electric gates, a sweeping driveway leads to beautiful landscaped gardens, extensive lawns and mature trees, creating a peaceful and secluded setting. The property also benefits from an outdoor swimming pool with a fully equipped kitchen area, ideal for entertaining, as well as several outbuildings including a chalet, an eight person hot tub, fire put and a large garage.
Inside, the home offers impressive space throughout with high ceilings, elegant décor and an abundance of natural light. The modern kitchen features a central island and flows effortlessly into a spacious dining area, while two large reception rooms with log burners provide perfect spaces for relaxing and entertaining. Upstairs, five generous bedrooms and a stylish family bathroom complete the accommodation.
Set on 2.6 acres, Monkton Grange also presents an exciting opportunity for development or land resale, subject to planning permissions. Located close to local amenities, reputable schools and excellent transport links, this remarkable home offers privacy, character and potential in equal measure.
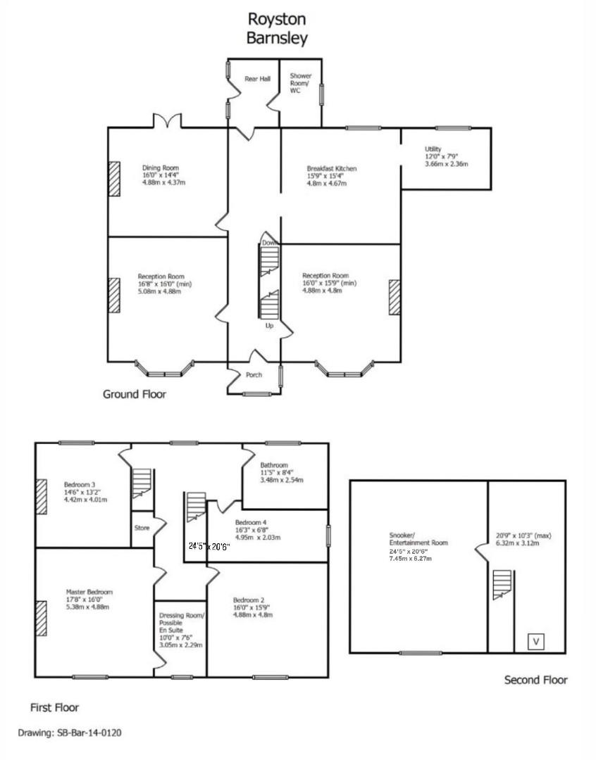
Porch & Hallway
Reception Room 1 (5.08m x 4.88m)
Reception Room 2 (4.88m x 4.8m)
Dining Room (4.88m x 4.37m)
Breakfast Kitchen (4.8m x 4.67m)
Utility (3.66m x 2.36m)
Rear hall & Shower room
Master Bedroom, Dressing room & En suite (5.38m x 4.88m)
Family bathroom (3.48m x 2.54m)
Bedroom 2 (4.88m x 4.8m)
Bedroom 3 (4.42m x 4.01m)
Bedroom 4 (4.95m x 2.03m)
Bedroom 5 (7.45m x 6.27m)
Additional Information
| Tenure: | Freehold |
|---|---|
| Council Tax Band: | D |
Rooms
Porch & Hallway
Reception Room 1
5.08m x 4.88m (16'7" x 16'0")
Reception Room 2
4.88m x 4.8m (16'0" x 15'8")
Dining Room
4.88m x 4.37m (16'0" x 14'4")
Breakfast Kitchen
4.8m x 4.67m (15'8" x 15'3")
Utility
3.66m x 2.36m (12'0" x 7'8")
Rear hall & Shower room
Master Bedroom, Dressing room & En suite
5.38m x 4.88m (17'7" x 16'0")
Family bathroom
3.48m x 2.54m (11'5" x 8'3")
Bedroom 2
4.88m x 4.8m (16'0" x 15'8")
Bedroom 3
4.42m x 4.01m (14'6" x 13'1")
Bedroom 4
4.95m x 2.03m (16'2" x 6'7")
Bedroom 5
7.45m x 6.27m (24'5" x 20'6")
Utilities
Electricity:
Mains Supply
Sewerage:
Mains Supply
Water:
Heating:
Gas Central
Mortgage calculator
Calculate Your Stamp Duty
Results
Stamp Duty To Pay:
Effective Rate:
| Tax Band | % | Taxable Sum | Tax |
|---|
Lund Hill Lane, Royston, Barnsley
Want to explore Lund Hill Lane, Royston, Barnsley further? Explore our local area guide
Struggling to find a property? Get in touch and we'll help you find your ideal property.