Standout Features

Property Description
A beautifully characterful Victorian stone terrace in sought-after Guiseley, brimming with period features including mullioned windows, open fires and exposed woodwork. Offering spacious accommodation over four floors, a large garden, garage and vaulted cellar, this charming home blends history with potential for sympathetic modernisation in a highly desirable location.

Property Description – Characterful Victorian Stone Terrace, Guiseley

Brimming with charm and steeped in history, this striking stone-built Victorian terrace offers a rare opportunity to acquire a home of immense character on one of Guiseley’s most sought-after streets. From its handsome façade with traditional stone mullioned windows to the wealth of original period features within, this is a property that truly rewards a closer look – the more you see, the more you fall in love.

Typical of the era, this wonderful home exudes warmth and individuality at every turn. The interior is rich with original details including exposed timber beams, open fireplaces, panelled ceilings, and solid wood joinery. While the property would benefit from some cosmetic updating, recent improvements – including a newly installed boiler and replacement windows – mean that much of the essential work has already been done, leaving a sympathetic restoration to suit the tastes and vision of the next owner. This is the perfect opportunity for someone seeking a home with soul, one that can be gently modernised without losing any of its period magic.

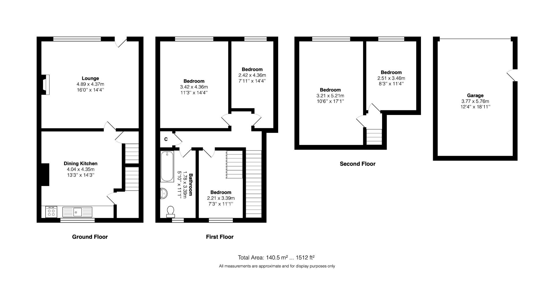
The accommodation is arranged over four floors, offering a deceptively spacious layout that is both versatile and full of potential. On entering the property, the welcoming hallway sets the tone for what’s to come, leading through to a delightful lounge where an open fire creates an inviting focal point. The adjoining dining kitchen is a generous space ideal for family meals or entertaining, featuring traditional cabinetry and access down to the basement level.

The cellar is a particularly exciting feature of this property – a large, vaulted room with stone floors and exposed brickwork, offering endless scope for conversion (subject to any necessary consents). Whether imagined as a home office, gym, additional reception room or even a wine cellar, this space adds a further dimension to the home’s flexibility.

To the first floor, there are three well-proportioned bedrooms, including a generous main bedroom that reflects the property’s timeless character. A family bathroom serves this level, offering ample space for modernisation while retaining a sense of traditional charm. Ascending to the second floor reveals two further bedrooms – each enjoying elevated views that are among the finest in Guiseley, taking in the rooftops and rolling landscape beyond.

Externally, the property continues to impress. To the rear lies a full-length garden, beautifully established with mature planting, lawned areas and well-stocked borders brimming with perennials and shrubs – an idyllic haven for outdoor relaxation or entertaining in the warmer months. To the front of the house sits a detached garage/workshop complete with a concealed cellar below – a superb addition providing secure parking, storage, or potential workspace for hobbies and creative pursuits.

This charming home enjoys an enviable position on a highly regarded street where properties seldom come to market and always attract significant interest. The location perfectly balances a sense of rural tranquillity with convenience, being within easy reach of Guiseley’s vibrant centre. Here, residents enjoy a wide range of local shops, cafés, restaurants, and excellent schools, along with superb transport links via the nearby train station, making Leeds, Bradford and surrounding areas easily accessible.

In summary, this is a rare and wonderful opportunity to purchase a truly characterful Victorian terrace in one of Guiseley’s most desirable locations. With its abundance of original features, generous accommodation and beautiful garden, the property offers the perfect canvas for a buyer looking to create a unique and timeless home – one that celebrates its history while embracing the comforts of modern living.

Viewing is highly recommended to fully appreciate the depth of character and potential this special property has to offer.

Agents Note - There is a right of access half way down the garden and along the private road to the front. A small percentage of the property is flying freehold. Probate sale.

Additional Info

Offer Acceptance & AML Regulations

Under the Money Laundering, Terrorist Financing & Transfer of Funds Regulations 2017, we are required to obtain proof of the source of funds for the purchase, as well as identification documents for all prospective buyers. We kindly ask buyers to assist with this process to avoid any delays in agreeing a sale.

A fee of £42 (inclusive of VAT) per named buyer is payable by the successful purchaser(s). This fee covers the money laundering checks carried out by SmartSearch, the firm that administers our ID verification. Please note that the property will not be marked as sold subject to contract until all required identification has been provided and AML checks have been satisfactorily completed.

________________________________________

Mortgage Advice

We are pleased to offer mortgage advice through our partnership with CS Mortgage Solutions. To arrange an appointment, please contact the branch and we will organise for an advisor to help you find the most suitable mortgage for your circumstances.
The initial consultation is free of charge and without obligation. A fee may be payable should you choose to proceed with their services.

________________________________________

Please Note

The extent of the property and its boundaries are subject to confirmation by inspection of the title deeds. All measurements provided in these particulars are approximate and intended for guidance only. Fixtures, fittings and appliances have not been tested, and no warranty can be given regarding their condition or functionality. Internal photographs are supplied for general information and should not be taken to imply that any specific item is included in the sale.


Additional Information
Tenure: Freehold
Council Tax Band: D

Rooms
Additional Info
Offer Acceptance & AML Regulations

Under the Money Laundering, Terrorist Financing & Transfer of Funds Regulations 2017, we are required to obtain proof of the source of funds for the purchase, as well as identification documents for all prospective buyers. We kindly ask buyers to assist with this process to avoid any delays in agreeing a sale.

A fee of £42 (inclusive of VAT) per named buyer is payable by the successful purchaser(s). This fee covers the money laundering checks carried out by SmartSearch, the firm that administers our ID verification. Please note that the property will not be marked as sold subject to contract until all required identification has been provided and AML checks have been satisfactorily completed.

________________________________________

Mortgage Advice

We are pleased to offer mortgage advice through our partnership with CS Mortgage Solutions. To arrange an appointment, please contact the branch and we will organise for an advisor to help you find the most suitable mortgage for your circumstances.
The initial consultation is free of charge and without obligation. A fee may be payable should you choose to proceed with their services.

________________________________________

Please Note

The extent of the property and its boundaries are subject to confirmation by inspection of the title deeds. All measurements provided in these particulars are approximate and intended for guidance only. Fixtures, fittings and appliances have not been tested, and no warranty can be given regarding their condition or functionality. Internal photographs are supplied for general information and should not be taken to imply that any specific item is included in the sale.

Mortgage calculator

Calculate Your Stamp Duty
£
Results
Stamp Duty To Pay:
Effective Rate:
Tax Band % Taxable Sum Tax

Mount Pleasant, Guiseley, Leeds

Want to explore Mount Pleasant, Guiseley, Leeds further? Explore our local area guide

Struggling to find a property? Get in touch and we'll help you find your ideal property.