Standout Features

Property Description
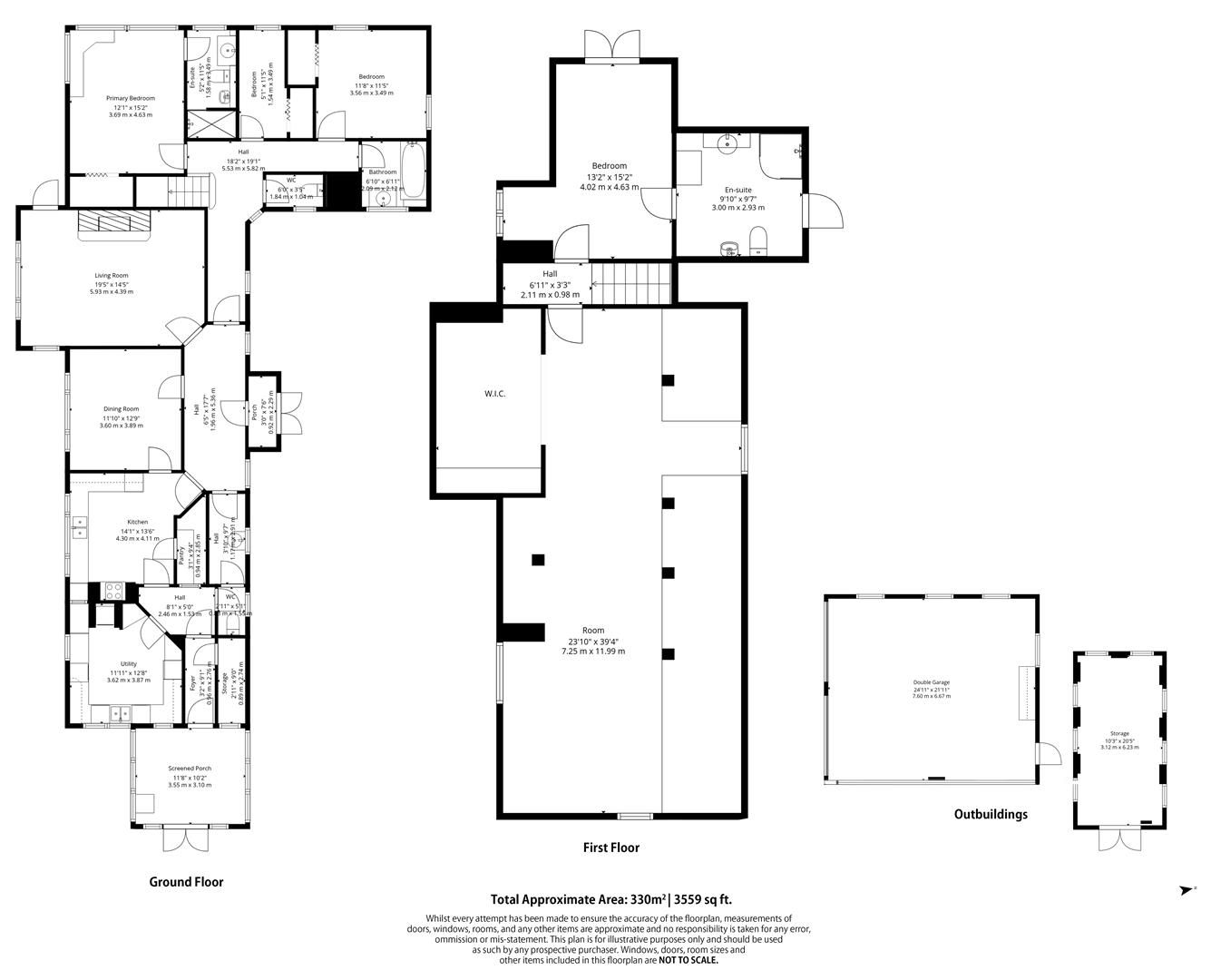
Offered with no upward chain and set within approximately 2.5 acres and entirely surrounded by open countryside, offers potential new owners a peaceful haven with fantastic living accommodation set over two floors. Accessed via double field gates and a private driveway to the property opens up to a sizeable gravelled driveway with access to the detached double garage and further brick built storage shed. To the ground floor the property itself comprises: entrance porch and hall, cloakroom, spacious lounge with feature stone fireplace with real effect gas fire, dining room, kitchen room with pantry cupboard, utility room, cloakroom, conservatory with further access to the driveway, bedroom quarters hall, bedroom one with en suite, two further bedrooms and a bathroom with separate WC. To the first floor there is a landing, further bedroom with balcony and en suite and a large room with walk in closet. Cloverhill enjoys a peaceful rural setting, surrounded by open countryside, while still being ideally positioned for convenient commuting. The property benefits from excellent transport links, with easy access to Junctions 3 and 4 of the M5 motorway, providing straightforward connections to Birmingham Airport. The nearby villages of Hagley and Blakedown offer a variety of local amenities, including shops, pubs, and railway stations. A number of highly regarded independent schools are within close proximity, including Winterfold Preparatory School in Chaddesley Corbett, Old Swinford Hospital School in Stourbridge, and Bromsgrove School, all just a short drive away. For outdoor enthusiasts, the nearby Clent Hills and Kinver Edge provide excellent opportunities for walking and enjoying the surrounding countryside. This property effortlessly blends modern and contemporary living with a semi rural lifestyle admired by many.

Please note, access to the property is off the A451 Stourbridge Road and not via Sugar Loaf Lane itself.

Front of the Property

Accessed via double field gates leading from the front of the property, timeworn cobbles, lined with trees which opens up to a spacious gravelled driveway with access to the double garage, well established mature shrub borders surround the driveway with further access to the rear lawn and land to rear and access to the property via entrance porch and conservatory.

Porch

With double glazed double doors from the driveway, tiled flooring and a double glazed door leading to the entrance hall.

Entrance Hall (2.01 x 5.56)

With a double glazed door from the porch, two double glazed windows overlooking the driveway and doors leading to various rooms.

Lounge (6.11 x 4.55)

With a door from the entrance hall, double glazed window overlooking the front lawn, feature stone fireplace with real effect gas fire, double glazed door leading to the patio, wall lights and a central heating radiator.

Dining Room (3.60 x 3.60)

With a door from the entrance hall and an opening from the kitchen, double glazed window overlooking the front garden and a central heating radiator.

Kitchen (3.31 x 3.69)

With a door from the entrance hall, double glazed window overlooking the front garden, fitted kitchen with a range of wall and base units, work surface over and tiled splashback, sink and drainer, integrated electric double oven, electric hob with extractor above, recessed spotlights, door leading to pantry cupboard and a central heating radiator.

Utility Room (3.50 x 2.61)

With a door from the rear hall, double glazed window to the side and overlooking the front garden, a range of wall and base units, work surface over with tiled splashback, one and a half bowl sink and drainer, plumbing for washing machine, space for tumble dryer, space for tall fridge/freezer, space for further appliance, tiled flooring and a wall mounted boiler.

Conservatory (3.90 x 3.22)

With double glazed double doors from driveway, tiled flooring and a door leading to hall.

Cloakroom

With a door from the hall, WC, wash hand basin and a double glazed window overlooking the driveway.

Bedroom Quarters Hall

With a door from the entrance hall, double glazed window overlooking the driveway, stairs leading to first floor landing, built in storage cupboard, doors leading to various bedrooms and a central heating radiator.

Bedroom One (3.60 x 4.14)

With a door from the bedroom quarters hall, double glazed window overlooking the front garden, and two further windows to the side, built in wardrobes with matching bedside tables, chest of drawers and dressing table, a door leading to the en suite and a central heating radiator.

En Suite (1.60 x 3.80)

With a door from bedroom one, double glazed window to the side, shower cubical, WC, wash hand basin set into vanity unit, bidet toilet, recessed spotlights, extractor fan, central heating radiator and a chrome heated towel rail.

Bedroom Four (3.60 x 3.60)

With a door from bedroom quarters hall, double glazed window built in wardrobes and a central heating radiator.

Bedroom Five (1.60 x 3.68)

With a door from the bedroom quarters hall, double glazed window to the side, built in wardrobes and a central heating radiator.

Bathroom

With a door from the bedroom quarters hall, double glazed window overlooking the driveway, bathtub with shower over, wash hand basin set into vanity unit, part tiled walls and a central heating radiator.

Separate WC

With a door from the bedroom quarters hall, double glazed window overlooking the driveway and a WC.

First Floor Landing

With stairs leading from the bedroom quarters hall and doors leading to various rooms.

Bedroom Two (2.90 x 4.78)

With a door from the first floor landing, double glazed window overlooking the front garden, double glazed French doors leading to balcony, doors leading to en suite and a central heating radiator.

En Suite (3.40 x 3.27)

With a door from bedroom two, large walk in shower cubical, wash hand basin set into vanity unit, WC, bidet toilet, part tiled walls, recessed spotlights, extractor far, door leading to eaves storage, a central heating radiator and a chrome heated towel rail.

Bedroom Three/ Room (3.94 x 11.74)

With a door from the first floor landing, a range of double glazed windows to front, side and rear, walk in closet and three central heating radiators.

Detached Double Garage (7.33 x 7.07)

With access from the driveway, electric roller shutter doors, windows to the front, side and rear and power, lighting and water supply.

Brick Built Storage Shed (6.00 x 3.40)

Situated behind the double garage, double doors to the front, windows to the front, side and rear with power and lighting.

Rear Garden

The rear garden is a large lawn with various mature shrubs, trees and a charming brick-built pergola and further secluded seating areas. To the rear of the garden is a large lawn paddock. Situated on the approximate 2.5 acres of grounds is a detached double garage and a useful brick-built storage shed. The property is surrounded by acres of farmers fields and countryside.

Agents are required by law to conduct anti-money laundering checks on all those buying a property. We outsource the initial checks to a partner supplier Coadjute who will contact you once you have had an offer accepted on a property you wish to buy. The cost of these checks is £45+VAT per buyer and this is a non-refundable fee. These charges cover the cost of obtaining relevant data, any manual checks and monitoring which might be required. This fee will need to be paid and the checks completed in advance of the office issuing a memorandum of sale on the property you would like to buy.


Additional Information
Tenure: Freehold
Council Tax Band: G

Rooms
Front of the Property
Accessed via double field gates leading from the front of the property, timeworn cobbles, lined with trees which opens up to a spacious gravelled driveway with access to the double garage, well established mature shrub borders surround the driveway with further access to the rear lawn and land to rear and access to the property via entrance porch and conservatory.
Porch
With double glazed double doors from the driveway, tiled flooring and a double glazed door leading to the entrance hall.
Entrance Hall
With a double glazed door from the porch, two double glazed windows overlooking the driveway and doors leading to various rooms.
2.01 x 5.56 (6'7" x 18'2")
Lounge
With a door from the entrance hall, double glazed window overlooking the front lawn, feature stone fireplace with real effect gas fire, double glazed door leading to the patio, wall lights and a central heating radiator.
6.11 x 4.55 (20'0" x 14'11")
Dining Room
With a door from the entrance hall and an opening from the kitchen, double glazed window overlooking the front garden and a central heating radiator.
3.60 x 3.60 (11'9" x 11'9")
Kitchen
With a door from the entrance hall, double glazed window overlooking the front garden, fitted kitchen with a range of wall and base units, work surface over and tiled splashback, sink and drainer, integrated electric double oven, electric hob with extractor above, recessed spotlights, door leading to pantry cupboard and a central heating radiator.
3.31 x 3.69 (10'10" x 12'1")
Utility Room
With a door from the rear hall, double glazed window to the side and overlooking the front garden, a range of wall and base units, work surface over with tiled splashback, one and a half bowl sink and drainer, plumbing for washing machine, space for tumble dryer, space for tall fridge/freezer, space for further appliance, tiled flooring and a wall mounted boiler.
3.50 x 2.61 (11'5" x 8'6")
Conservatory
With double glazed double doors from driveway, tiled flooring and a door leading to hall.
3.90 x 3.22 (12'9" x 10'6")
Cloakroom
With a door from the hall, WC, wash hand basin and a double glazed window overlooking the driveway.
Bedroom Quarters Hall
With a door from the entrance hall, double glazed window overlooking the driveway, stairs leading to first floor landing, built in storage cupboard, doors leading to various bedrooms and a central heating radiator.
Bedroom One
With a door from the bedroom quarters hall, double glazed window overlooking the front garden, and two further windows to the side, built in wardrobes with matching bedside tables, chest of drawers and dressing table, a door leading to the en suite and a central heating radiator.
3.60 x 4.14 (11'9" x 13'6")
En Suite
With a door from bedroom one, double glazed window to the side, shower cubical, WC, wash hand basin set into vanity unit, bidet toilet, recessed spotlights, extractor fan, central heating radiator and a chrome heated towel rail.
1.60 x 3.80 (5'2" x 12'5")
Bedroom Four
With a door from bedroom quarters hall, double glazed window built in wardrobes and a central heating radiator.
3.60 x 3.60 (11'9" x 11'9")
Bedroom Five
With a door from the bedroom quarters hall, double glazed window to the side, built in wardrobes and a central heating radiator.
1.60 x 3.68 (5'2" x 12'0")
Bathroom
With a door from the bedroom quarters hall, double glazed window overlooking the driveway, bathtub with shower over, wash hand basin set into vanity unit, part tiled walls and a central heating radiator.
Separate WC
With a door from the bedroom quarters hall, double glazed window overlooking the driveway and a WC.
First Floor Landing
With stairs leading from the bedroom quarters hall and doors leading to various rooms.
Bedroom Two
With a door from the first floor landing, double glazed window overlooking the front garden, double glazed French doors leading to balcony, doors leading to en suite and a central heating radiator.
2.90 x 4.78 (9'6" x 15'8")
En Suite
With a door from bedroom two, large walk in shower cubical, wash hand basin set into vanity unit, WC, bidet toilet, part tiled walls, recessed spotlights, extractor far, door leading to eaves storage, a central heating radiator and a chrome heated towel rail.
3.40 x 3.27 (11'1" x 10'8")
Bedroom Three/ Room
With a door from the first floor landing, a range of double glazed windows to front, side and rear, walk in closet and three central heating radiators.
3.94 x 11.74 (12'11" x 38'6")
Detached Double Garage
With access from the driveway, electric roller shutter doors, windows to the front, side and rear and power, lighting and water supply.
7.33 x 7.07 (24'0" x 23'2")
Brick Built Storage Shed
Situated behind the double garage, double doors to the front, windows to the front, side and rear with power and lighting.
6.00 x 3.40 (19'8" x 11'1")
Rear Garden
The rear garden is a large lawn with various mature shrubs, trees and a charming brick-built pergola and further secluded seating areas. To the rear of the garden is a large lawn paddock. Situated on the approximate 2.5 acres of grounds is a detached double garage and a useful brick-built storage shed. The property is surrounded by acres of farmers fields and countryside.

Mortgage calculator

Calculate Your Stamp Duty
£
Results
Stamp Duty To Pay:
Effective Rate:
Tax Band % Taxable Sum Tax

Sugar Loaf Lane, Iverley, Kidderminster, DY10 3PD

Want to explore Sugar Loaf Lane, Iverley, Kidderminster, DY10 3PD further? Explore our local area guide

Struggling to find a property? Get in touch and we'll help you find your ideal property.