Standout Features

Property Description
!!OPEN EVENT SUNDAY 26TH APRIL 12 TO 1PM!! BOOK A SLOT WITH AGENT NOW OR TURN UP ON THE DAY.
Wadworth House is a substantial Edwardian property built in 1905 next to St John the Baptist’s church and has been extended and completely refurbished to a very high standard by the current owners since being purchased in 2016, whilst retaining many original features. Set over four floors with FIVE bedrooms, four having en suite facilities and a family bathroom linked to the other bedroom, the property offers large family accommodation or possible business use with the usual planning approval and VIEWING IS HIGHLY RECOMMENDED for proceedable buyers.

DESCRIPTION

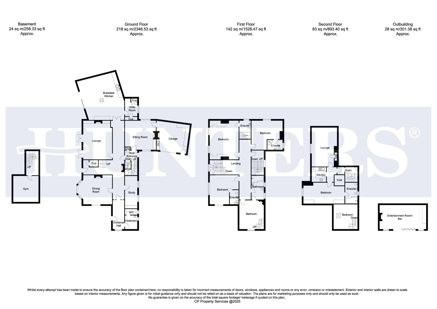
The property comprises entrance hall, inner hall, lounge, dining room, second reception, study, kitchen diner, utility, cloakroom and integral garage to the ground floor, a gym to the lower floor, four bedrooms, three with en suites to the first floor, the fourth having access to the family bathroom. There are further independent living quarters on the second floor comprising a lounge, kitchen, bedroom and en suite. Outside is a landscaped garden to the front which has a bespoke entertainment unit and bar, whilst a drive leads to the side and rear providing off street parking for numerous vehicles. The property also benefits from double glazing and gas central heating.
Wadworth is a village lying seven miles south of the city of Doncaster which is on the east coast mainline and three miles north of Tickhill which has many amenities. It is also cliose to the A1 and M18 for easy access to the motorway network and the village has a primary school, pub called The Travellers Rest, a butchers and coffee shop.

ACCOMMODATION

The property’s main entrance is via steps leading up to a solid wooden door with glass panel over leading into:

ENTRANCE HALLWAY (4.76m x 1.81m)

Providing access to the inner hall via a wooden door with glass panel surround and cloakroom, window to the side elevation, coving to ceiling, wood panel flooring and radiator.

CLOAKROOM

Coat hanger, pedestal sink, towel radiator, towel holder, coving to ceiling with spotlight, window to the rear elevation, door into WC with low level flush wc, wood panel flooring and window to the rear elevation.

INNER HALLWAY (12.96m x 1.80m)

Providing access to the lounge, dining room, study, second reception room and kitchen diner, doors to the rear entrance hall and front garden, stairs to the first floor accommodation with cupboard under and wood panel flooring, smoke alarm to ceiling.

LOUNGE (6.13m x 4.57m)

Feature fireplace with surround and inset fire, TV point, wood panel flooring, arched wall recess, shelf, two wall lights, two French doors opening to the garden and radiator.

DINING ROOM (4.61m x 5.75m)

Feature fireplace with surround and inset fire, TV point, bay window to the front elevation and window to the side elevation, radiator.

SECOND RECEPTION (4.57m x 4.12m)

Feature fireplace with surround, TV point, built in cupboards, wood panel flooring, window to the side elevation, radiator, and door into integral garage.

KITCHEN DINER (7.57m x 6.00m)

Situated in the extension and accessed from the inner hall via double doors, comprising wall and base units with complementary worktops, two built in double ovens, integrated fridge and fridge freezer, dishwasher, bin unit, central breakfasting island with five overhead lights, five ring induction hob, Karndean flooring, spotlights to ceiling, TV point, bifold doors to the front garden and door leading into:

UTILITY (2.34m x 2.08m)

Plumbing and space for washing machine, cupboard housing two boilers, store cupboard, shelving, spotlights and smoke alarm to ceiling, window to the rear elevation and radiator.

STUDY (4.66m x 1.93m)

Telephone point, built in cupboards, spotlights to ceiling, two windows to the rear elevation and radiator

INTEGRAL GARAGE

Wall and base units, stainless steel sink, log burner, TV point, cycle wall rack, space for dryer, electric door, power and lighting, white uPVC door to rear with glass panels, radiator.

REAR ENTRANCE HALL

Stairs leading to the first floor accommodation and also down to the basement. White uPVC door with glass panel over leading to the rear drive, coat hanger, cupboard, wood panel flooring, and door into the inner hall. With direct access to the second floor living accommodation.

BASEMENT (4.13m x 3.96m)

(Currently used as a gym)
Air conditioning unit, shelving for weights, full length wall mirror, wood panel flooring, spotlights to ceiling, Electric fuse box and meter are situated in the passage at the bottom of the stairs in a cupboard,

FIRST FLOOR LANDING (10.04m x 1.80m (6.64m into stairwell))

Providing access to four bedrooms, with split landing, window to the front elevation, smoke alarm and two wall lights.

BEDROOM ONE (6.18m x 4.34m)

Two built in wardrobes, TV point, two USB sockets, soft furnished wall headboard above raised base for bed, spotlights to ceiling, two windows to the front elevation, radiator and door into:

EN SUITE (2.89m x 1.74m)

Tiled throughout with walk in shower unit with rainfall head and handheld unit, wash hand basin with mixer tap in unit with cupboard and drawer under and mirror over, towel holder, spotlights to ceiling, extractor fan, chrome wall radiator, obscure window to the side elevation.

BEDROOM TWO (4.56m x 4.56m to maximum dimension)

TV point, windows to the front and side elevation, radiator and door into:

EN SUITE

Tiled throughout with corner shower, rainfall head and handheld unit, wash hand basin with mixer tap and low level flush wc in unit with splashback and mirrored vanity unit over, chrome wall radiator, towel holder, spotlights to ceiling, and extractor fan.

BEDROOM THREE (4.66m x 4.45m)

TV point, shelf, window to the side elevation, radiator and door into:

EN SUITE (1.51m x 1.93m)

Corner shower unit, pedestal sink with mixer tap and splashback, mirrored vanity unit over, low level flush wc, chrome wall radiator, towel holder, spotlights to ceiling, obscure window to the rear elevation.

BEDROOM FOUR (4.06m x 4.82m)

Feature fireplace, TV point, window to the side elevation, door into bathroom and spiral staircase to upper bedroom.

BATHROOM (3.67m x 1.92m)

Accessed via the landing and Bedroom Four. Tiled throughout with matching white suite comprising panel bath with rainfall head and two handheld units, wash hand basin with mixer tap, drawers under and mirror over with lights, low level flush wc, extractor fan, spotlights to ceiling, chrome towel radiator, two obscure windows to the rear elevation.

UPPER ROOM TO BEDROOM FOUR (4.53m x 3.44m)

Accessed via a spiral staircase from Bedroom Four, TV point, arched ceiling with Velux window and spotlights, radiator.

SECOND FLOOR LANDING

Stairs from the first floor lead up to the second floor living accommodation with split landing, two cupboards, window to the rear elevation and radiator.

LOUNGE (6.18m x 3.47m)

TV point, cupboard, wooden beams and spotlights to ceiling, two downlighters, window to the front elevation and radiator.

BEDROOM FIVE (3.73m x 6.51m)

TV point, two built in wardrobes, spotlights to ceiling, window to the front elevation, two radiators and door leading into:

EN SUITE

Matching white suite comprising panel bath with rainfall head shower over and hand held unit, his and hers wash hand basins with mixer taps in unit with cupboard under, mirror over, low level flush wc, extractor fan, porthole window to the rear elevation and radiator.

KITCHEN (2.30m x 2.74m)

Wall and base units with complementary worktops, spaces for electric cooker and fridge freezer, stainless steel sink with splashback and mixer tap, spotlights to ceiling, wood panel flooring, beams to ceiling and Velux window.

EXTERNALLY

The private front garden is laid to lawn with paving and patio seating area, raised stone chip area with laurel trees, shale area, wall lights, stepped decking leading to the outside bar and entertainment room.
A stone wall surrounds the garden which gives views of the church grounds, trees, security lights, gated access to the drive which runs round to the rear with electric security access gates and provides off street parking for numerous vehicles. Power socket and two outside taps.

ENTERTAINMENT ROOM (7.55m x 3.76m)

Central Island, gold effect hexagonal wall décor with four recess shelf units, space for TV in wall recess and flame effect fire under, tiled flooring, window to the front elevation and bi - fold doors.

COUNCIL TAX

Through enquiry of the Doncaster Council we have been advised that the property is in Rating Band 'F'

TENURE - Freehold

AGENTS NOTE

The vendors advise the IT network is installed in many areas including across to the Entertainment Room.

Estate agents operating in the UK are required to conduct Anti-Money Laundering (AML) checks in compliance with the regulations set forth by HM Revenue and Customs (HMRC) for all property transactions. It is mandatory for both buyers and sellers to successfully complete these checks before any property transaction can proceed. Our estate agency uses Coadjute’s Assured Compliance service to facilitate the AML checks. A fee will be charged for each individual AML check conducted


Additional Information
Tenure: Freehold
Council Tax Band: F

Rooms
DESCRIPTION
The property comprises entrance hall, inner hall, lounge, dining room, second reception, study, kitchen diner, utility, cloakroom and integral garage to the ground floor, a gym to the lower floor, four bedrooms, three with en suites to the first floor, the fourth having access to the family bathroom. There are further independent living quarters on the second floor comprising a lounge, kitchen, bedroom and en suite. Outside is a landscaped garden to the front which has a bespoke entertainment unit and bar, whilst a drive leads to the side and rear providing off street parking for numerous vehicles. The property also benefits from double glazing and gas central heating.
Wadworth is a village lying seven miles south of the city of Doncaster which is on the east coast mainline and three miles north of Tickhill which has many amenities. It is also cliose to the A1 and M18 for easy access to the motorway network and the village has a primary school, pub called The Travellers Rest, a butchers and coffee shop.
ACCOMMODATION
The property’s main entrance is via steps leading up to a solid wooden door with glass panel over leading into:
ENTRANCE HALLWAY
Providing access to the inner hall via a wooden door with glass panel surround and cloakroom, window to the side elevation, coving to ceiling, wood panel flooring and radiator.
4.76m x 1.81m (15'7" x 5'11")
CLOAKROOM
Coat hanger, pedestal sink, towel radiator, towel holder, coving to ceiling with spotlight, window to the rear elevation, door into WC with low level flush wc, wood panel flooring and window to the rear elevation.
INNER HALLWAY
Providing access to the lounge, dining room, study, second reception room and kitchen diner, doors to the rear entrance hall and front garden, stairs to the first floor accommodation with cupboard under and wood panel flooring, smoke alarm to ceiling.
12.96m x 1.80m (42'6" x 5'10" )
LOUNGE
Feature fireplace with surround and inset fire, TV point, wood panel flooring, arched wall recess, shelf, two wall lights, two French doors opening to the garden and radiator.
6.13m x 4.57m (20'1" x 14'11" )
DINING ROOM
Feature fireplace with surround and inset fire, TV point, bay window to the front elevation and window to the side elevation, radiator.
4.61m x 5.75m (15'1" x 18'10" )
SECOND RECEPTION
Feature fireplace with surround, TV point, built in cupboards, wood panel flooring, window to the side elevation, radiator, and door into integral garage.
4.57m x 4.12m (14'11" x 13'6" )
KITCHEN DINER
Situated in the extension and accessed from the inner hall via double doors, comprising wall and base units with complementary worktops, two built in double ovens, integrated fridge and fridge freezer, dishwasher, bin unit, central breakfasting island with five overhead lights, five ring induction hob, Karndean flooring, spotlights to ceiling, TV point, bifold doors to the front garden and door leading into:
7.57m x 6.00m (24'10" x 19'8" )
UTILITY
Plumbing and space for washing machine, cupboard housing two boilers, store cupboard, shelving, spotlights and smoke alarm to ceiling, window to the rear elevation and radiator.
2.34m x 2.08m (7'8" x 6'9" )
STUDY
Telephone point, built in cupboards, spotlights to ceiling, two windows to the rear elevation and radiator
4.66m x 1.93m (15'3" x 6'3" )
INTEGRAL GARAGE
Wall and base units, stainless steel sink, log burner, TV point, cycle wall rack, space for dryer, electric door, power and lighting, white uPVC door to rear with glass panels, radiator.
REAR ENTRANCE HALL
Stairs leading to the first floor accommodation and also down to the basement. White uPVC door with glass panel over leading to the rear drive, coat hanger, cupboard, wood panel flooring, and door into the inner hall. With direct access to the second floor living accommodation.
BASEMENT
(Currently used as a gym)
Air conditioning unit, shelving for weights, full length wall mirror, wood panel flooring, spotlights to ceiling, Electric fuse box and meter are situated in the passage at the bottom of the stairs in a cupboard,
4.13m x 3.96m (13'6" x 12'11" )
FIRST FLOOR LANDING
Providing access to four bedrooms, with split landing, window to the front elevation, smoke alarm and two wall lights.
10.04m x 1.80m (6.64m into stairwell) (32'11" x 5'
BEDROOM ONE
Two built in wardrobes, TV point, two USB sockets, soft furnished wall headboard above raised base for bed, spotlights to ceiling, two windows to the front elevation, radiator and door into:
6.18m x 4.34m (20'3" x 14'2" )
EN SUITE
Tiled throughout with walk in shower unit with rainfall head and handheld unit, wash hand basin with mixer tap in unit with cupboard and drawer under and mirror over, towel holder, spotlights to ceiling, extractor fan, chrome wall radiator, obscure window to the side elevation.
2.89m x 1.74m (9'5" x 5'8" )
BEDROOM TWO
TV point, windows to the front and side elevation, radiator and door into:
4.56m x 4.56m to maximum dimension (14'11" x 14'11
EN SUITE
Tiled throughout with corner shower, rainfall head and handheld unit, wash hand basin with mixer tap and low level flush wc in unit with splashback and mirrored vanity unit over, chrome wall radiator, towel holder, spotlights to ceiling, and extractor fan.
BEDROOM THREE
TV point, shelf, window to the side elevation, radiator and door into:
4.66m x 4.45m (15'3" x 14'7" )
EN SUITE
Corner shower unit, pedestal sink with mixer tap and splashback, mirrored vanity unit over, low level flush wc, chrome wall radiator, towel holder, spotlights to ceiling, obscure window to the rear elevation.
1.51m x 1.93m (4'11" x 6'3" )
BEDROOM FOUR
Feature fireplace, TV point, window to the side elevation, door into bathroom and spiral staircase to upper bedroom.
4.06m x 4.82m (13'3" x 15'9" )
BATHROOM
Accessed via the landing and Bedroom Four. Tiled throughout with matching white suite comprising panel bath with rainfall head and two handheld units, wash hand basin with mixer tap, drawers under and mirror over with lights, low level flush wc, extractor fan, spotlights to ceiling, chrome towel radiator, two obscure windows to the rear elevation.
3.67m x 1.92m (12'0" x 6'3" )
UPPER ROOM TO BEDROOM FOUR
Accessed via a spiral staircase from Bedroom Four, TV point, arched ceiling with Velux window and spotlights, radiator.
4.53m x 3.44m (14'10" x 11'3" )
SECOND FLOOR LANDING
Stairs from the first floor lead up to the second floor living accommodation with split landing, two cupboards, window to the rear elevation and radiator.
LOUNGE
TV point, cupboard, wooden beams and spotlights to ceiling, two downlighters, window to the front elevation and radiator.
6.18m x 3.47m (20'3" x 11'4" )
BEDROOM FIVE
TV point, two built in wardrobes, spotlights to ceiling, window to the front elevation, two radiators and door leading into:
3.73m x 6.51m (12'2" x 21'4" )
EN SUITE
Matching white suite comprising panel bath with rainfall head shower over and hand held unit, his and hers wash hand basins with mixer taps in unit with cupboard under, mirror over, low level flush wc, extractor fan, porthole window to the rear elevation and radiator.
KITCHEN
Wall and base units with complementary worktops, spaces for electric cooker and fridge freezer, stainless steel sink with splashback and mixer tap, spotlights to ceiling, wood panel flooring, beams to ceiling and Velux window.
2.30m x 2.74m (7'6" x 8'11" )
EXTERNALLY
The private front garden is laid to lawn with paving and patio seating area, raised stone chip area with laurel trees, shale area, wall lights, stepped decking leading to the outside bar and entertainment room.
A stone wall surrounds the garden which gives views of the church grounds, trees, security lights, gated access to the drive which runs round to the rear with electric security access gates and provides off street parking for numerous vehicles. Power socket and two outside taps.
ENTERTAINMENT ROOM
Central Island, gold effect hexagonal wall décor with four recess shelf units, space for TV in wall recess and flame effect fire under, tiled flooring, window to the front elevation and bi - fold doors.
7.55m x 3.76m (24'9" x 12'4" )
COUNCIL TAX
Through enquiry of the Doncaster Council we have been advised that the property is in Rating Band 'F'
TENURE - Freehold

AGENTS NOTE
The vendors advise the IT network is installed in many areas including across to the Entertainment Room.

Mortgage calculator

Calculate Your Stamp Duty
£
Results
Stamp Duty To Pay:
Effective Rate:
Tax Band % Taxable Sum Tax

Vicarage Drive, Wadworth, Doncaster

Want to explore Vicarage Drive, Wadworth, Doncaster further? Explore our local area guide

Struggling to find a property? Get in touch and we'll help you find your ideal property.