6 bedroom House For Sale

Offers in excess of £450,000 | Available

6 bedroom House For Sale
Total Size: 1330 SQ FT
or call 02380 987720
Standout Features

Property Description
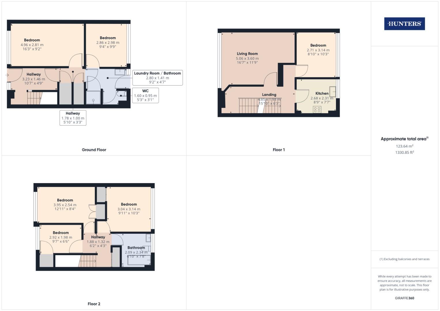
This is a 6 bedroom student accommodation investment opportunity within walking distance to the university.

We are pleased to present this six bedroom student house in Winchester. The property comprises entrance hall, kitchen, living room, bathroom, shower room plus a additional toilet, five double bedrooms, single bedroom and utility area. There is double glazing, gas central heating and an HMO License for six people.

Externally, the property includes a rear garden and off road parking for four cars.

A large Sainsburys supermarket is located in Badger Farm, as well as local shops in Stanmore just a short walk away, providing a most pleasant setting for tenants to live during their education.

The property is currently let until 06/08/2026 at a rent of £3,300.00 pcm with renewal agreed until 06/08/2027 at £3,465.00

Additional Information/ Notes:
Photos: Require updating as now tenanted.

Tenure: Freehold

We are pleased to present a six bedroom student house in Winchester. The property comprises entrance hall, kitchen, living room, bathroom, shower room, five double bedrooms, single bedroom and utility area.

Material Information - Southampton

Tenure Type; Freehold
Council Tax Banding; D

AML

Agents are required by law to conduct anti-money laundering checks on all those buying a property.

We outsource the initial checks to partner suppliers Coadjute who will contact you once you have had an offer accepted on a property you wish to buy.

The cost of these checks is £54inc vat per person. This is a non-refundable fee.

These charges cover the cost of obtaining relevant data, any manual checks and monitoring which might be required.

This fee will need to be paid and the checks completed in advance of the office issuing a memorandum of sale on the property you would like to buy.


Additional Information
Tenure: Freehold
Council Tax Band: D

Rooms
Material Information - Southampton
Tenure Type; Freehold
Council Tax Banding; D
AML
Agents are required by law to conduct anti-money laundering checks on all those buying a property.

We outsource the initial checks to partner suppliers Coadjute who will contact you once you have had an offer accepted on a property you wish to buy.

The cost of these checks is £54inc vat per person. This is a non-refundable fee.

These charges cover the cost of obtaining relevant data, any manual checks and monitoring which might be required.

This fee will need to be paid and the checks completed in advance of the office issuing a memorandum of sale on the property you would like to buy.

Mortgage calculator

Calculate Your Stamp Duty
£
Results
Stamp Duty To Pay:
Effective Rate:
Tax Band % Taxable Sum Tax

Sparkford Close, Winchester

Want to explore Sparkford Close, Winchester further? Explore our local area guide

Struggling to find a property? Get in touch and we'll help you find your ideal property.