Standout Features
- Seven Bedroom Extended Semi-Detached House
- Two Bathrooms
- Spacious Reception Room
- Prime Location
- Off-street Parking
- No Chain
- Close to Local Amenities
- Excellent Transportation Links
- Ideal for Investors or Large Families
- Viewings are Highly Recommended
Property Description
Hunters Brentford is proud to present this impressive 7-bedroom semi-detached house nestled on the desirable Vicarage Farm Road in Hounslow. The property offers a perfect blend of space and comfort for families or those seeking ample room to grow. Spanning an impressive 1,710 square feet, the property boasts a generously sized reception room, ideal for both entertaining guests and enjoying quiet family evenings.
The home features two well-appointed bathrooms, ensuring convenience for all residents. The extended layout provides a sense of openness, making it a delightful space to call home. The private rear garden is a wonderful retreat, perfect for outdoor gatherings or simply unwinding in a tranquil setting.
For those who commute, the property is conveniently located within walking distance to Hounslow West tube station, providing easy access to the Piccadilly line and beyond. Additionally, off-street parking for two vehicles adds to the practicality of this charming residence.
Offered to the market with no chain, this semi-detached house is not just a home; it is a lifestyle choice, offering both comfort and convenience in a vibrant community. Whether you are looking to settle down or invest, this property presents an excellent opportunity in a sought-after location.
Viewings are highly recommended.
The home features two well-appointed bathrooms, ensuring convenience for all residents. The extended layout provides a sense of openness, making it a delightful space to call home. The private rear garden is a wonderful retreat, perfect for outdoor gatherings or simply unwinding in a tranquil setting.
For those who commute, the property is conveniently located within walking distance to Hounslow West tube station, providing easy access to the Piccadilly line and beyond. Additionally, off-street parking for two vehicles adds to the practicality of this charming residence.
Offered to the market with no chain, this semi-detached house is not just a home; it is a lifestyle choice, offering both comfort and convenience in a vibrant community. Whether you are looking to settle down or invest, this property presents an excellent opportunity in a sought-after location.
Viewings are highly recommended.
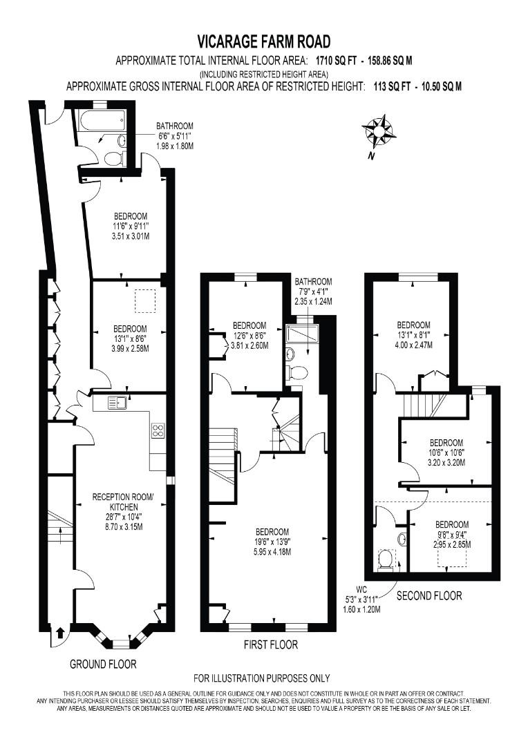
RECEPTION ROOM (8.70m x 3.15)
BEDROOM (3.99m x 2.58m)
BEDROOM (3.51m x3.01m)
BATHROOM (1.98m x 1.80m)
BEDROOM (5.95m x 4.18m)
BEDROOM (3.81m x 2.60m)
BATHROOM (2.35m x 1.24m)
BEDROOM (2.95m x 2.85m)
BEDROOM (3.20m x 3.20m)
BEDROOM (4.00m x 2.47m)
WC (1.60m x 1.20m)
Additional Information
| Tenure: | Freehold |
|---|---|
| Council Tax Band: | D |
Rooms
RECEPTION ROOM
8.70m x 3.15 (28'6" x 10'4")
BEDROOM
3.99m x 2.58m (13'1" x 8'5")
BEDROOM
3.51m x3.01m (11'6" x9'10")
BATHROOM
1.98m x 1.80m (6'5" x 5'10")
BEDROOM
5.95m x 4.18m (19'6" x 13'8")
BEDROOM
3.81m x 2.60m (12'5" x 8'6")
BATHROOM
2.35m x 1.24m (7'8" x 4'0")
BEDROOM
2.95m x 2.85m (9'8" x 9'4")
BEDROOM
3.20m x 3.20m (10'5" x 10'5")
BEDROOM
4.00m x 2.47m (13'1" x 8'1")
WC
1.60m x 1.20m (5'2" x 3'11")
Mortgage calculator
Calculate Your Stamp Duty
Results
Stamp Duty To Pay:
Effective Rate:
| Tax Band | % | Taxable Sum | Tax |
|---|
Vicarage Farm Road
Want to explore Vicarage Farm Road further? Explore our local area guide
Struggling to find a property? Get in touch and we'll help you find your ideal property.